Curiosii for ever!: Car repair manuals for everyone.

Cruise Control: Locations




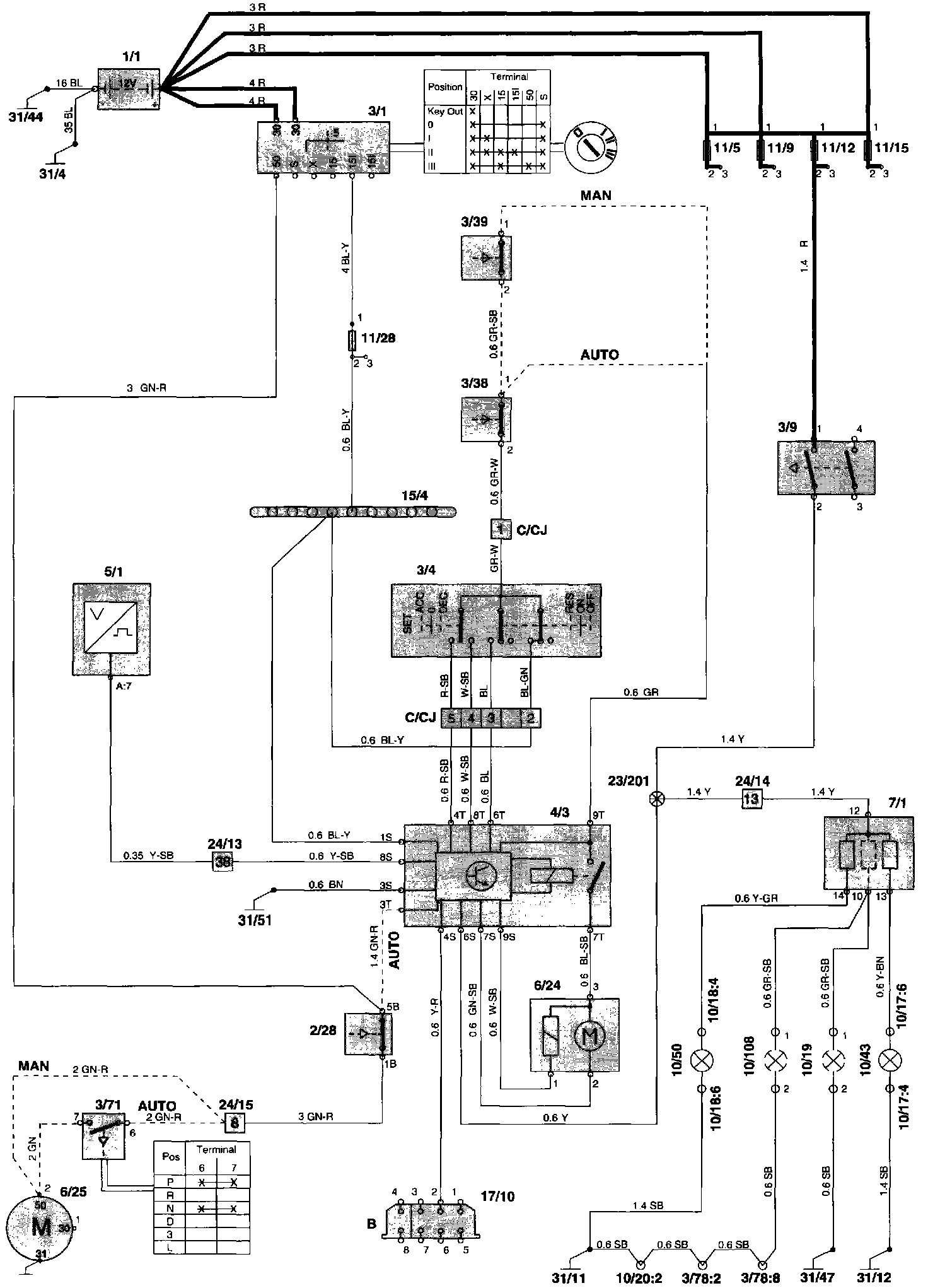
Component Location




Wiring Diagram

Component I.D. List
C/CJ Connector, 6-pin, cruise control
2/28 Alarm relay
3/4 Controls, cruise control
3/9 Brake light switch
3/38 Contact, brake pedal
3/39 Contact, clutch pedal
3/71 Transmission range selector indicator
4/3 Control module, cruise control
5/1 Combined instrument
6/24 Cruise control vacuum pump
6/25 Starter motor
7/1 Bulb malfunction indicator, rear
10/19 High-level brake light
10/43 Right brake light
10/50 Left brake light
10/108 Extra brake light, spoiler
11/12 Fuses
11/28 Fuses
15/4 15I rail in central electrical unit
17/10 OBD (Diagnostic) socket B
24/13 Connector, 53-pin
Engine compartment harness - Instrument panel harness
24/14 Connector, pos. 1-25 in 53-pin
Engine compartment harness - Door sill harness, left
24/15 Connector, 14-pin
Engine compartment harness - Engine harness
31/4 Ground point, engine
(ground connection battery - engine)
31/11 Ground point, trunk, left side
31/12 Ground point, trunk, right side
31/44 Ground point, engine compartment
(ground connection battery - body)
31/47 Ground point, left cross member
31/51 Ground point, central electrical unit (signal ground)