Curiosii for ever!: Car repair manuals for everyone.

Fuel Injection System

Component / Connector Views:




Wiring Diagrams:




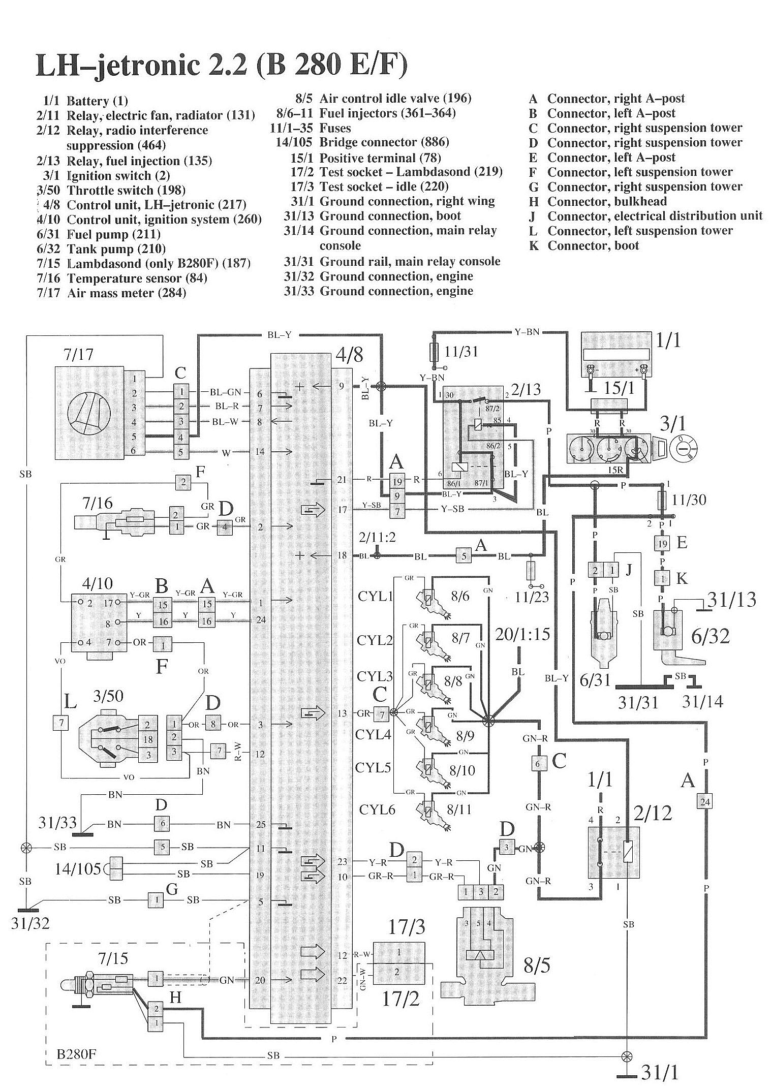
LEGEND
1/1 Battery
2/11 Relay, electric fan, radiator
2/12 Relay, radio interference suppression
2/13 Relay, fuel injection
3/1 ignition switch
3/50 Throttle switch
4/8 Control unit, LH-jetronic
4/10 Control unit, ignition system
6/31 Fuel pump
6/32 Tank pump
7/15 Lambdasond (only B280F)
7/16 Temperature sensor
7/17 Air mass meter
8/5 Air control idle valve
8/6-11 Fuel injectors

11/1-35 Fuses
14/105 Bridge connector
15/1 Positive terminal
17/2 Test socket - Lambdasond
17/3 Test socket - idle
31/1 Ground connection, right wing
31/13 Ground connection, boot
31/14 Ground connection, main relay console
31/31 Ground rail, main relay console
31/32 Ground connection, engine
31/33 Ground connection, engine

A Connector, right A-post
B Connector, left A-post
C Connector, right suspension tower
D Connector, right suspension tower
E Connector, left A-post
F Connector, left suspension tower
G Connector, right suspension tower
H Connector, bulkhead
J Connector, electrical distribution unit
L Connector, left suspension tower
K Connector, boot