Curiosii for ever!: Car repair manuals for everyone.

Relay Box

RH R/B, J/B - Right Side Of The Instrument Panel Reinforcement:



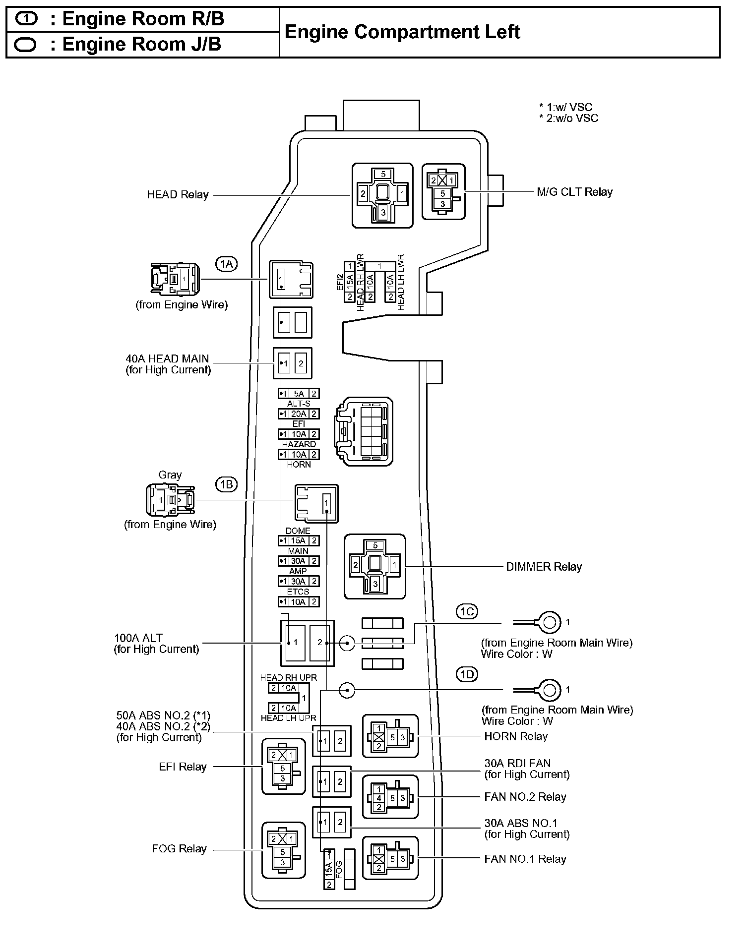
Engine Room R/B, J/B - Engine Compartment Left:



Instrument Panel J/B - Lower Finish Panel:



Instrument Panel J/B - Lower Finish Panel:



Center J/B - Behind The Combination Meter: