Curiosii for ever!: Car repair manuals for everyone.

Key to Diagrams




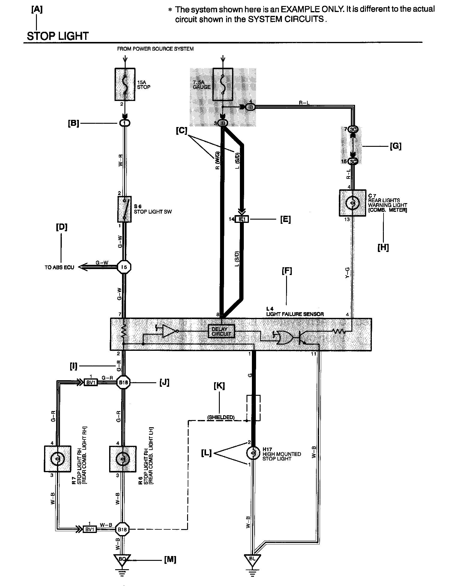
A: System Title

B: Indicates a Relay Block. No shading is used and only the Relay Block No. is shown to distinguish it from the J/B.
Example: (1) Indicates Relay Block No.1

C: ( ) is used to indicate different wiring and connector, etc. when the vehicle model, engine type, or specification is different.

D: Indicates related system.

E: Indicates the wiring harness and wiring harness connector. The wiring harness with male terminal is shown with arrows (V).




Outside numerals are pin numbers.

The first letter of the code for each wiring harness and wiring harness connector(s) indicates the component's location, e.g, "E" for the Engine Compartment, "I" for the Instrument Panel and Surrounding area, and "B" for the Body and Surrounding area.

When more than one code has the first and second letters in common, followed by numbers (e.g, IH1, IH2), this indicates the same type of wiring harness and wiring harness connector.

F: Represents a part (all pants are shown in sky blue). The code is the same as the code used in parts position.




G: Junction Block (The number in the circle is the J/B No. and the connector code is shown beside it). Junction Blocks are shaded to clearly separate them from other pants.

H: When 2 pants both use one connector in common, the pants connector name used in the wire routing section is shown in square brackets [ ].




I: Indicates the wiring color.

Wire colors are indicated by an alphabetical code.

B = Black
L = Blue
R = Red
P = Pink
O = Orange
W = White
V = Violet
G = Green
Y = Yellow
BR = Brown
SB = Sky Blue
LG = Light Green
GR = Gray

The first letter indicates the basic wire color and the second letter indicates the color of the stripe.




J: Indicates a wiring Splice Point (Codes are "E" for the Engine Room, "I" for the Instrument Panel, and "B" for the Body).

The Location of splice Point I5 is indicated by the shaded section.




K: Indicates a shielded cable.




L: Indicates the pin number of the connector. The numbering system is different for female and male connectors.

M: Indicates a ground point.
The first letter of the code for each ground point(s) indicates the component's location, e.g, "E" for the Engine Compartment, "I" for the Instrument Panel and Surrounding area, and "B" for the Body and Surrounding area.