Curiosii for ever!
: Car repair manuals for everyone.
Home
>>
Suzuki
>>
2006
>>
Aerio L4-2.3L
>>
Repair and Diagnosis
>>
Diagrams
>>
Electrical Diagrams
>>
Automatic Transmission/Transaxle
>>
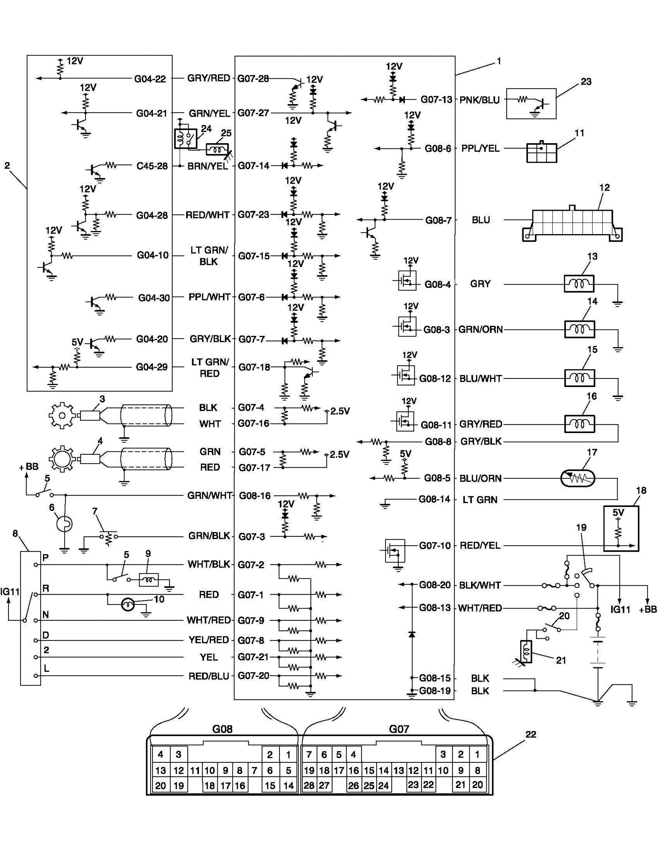
Transmission Control Module (TCM) Wiring Diagram
Transmission Control Module (TCM) Wiring Diagram
Transmission Control Module (TCM) Wiring Diagram
Operation of Shift Solenoid Valves and TCC Solenoid Valve