Curiosii for ever!: Car repair manuals for everyone.

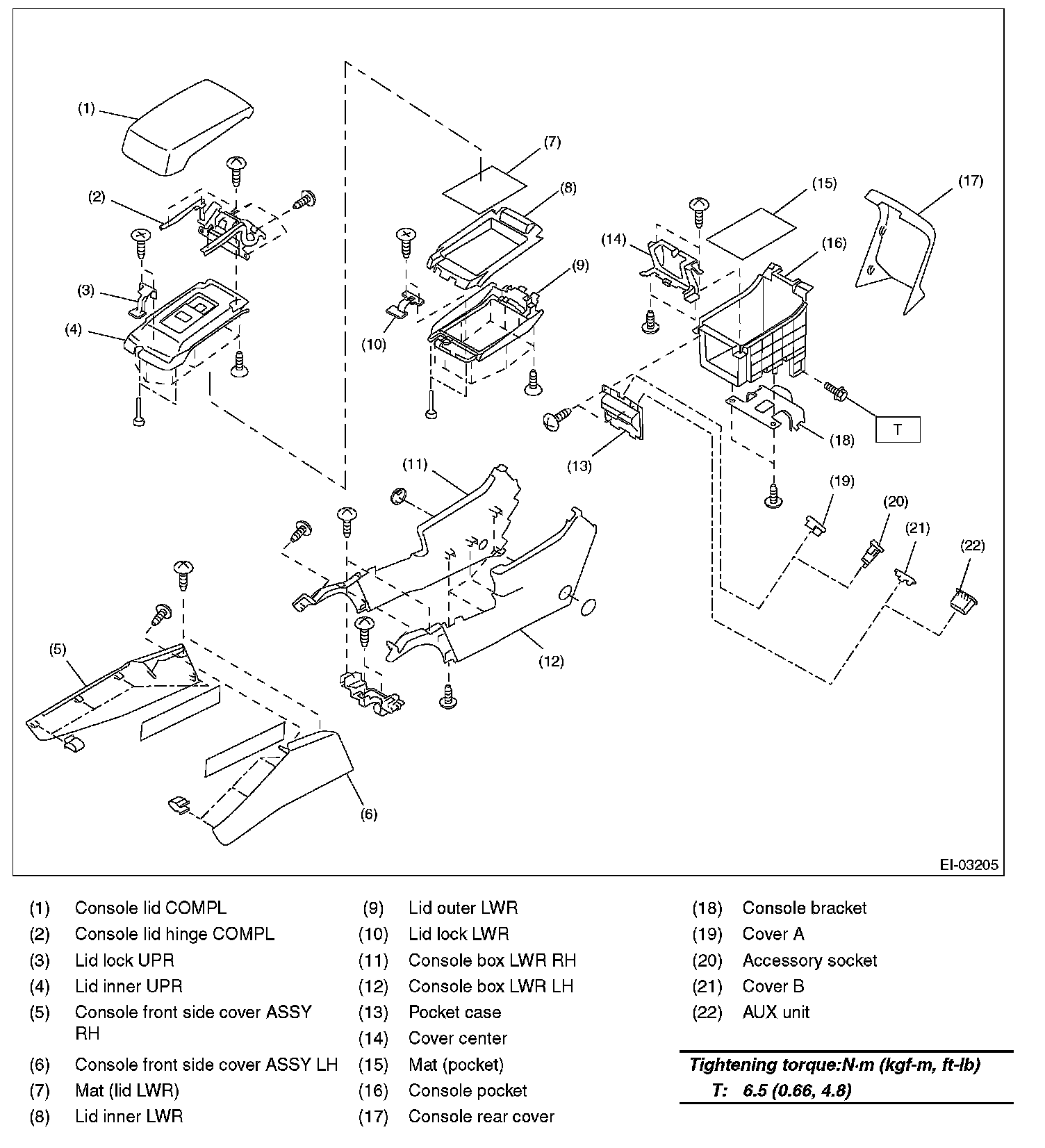
Console Box



Console Box










REMOVAL

1. Remove the console front cover assembly.

- MT model

1. Remove the shift knob.
2. Release the clips and claws, then pull up the console front cover assembly.







NOTE: Turn over the front center pocket mat (a) and pull up the console front cover from the slit.

3. Disconnect the harness connector and remove the console front cover assembly.

- AT model

1. Remove the select lever knob.
a. Lower the cover grip AT.
b. Remove the clamp grip pin, then remove the select lever knob.

2. Release the clips and claws, then pull up the console front cover assembly.







NOTE: Turn over the front center pocket mat (a) and pull up the console front cover from the slit.

3. Disconnect the harness connector and remove the console front cover assembly.

2. Remove the left and right console front side cover assembly.
1. Remove the screws and release the clip engagings (A) to (D) in order.
2. Remove the console front side cover assembly by pulling it up.







3. Remove the console box assembly.

1. Move the seat forward, and remove the bolts after detaching the left and right caps.

NOTE: For a model with power seat, connect the battery ground cable and move the seat. Then, disconnect the battery ground cable again and wait for 60 seconds at least before restarting the work.

2. Remove the screws, disconnect the harness connector and remove the console box assembly.







INSTALLATION

Install each part in the reverse order of removal.

Tightening torque:
6.5 N.m (0.66 kgf-m, 4.8 ft-lb)