Curiosii for ever!: Car repair manuals for everyone.

Relay Box

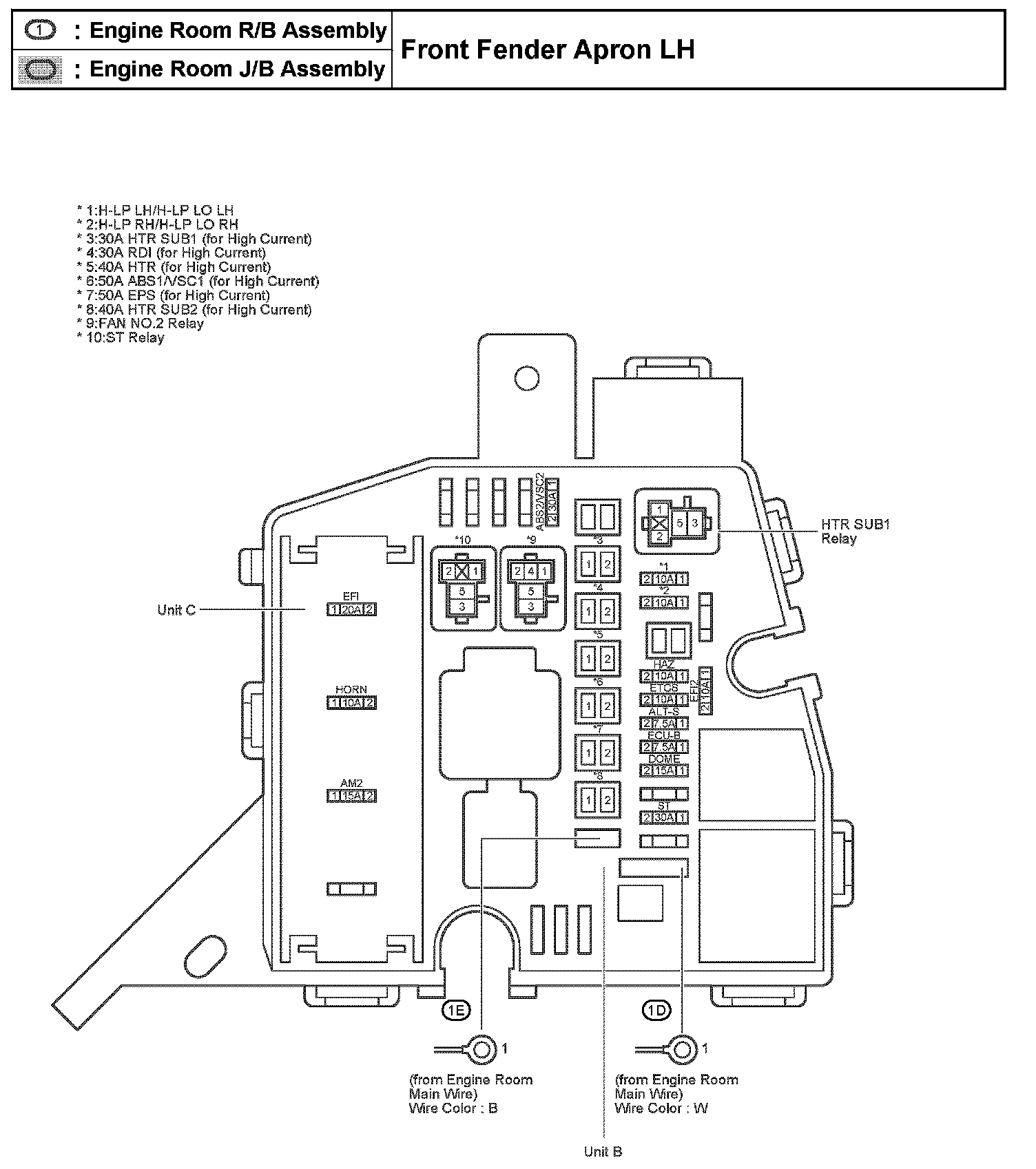
Engine Room R/B Assembly, Engine Room J/B Assembly - Front Fender Apron LH:






Engine Room R/B Assembly, Engine Room J/B Assembly - Front Fender Apron LH:






Instrument Panel J/B Assembly - Lower Finish Panel:






Instrument Panel J/B Assembly - Lower Finish Panel:






J/B No.5 Assembly - Cowl Side Panel LH:






J/B No.6 Assembly - Cowl Side Panel RH:






Fusible Link Block Assembly - Dash Panel:






Fusible Link Block Assembly - Dash Panel:






Fuse Block - Lower Finish Panel: