Curiosii for ever!: Car repair manuals for everyone.

Electronic/Powertrain Control Module (ECM/PCM)

NOTE: These wiring diagrams contain a combination of both Multi-Port Fuel Injection (MFI/PFI) and Throttle Body Injection (TBI) wiring. The most noteable example is the wiring for the fuel injectors. The wiring diagram will have comments when a circuit applies to either the MFI or TBI system.



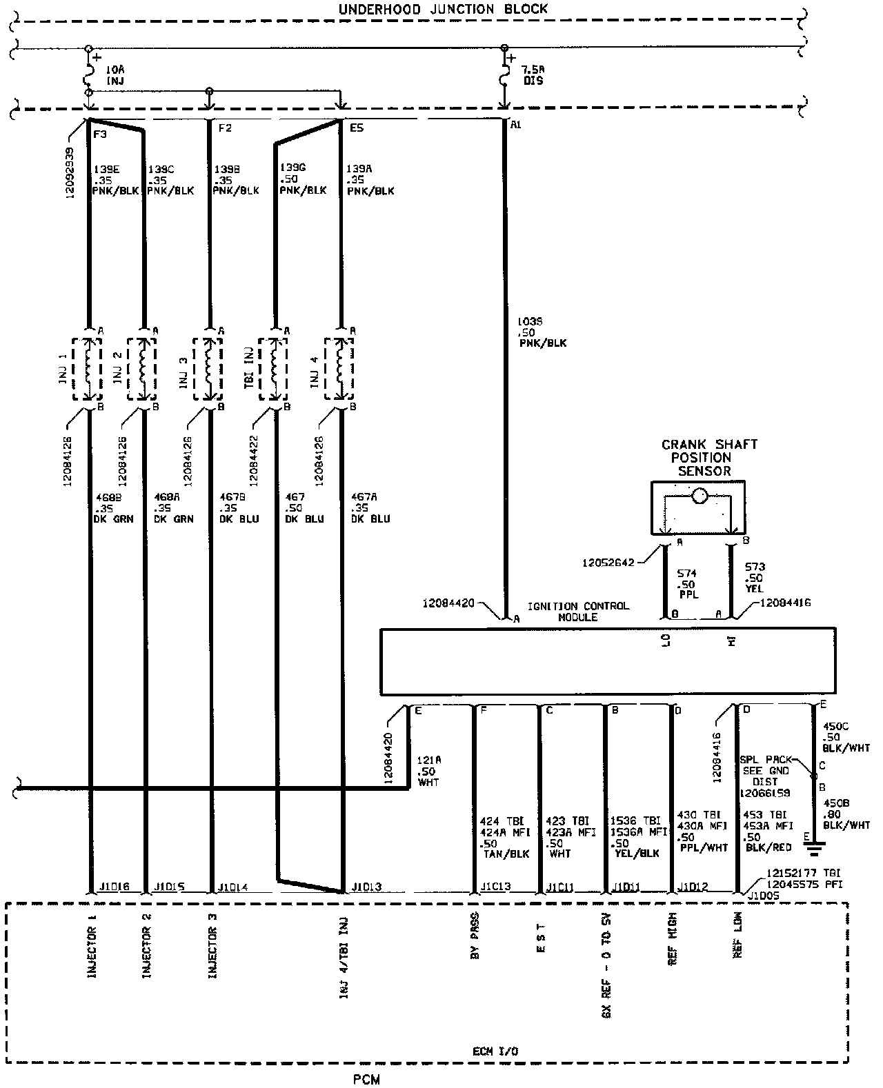
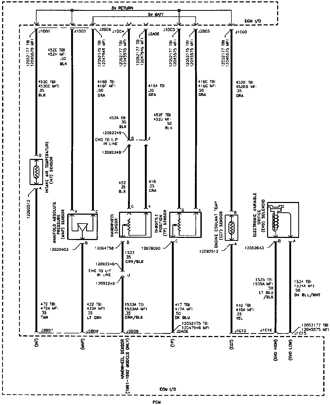
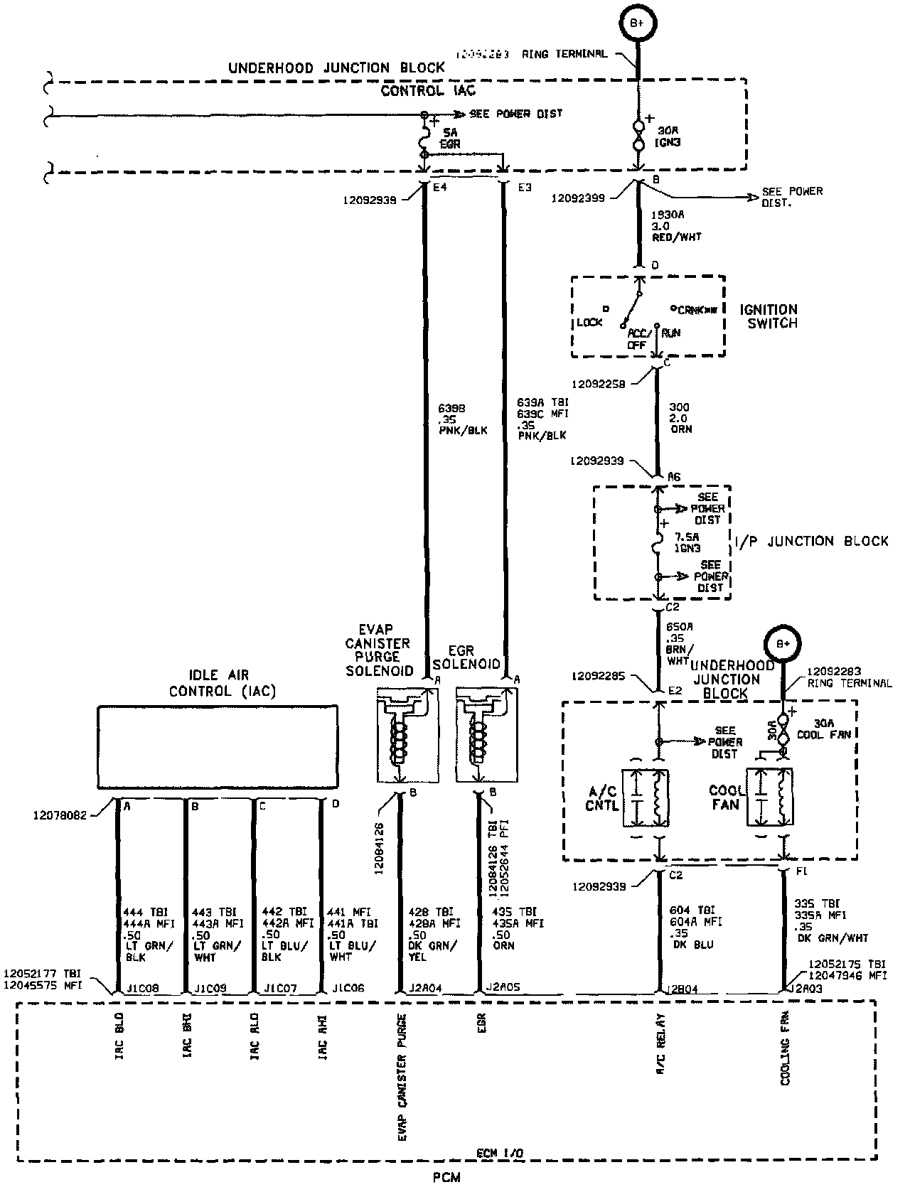
ENGINE CONTROL WIRING - PCM


PCM Wiring.:






J2B01 = UPSHIFT/TRACTION DASH LIGHT
J2B03 = COOLANT TEMP LIGHT
J2A01 = MALFUNCTION INDICATOR (CHECK ENGINE) LIGHT
J2A02 = SPEED OUT/5000 PULSES PER MILE
J2A07 = IGNITION
J1D06 = BATTERY B+



PCM Wiring.:






J1D16 = INJECTOR 1 - PFI ONLY
J1D15 = INJECTOR 2 - PFI ONLY
J1D14 = INJECTOR 3 - PFI ONLY
J1D13 = INJECTOR 4 - PFI ONLY
J1D13 = INJECTOR 1 - TBI ONLY
J1C13 = BYPASS
J1C11 = IGNITION CONTROL (E.S.T.) - DIS
J1D11 = 6X REF - DIS
J1D12 = REF HIGH - DIS
J1D05 = REF LOW - DIS



PCM Wiring.:






J1C08 = IAC B-LO
J1C09 = IAC B-HI
J1C07 = IAC A-LO
J1C06 = IAC A-LO
J2A04 = CANNISTER PURGE
J2A05 = E.G.R.
J2B04 = A/C RELAY
J2A03 = COOLING FAN



PCM Wiring.:






J2B07 = M.A.T. (I.A.T.)
J2B09 = M.A.P.
J2A08 = T.P.S.
J1C12 = COOLANT TEMP SENSOR
J1C16 = EVO HI
J1C15 = EVO LO



PCM Wiring.:






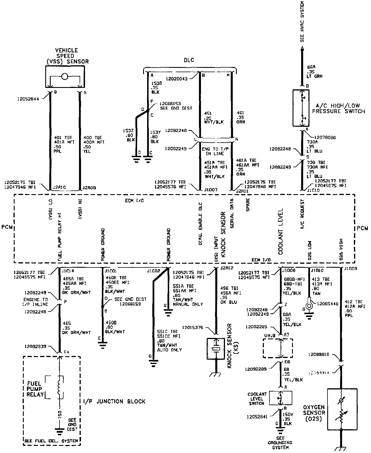
J2A10 = VEHICLE SPEED SENSOR - LO
J2A09 = VEHICLE SPEED SENSOR - HI
J1D07 = DIAG. ENABLE ALDL
J2A11 = SERIAL DATA
J1C10 = A/C REQUEST
J1C14 = FUEL PUMP RELAY HI
J1C01 = POWER GROUND
J1C02 = POWER GROUND
J2A12 = KNOCK SENSOR INPUT
J1D08 = COOLANT LEVEL SWITCH
J1D10 = O2 LOW
J1D09 = 02 HI




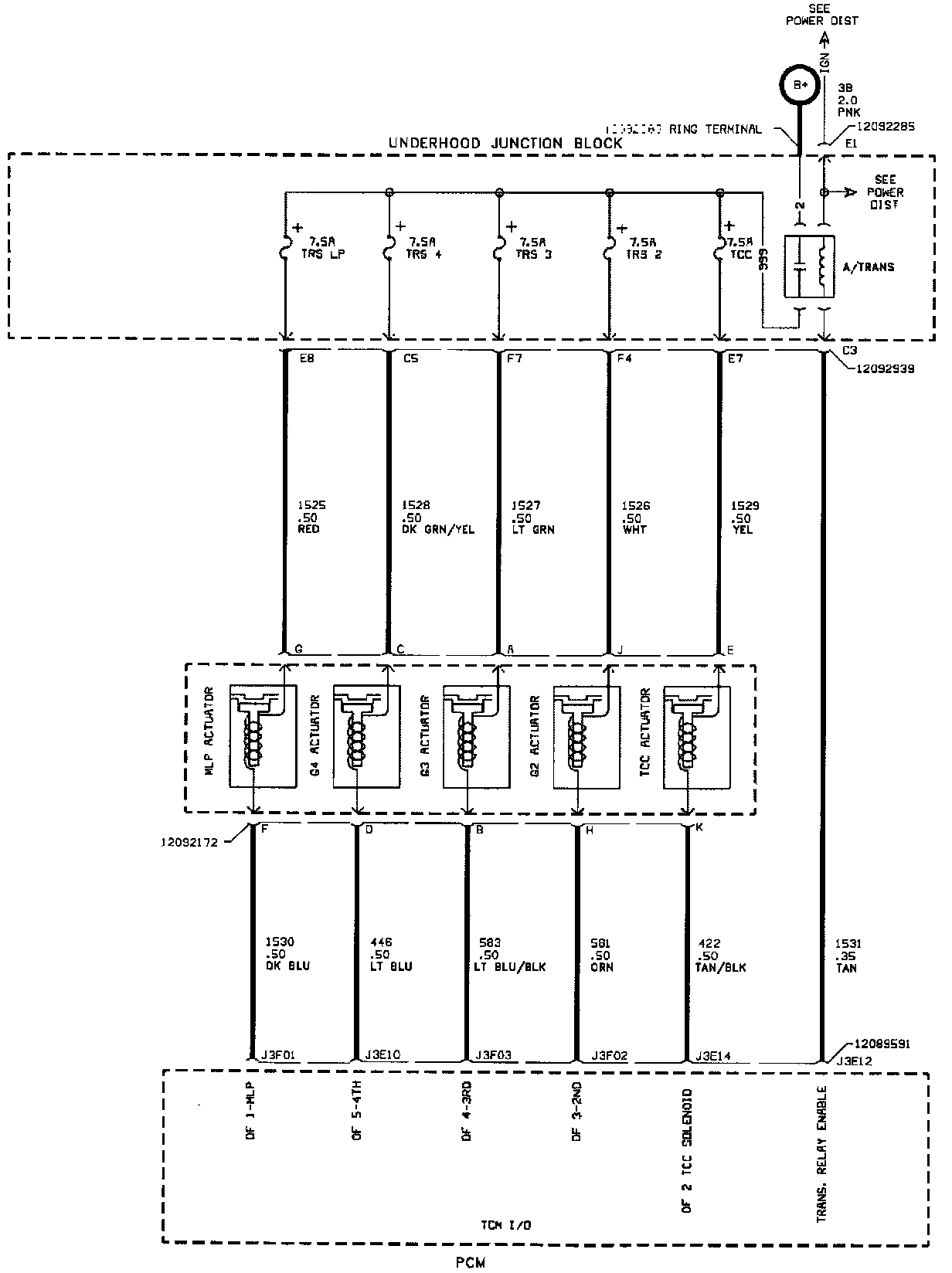
TRANSMISSION CONTROL WIRING - TCM


PCM Wiring.:






POWER SUPPLY TO ACTUATORS
J3F01 = ACTUATOR 1-MLP
J3E10 = ACTUATOR 5-4TH
J3F03 = ACTUATOR 4-3RD
J3F02 = ACTUATOR 3-2ND
J3E14 = ACTUATOR 2 TCC SOLENOID
J3E12 = TRANS. RELAY ENABLE



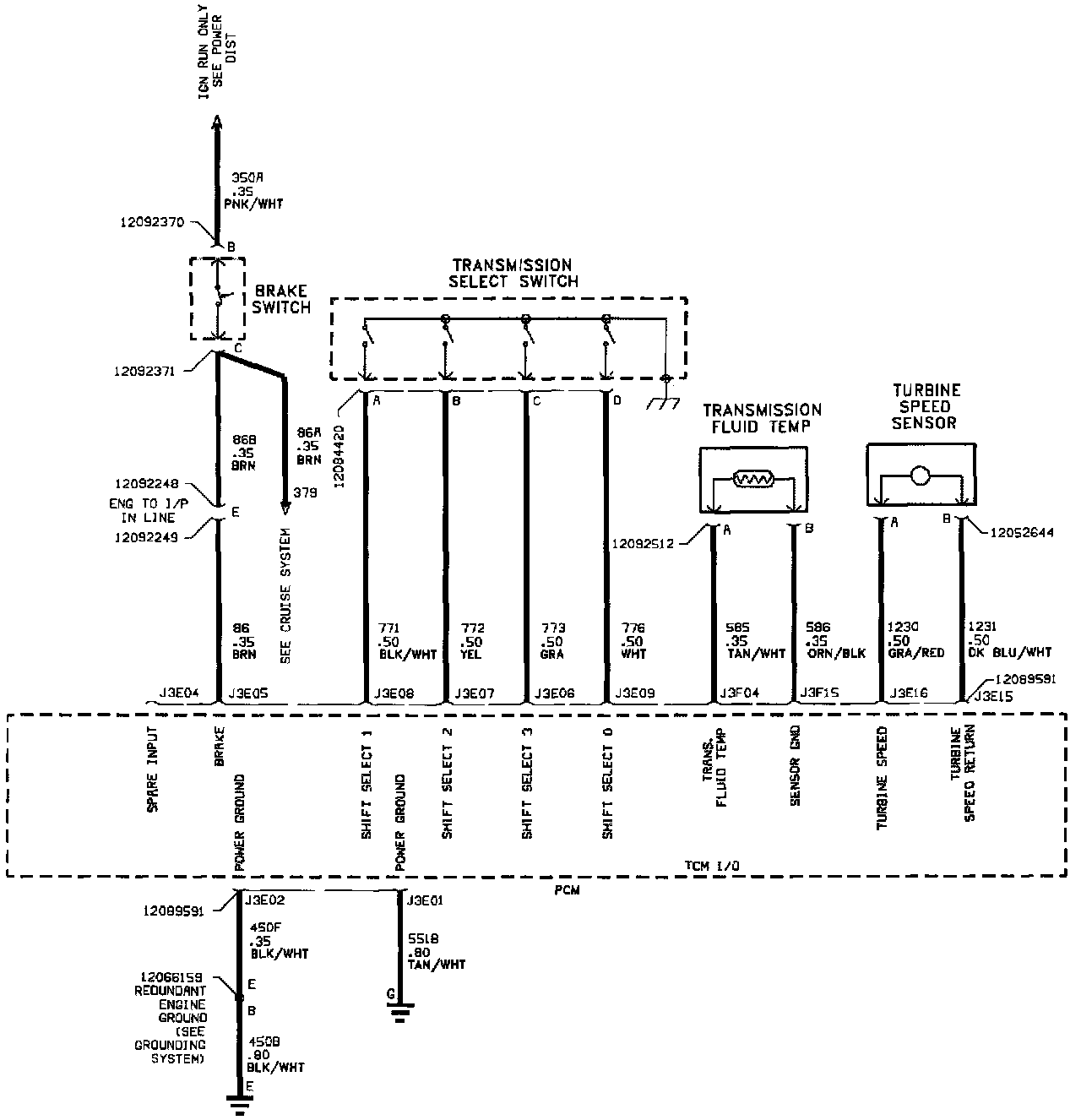
PCM Wiring.:






J3E02 = POWER GROUND
J3E01 = POWER GROUND
J3E05 = BRAKE INPUT
J3E08 = SHIFT SELECT 1
J3E07 = SHIFT SELECT 2
J3E06 = SHIFT SELECT 3
J3E09 = SHIFT SELECT 0
J3F04 = TRANS FLUID TEMP
J3F15 = SENSOR GRD
J3E16 = TURBINE SPEED
J3E15 = TURBINE SPEED RETURN



PCM Wiring.:






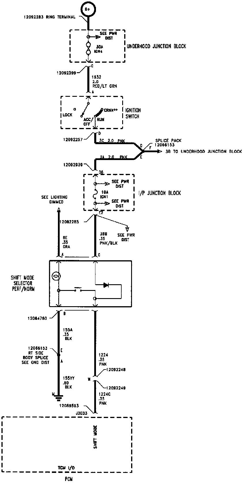
J3E03 = SHIFT MODE SELECTOR