Curiosii for ever!: Car repair manuals for everyone.

Electrical Diagrams

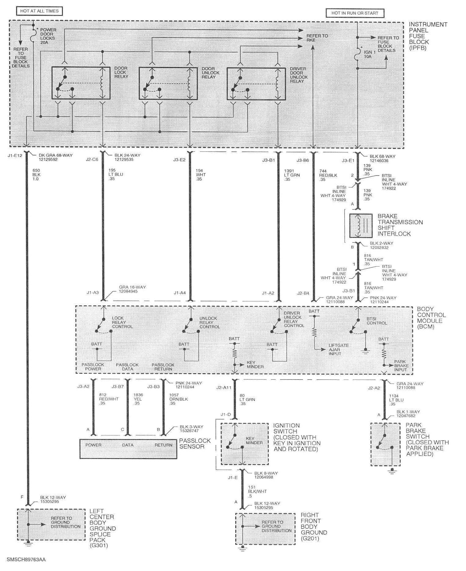
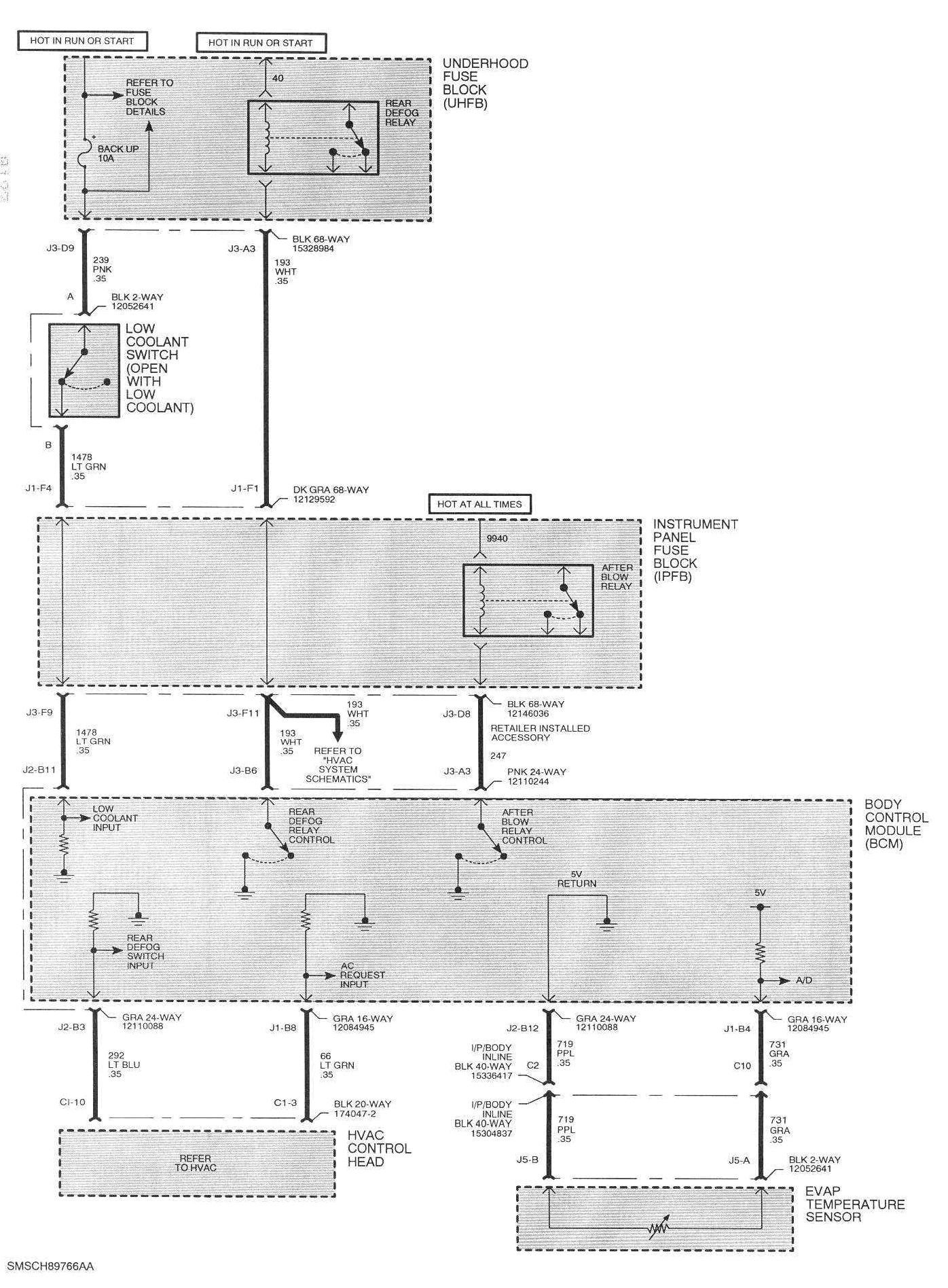
Body Control Module Schematics Part 1:




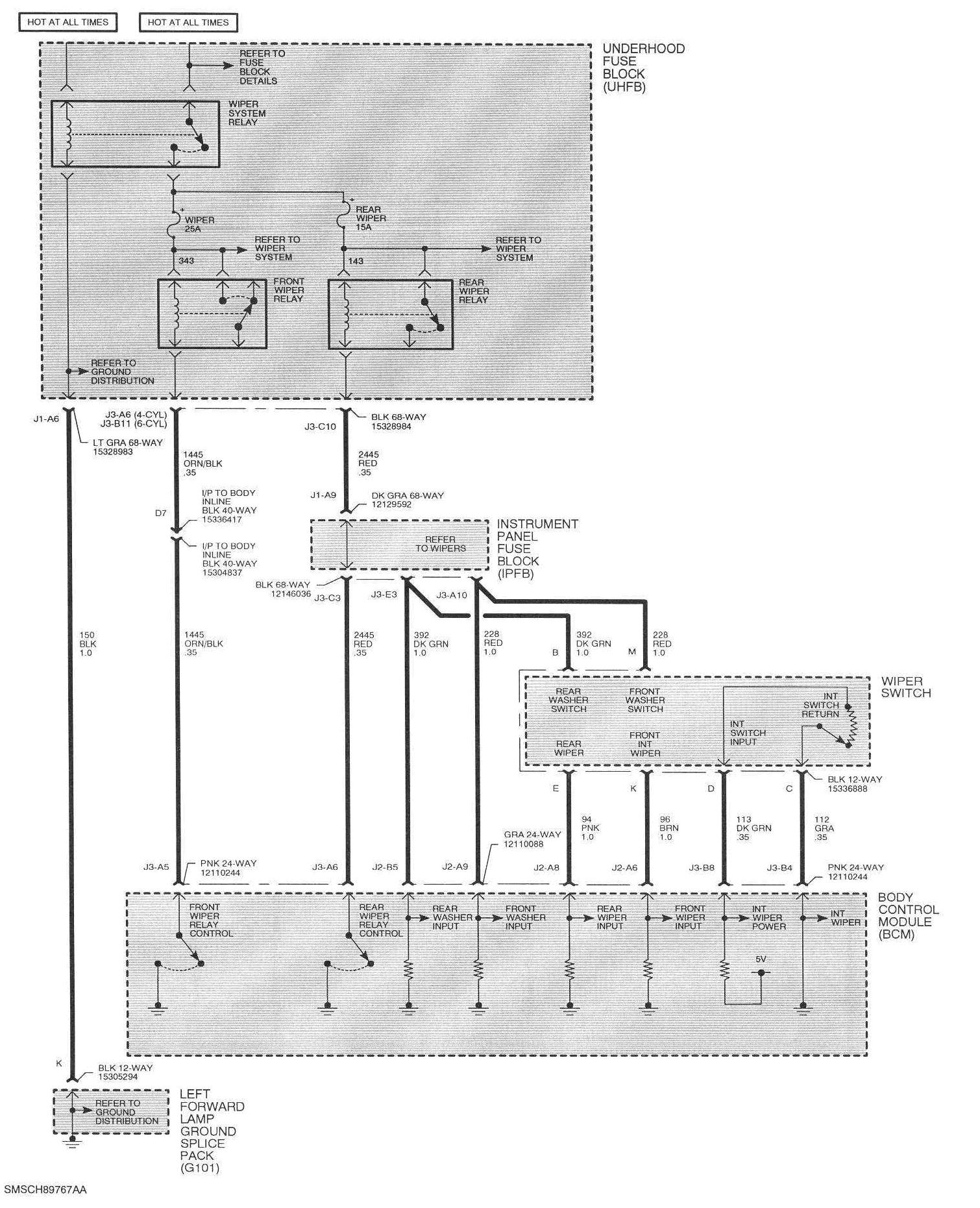
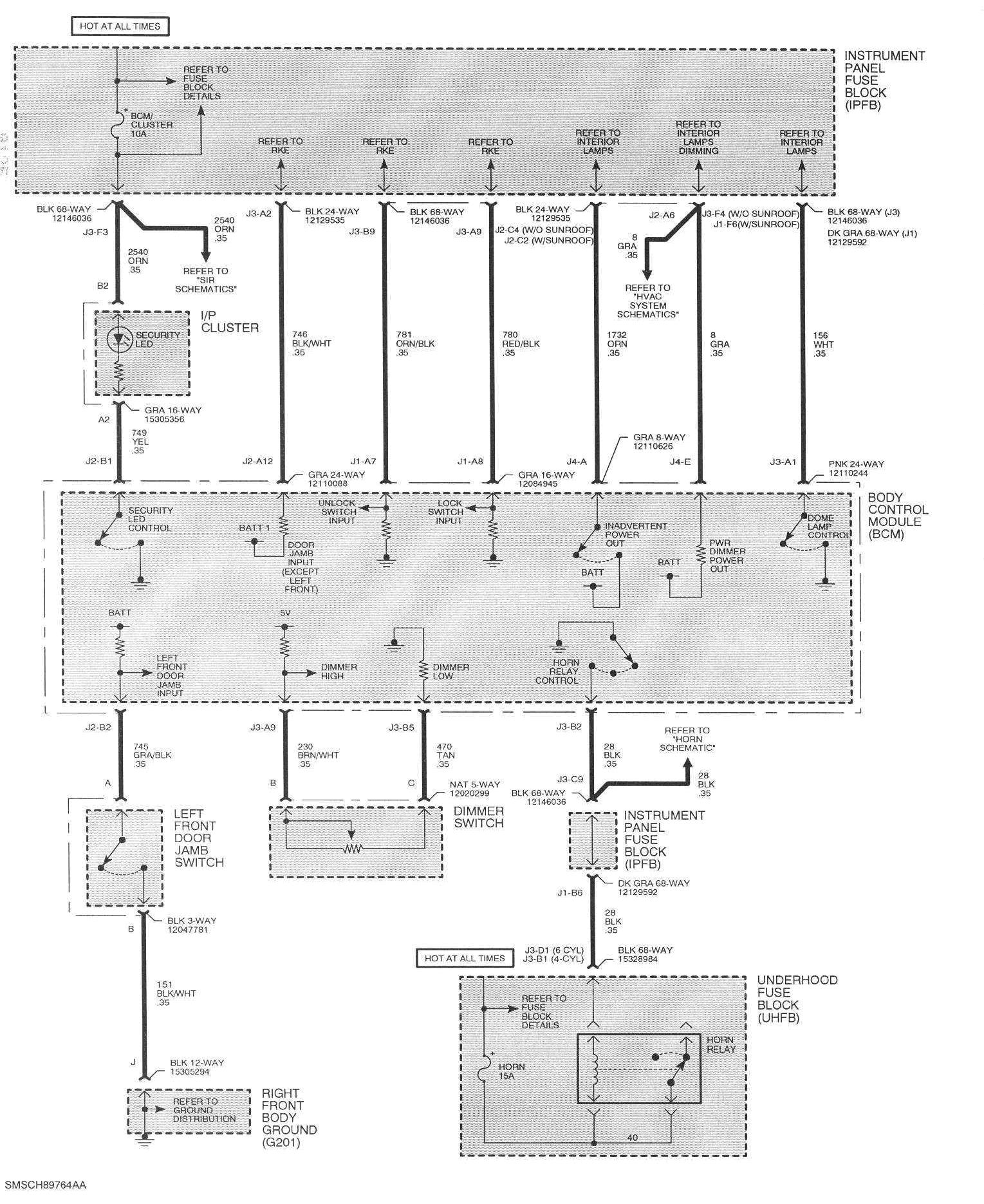
Body Control Module Schematics Part 2:




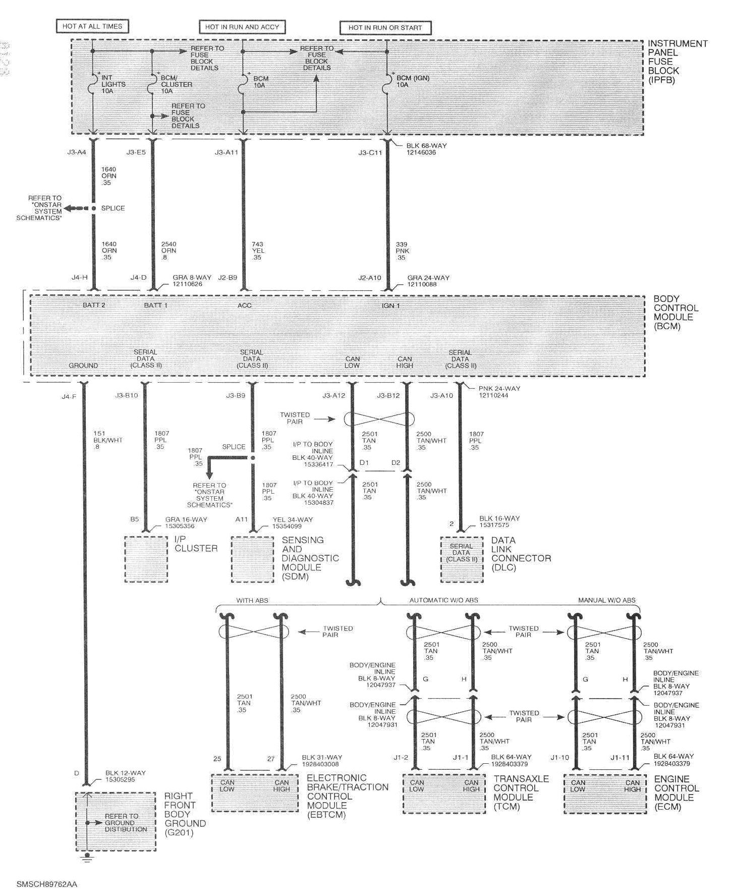
Body Control Module Schematics Part 3:




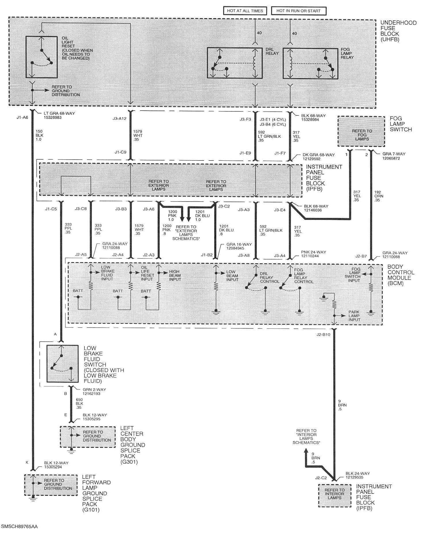
Body Control Module Schematics Part 4:




Body Control Module Schematics Part 5:




Body Control Module Schematics Part 6: