Curiosii for ever!: Car repair manuals for everyone.

Charging System: Locations

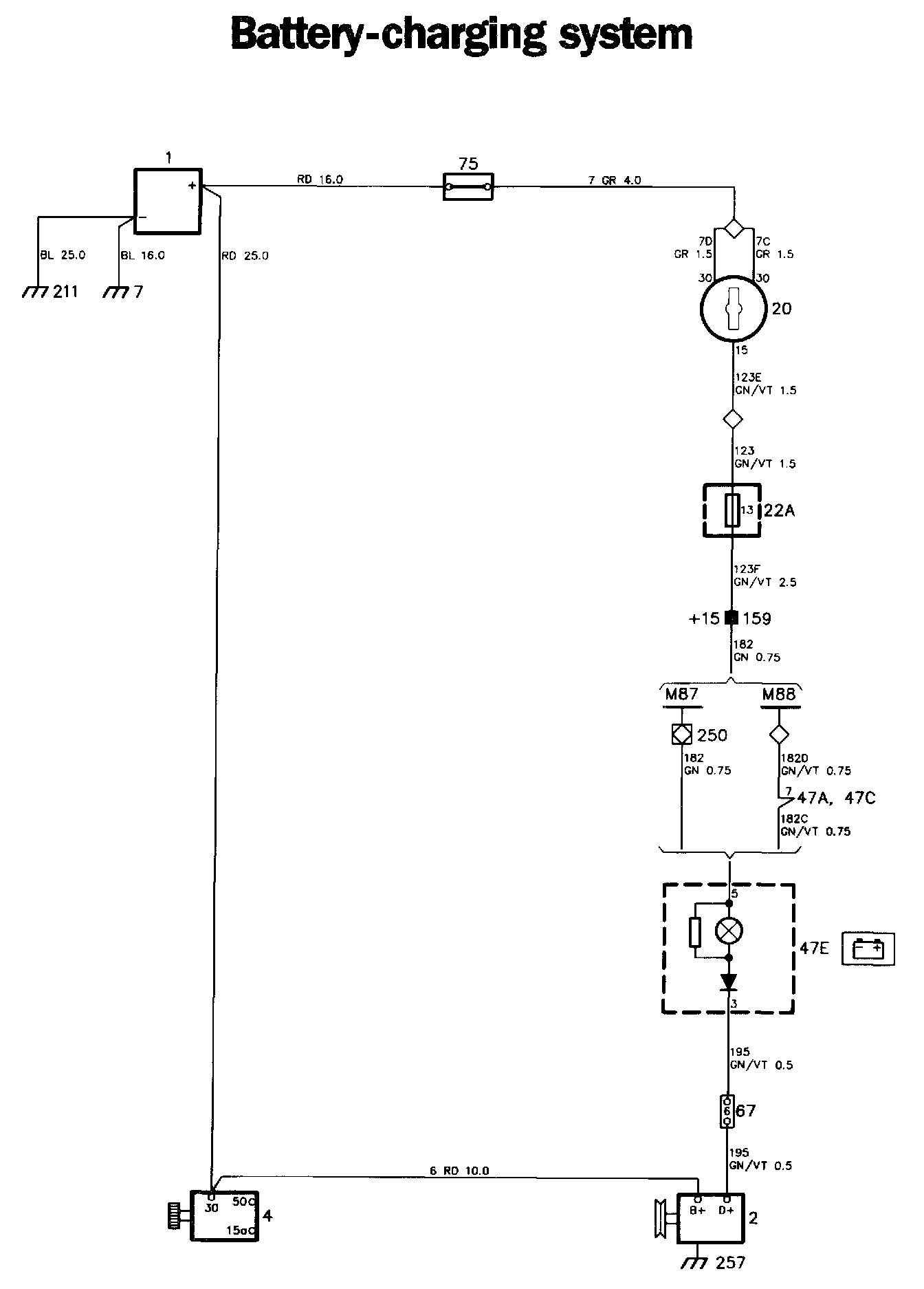
Charging System Components:




Charging System Diagrams:




Locations of components

1 Battery
In the engine compartment

2 Alternator
On the right-hand side of the engine, at the rear

4 Starter motor
On the left-hand side of the engine, at the rear

7 Earthing point, left-hand wheel housing

20 Ignition switch
On the right-hand side of the steering column

22A Fuse board
Behind the access panel in the glove compartment

47A Fuel gauge
In the combined instrument

47C Coolant temperature gauge
In the combined instrument

47E Charging warning lamp
In the combined instrument, on the board for indicating and warning lamps

67 Six-pole connector
In the engine compartment at the wiper motor

75 Distribution block
Forward of the battery

159 Distribution terminal +15
In the electrical distribution box behind the glove compartment

211 Earthing point
On the gearbox

257 Earthing point
On the alternator bracket

Operation
The charging warning lamp informs the driver of whether or not the battery is being charged.

When ignition switch 20 is in the drive position, a positive voltage will be supplied across fuse 13 to charging warning lamp 47E in the combined instrument and then to alternator 2.

When the alternator is not rotating or when it is not charging the battery for any other reason, the circuit for the charging warning lamp will be earthed through the alternator, and the lamp will light up.

When the alternator is charging, terminal D+ will be at the same voltage as B+. The same voltage will then be applied to both terminals of the warning lamp, and the lamp will therefore be extinguished.

Since the field excitation of the alternator Is built up through the bulb filament, the bulb rating (2 W) must not be changed.

A resistor is also connected in parallel with the bulb, to increase further the field excitation.

A diode is connected in series with the bulb and prevents the fuel pump relay from remaining energized, i.e. it prevents running-on when the engine is switched off. The diode also serves to prevent reverse currents.

Fault-tracing hints
1. Check the battery voltage at alternator 2.
2. Check fuse 13 and check that the supply to it is live.
3. Check that the bulb in the warning lamp has not failed.
4. Check the connectors, the wiring and the earth connection of the alternator.
5. Check that terminal D+ of the alternator is live.
6. Start the engine and measure the voltage between B+ on the alternator and earth. Also measure the voltage between D+ on the alternator and earth. The difference between these two voltages should not be greater than 0.7V.