Curiosii for ever!
: Car repair manuals for everyone.
Home
>>
Porsche
>>
2012
>>
911 Carrera S (997) F6-3.8L
>>
Repair and Diagnosis
>>
Relays and Modules
>>
Relays and Modules - Body and Frame
>>
Memory Positioning Module
>>
Diagrams
>>
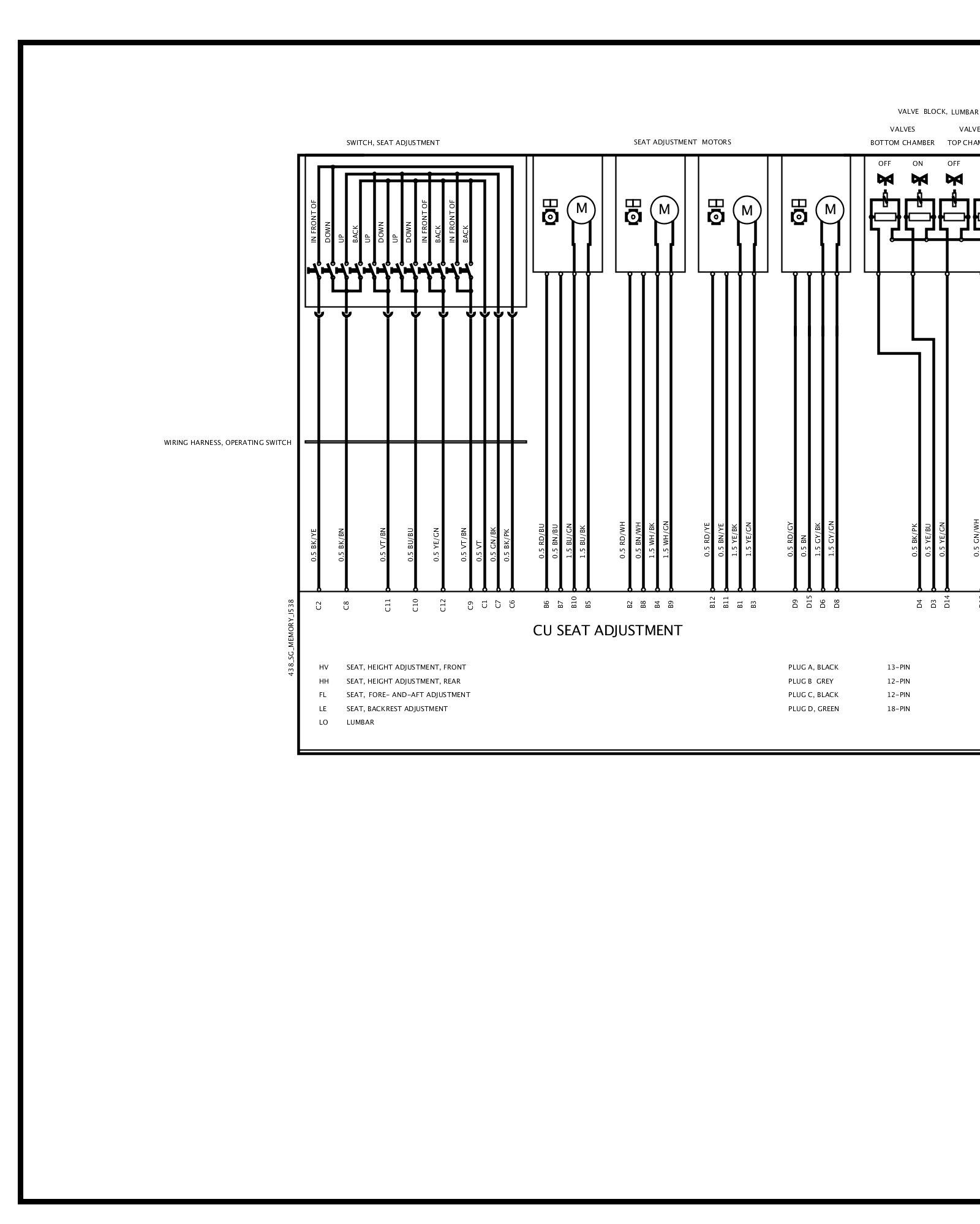
(10BM) Passenger Seat Memory
(10BM) Passenger Seat Memory
(10BM) Passenger Seat Memory