Curiosii for ever!: Car repair manuals for everyone.

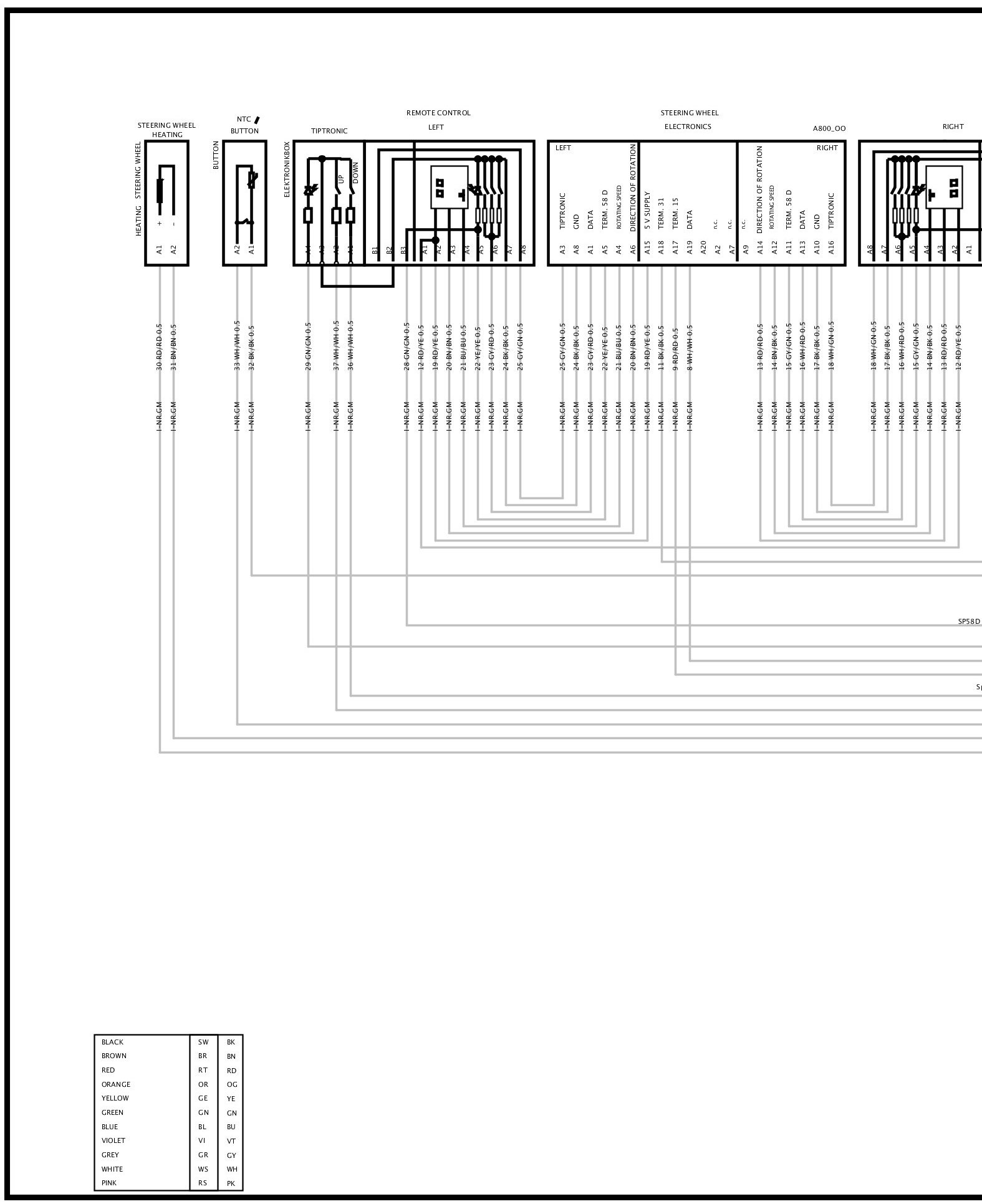
Pre-Wiring For Steering Column Module Multi-Function - Sheet 06A



Pre-Wiring For Steering Column Module Multi-Function - Sheet 06A


Pre-Wiring For Steering Column Module Multi-Function - Sheet 06A (Part 1):





Pre-Wiring For Steering Column Module Multi-Function - Sheet 06A (Part 2):





Pre-Wiring For Steering Column Module Multi-Function - Sheet 06A (Part 3):






Diagrams: Other diagrams referred to by name and sheet number/coordinate (i.e. "Instrument Cluster 3/C5") within these diagrams can be found at the vehicle level under Diagrams By Name. Diagrams By Name