Curiosii for ever!
: Car repair manuals for everyone.
Home
>>
Porsche
>>
2006
>>
Cayenne (9PA) V6-3.2L
>>
Repair and Diagnosis
>>
Maintenance
>>
Alignment
>>
Service and Repair
>>
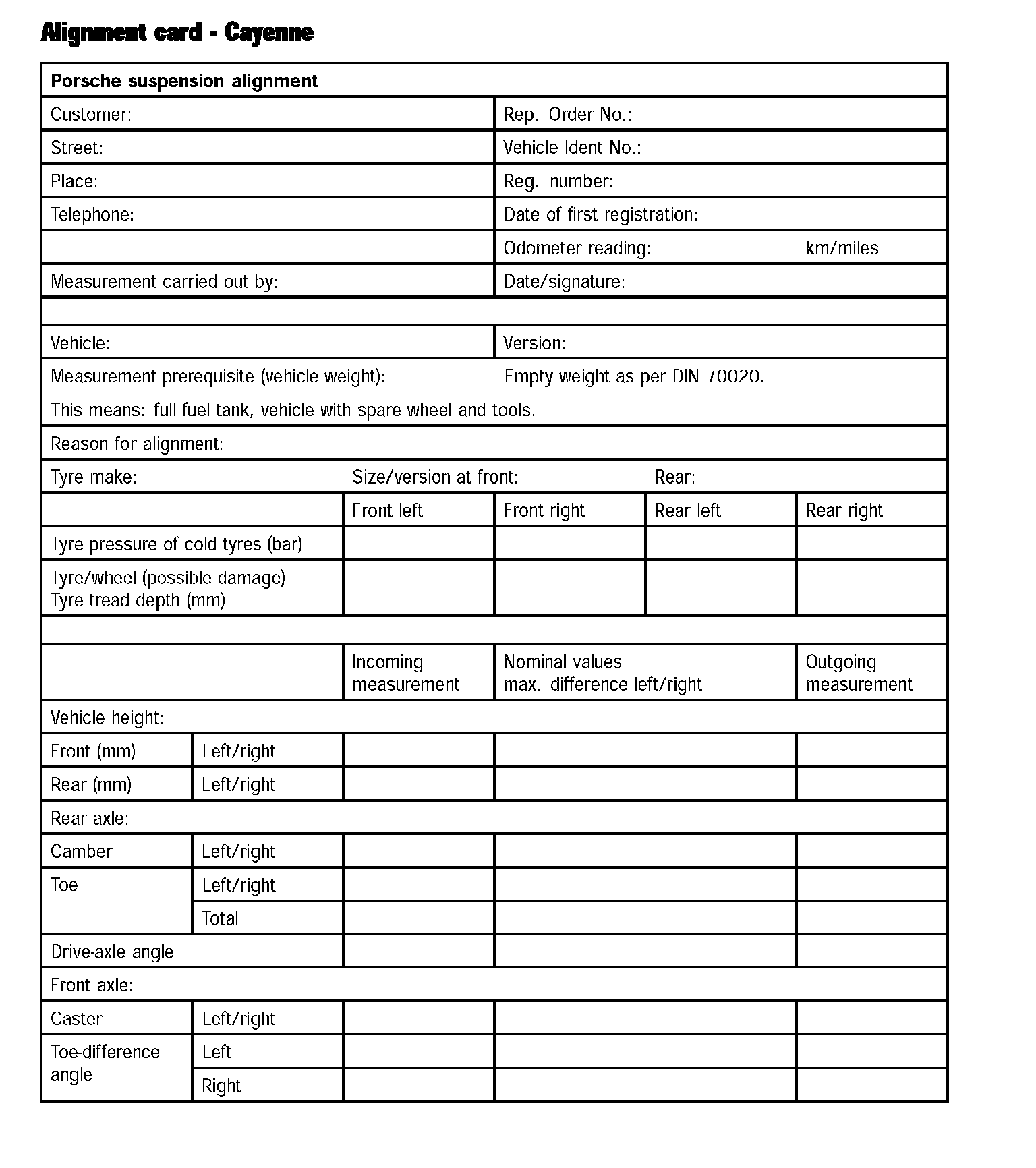
Alignment Card - Cayenne
Alignment Card - Cayenne
Alignment card - Cayenne
Alignment card - Cayenne (Part 1):
Alignment card - Cayenne (Part 2):