Curiosii for ever!: Car repair manuals for everyone.

Body Control Systems




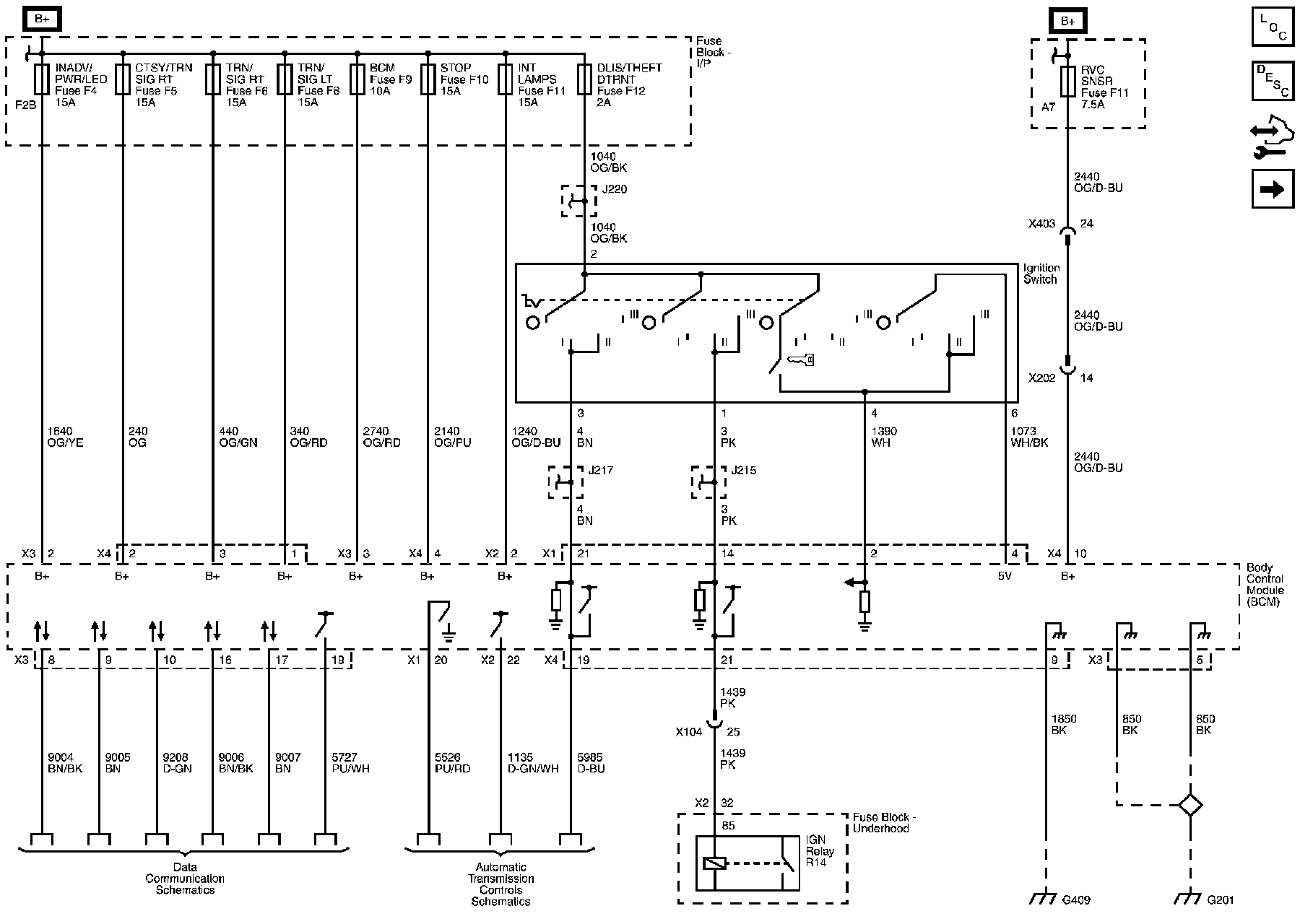
Body Control System Schematics

Module Power, Ground, Serial Data, and Transmission Subsystem References





Cruise Control, Exterior Lights, Interior Lights, Horn, Door Lock, Release System, Hydraulic Brakes, and Antilock Brake Subsystem References





Headlight, Wiper/Washer, Fog Light, Exterior Lights, and Starting and Charging Subsystem References





Instrument Cluster, Door Lock, Heated/Cooled Seat, Immobilizer, and Power Moding Subsystem References