Curiosii for ever!: Car repair manuals for everyone.

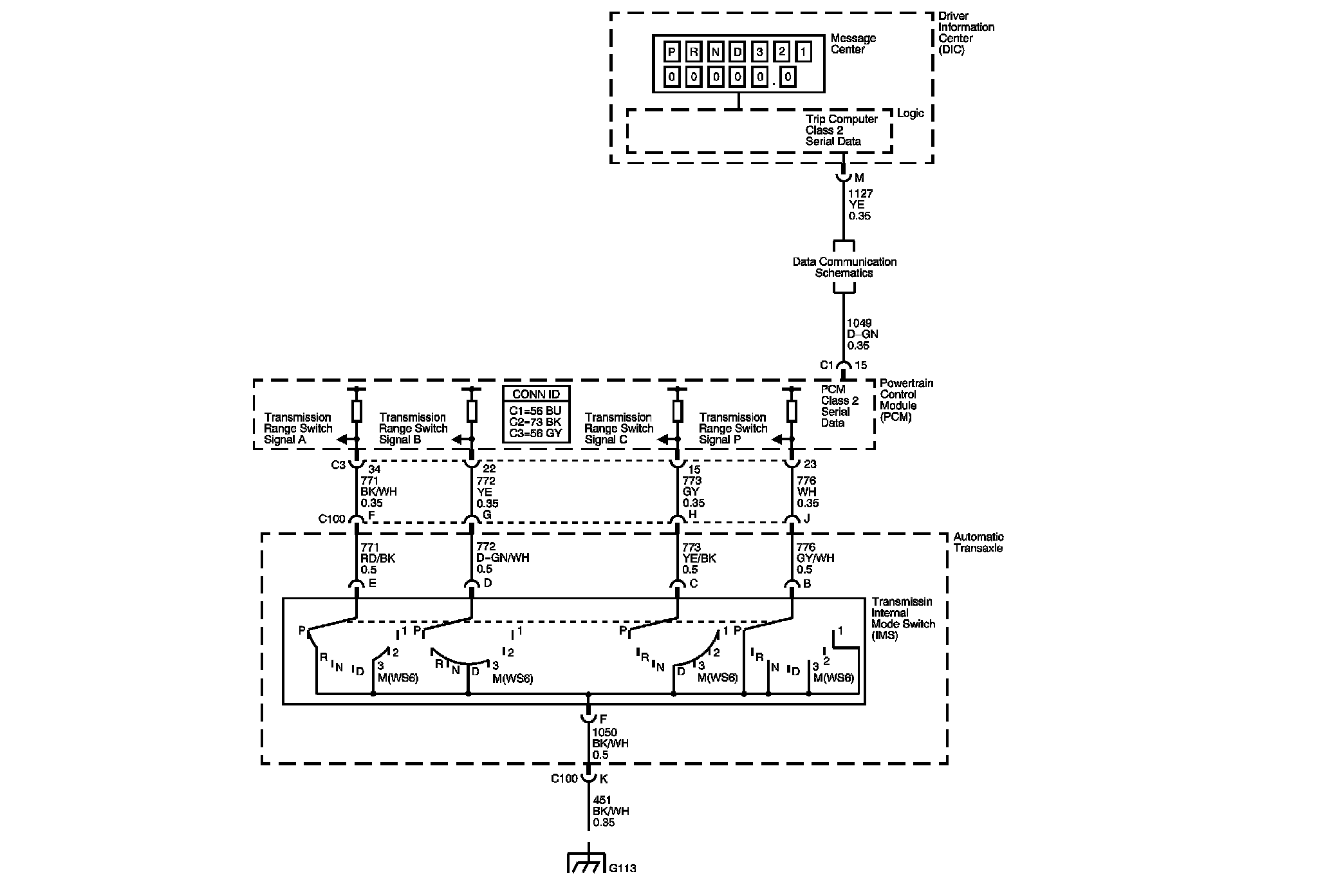
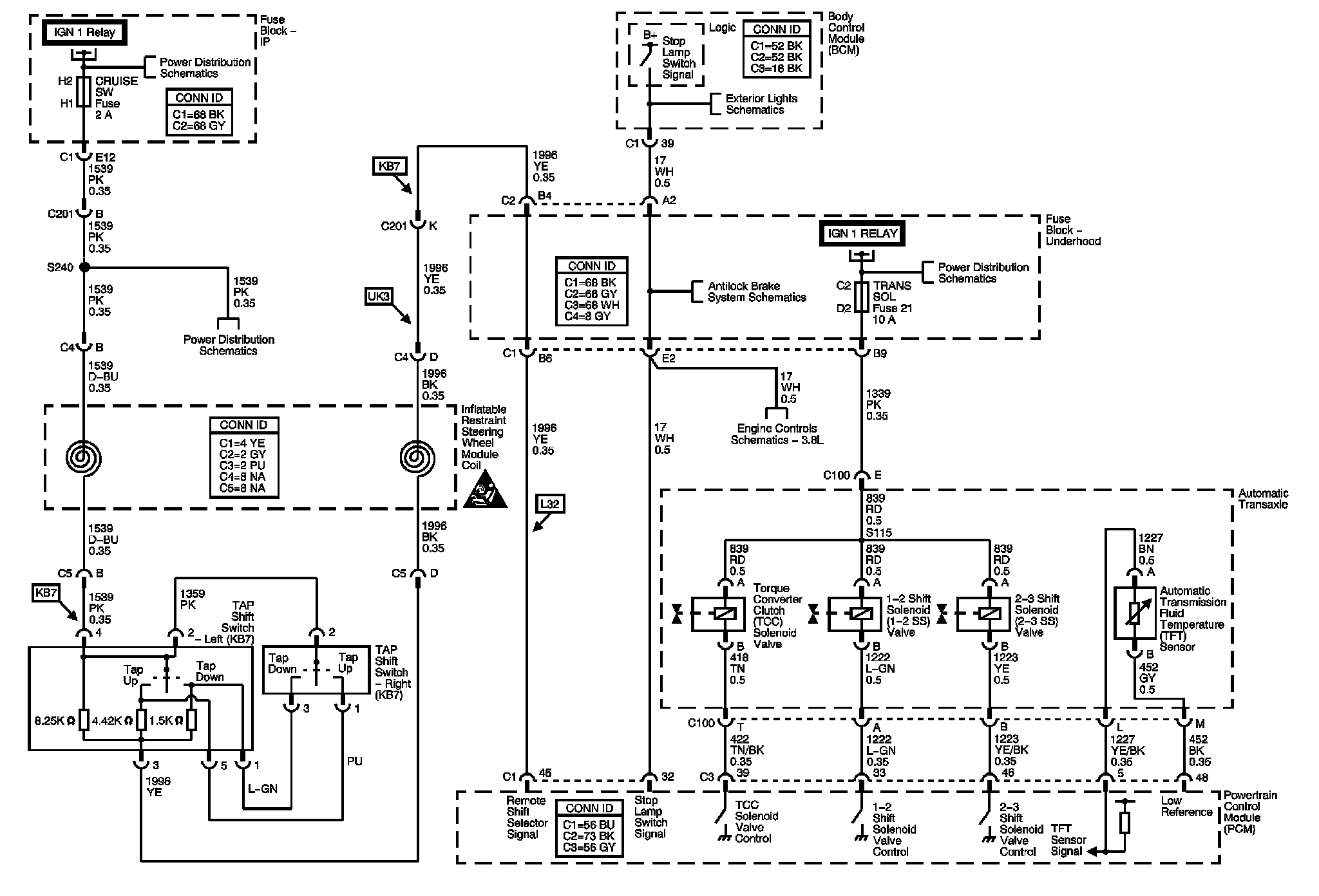
Automatic Transmission Controls Schematics (L26, L32)



Automatic Transmission Controls Schematics (L26, L32)

Automatic Transmission Controls Schematics (L26, L32) 1:




Automatic Transmission Controls Schematics (L26, L32) 2:




Automatic Transmission Controls Schematics (L26, L32) 3:





Locations: The locations for the Connectors, Grounds, Splices, and Grommets shown within these diagrams can be found via their numbers at Vehicle Locations. Locations