Curiosii for ever!: Car repair manuals for everyone.

Engine Oil Level Sensor/Switch Diagnosis

Diagnostic Chart:




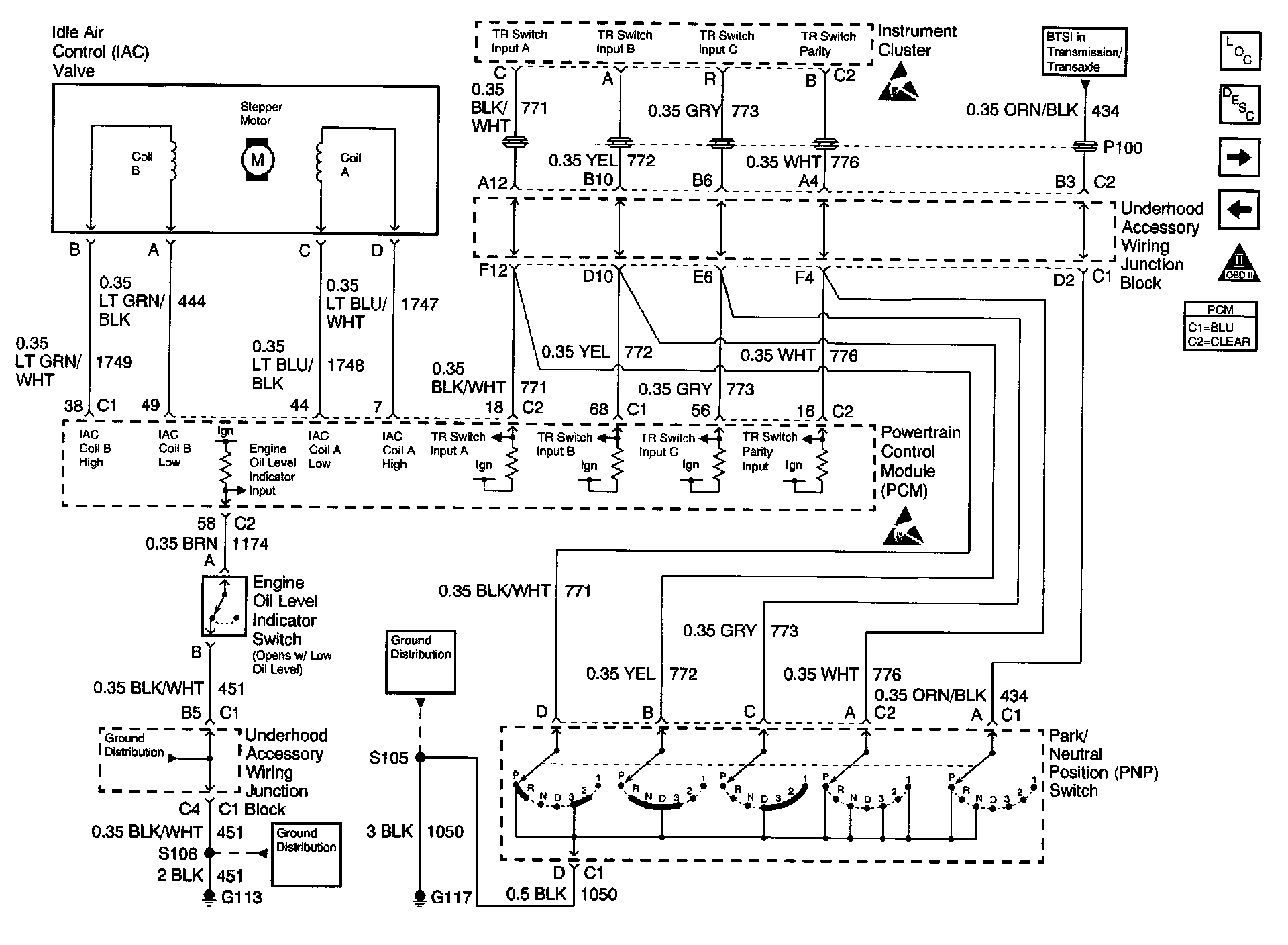
Engine Controls Schematics: I/P, Generator and Driver Information Display:






CIRCUIT DESCRIPTION
The Engine Oil Level Switch is a simple float switch that is grounded when the engine oil level is OK. The PCM checks the Engine Oil Level switch circuit at start-up. Before checking the state of the Engine Oil Level switch, the PCM performs a test routine based on time and engine coolant temperature to ensure that the engine oil has drained back into the sump. To test for low oil level at start-up, both of the following conditions must be present:
^ The engine coolant temperature must be greater than 15°C (59°F).
^ The engine coolant temperature at key ON must be at least 12°C (22°F) cooler than the engine coolant temperature at the last key OFF.

DIAGNOSTIC AIDS
For diagnosis of the instrument panel, perform the System Check in Instrument Panel, Gauges and Console.

Check for the following conditions:

IMPORTANT: Remove any debris from the connector surfaces before servicing a component. Inspect the connector gaskets when diagnosing or replacing a component. Ensure that the gaskets are installed correctly. The gaskets prevent contaminate intrusion.

^ Poor terminal connection.
Inspect the harness connectors for backed out terminals, improper mating, broken locks, improperly formed or damaged terminals, and faulty terminal to wire connection. Use a corresponding mating terminal to test for proper tension. Refer to Diagrams for diagnosis and repair.
^ Damaged harness.
Inspect the wiring harness for damage. If the harness inspection does not reveal a problem, observe the display on the scan tool while moving connectors and wiring harnesses related to the sensor. A change in the scan tool display may indicate the location of the fault. Refer to Diagrams for diagnosis and repair.
^ Inspect the PCM and the engine grounds for clean and secure connections.

If the DTC is determined to be intermittent, reviewing the Failure Records can be useful in determining when the DTC was last set.

TEST DESCRIPTION
Numbers below refer to the step numbers on the Diagnostic Chart:
11. This vehicle is equipped with a PCM which utilizes an Electrically Erasable Programmable Read Only Memory (EEPROM). When the PCM is being replaced, the new PCM must be programmed.
12. For the PCM to check engine oil level, start-up engine coolant temperature must be at least 12°C (22°F) cooler than the engine coolant temperature was last time the ignition was turned off. Allowing the engine to warm and then cool ensures that the PCM checks the engine oil level switch and that the information displayed on the scan tool is current.