Curiosii for ever!
: Car repair manuals for everyone.
Home
>>
Oldsmobile
>>
1987
>>
Calais FWD L4-151 2.5L
>>
Repair and Diagnosis
>>
Diagrams
>>
Electrical Diagrams
>>
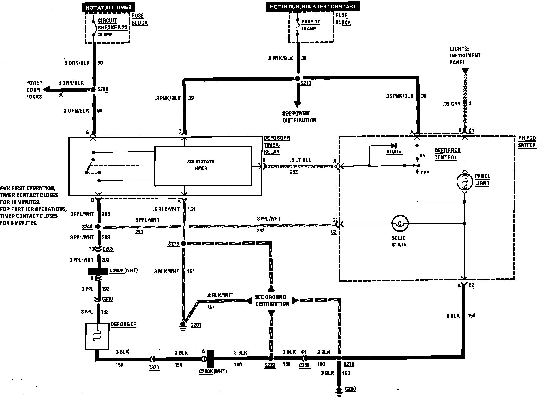
Heated Glass Element
Heated Glass Element
Defogger Wiring Circuit: