Curiosii for ever!: Car repair manuals for everyone.

Inspection Procedure A-3




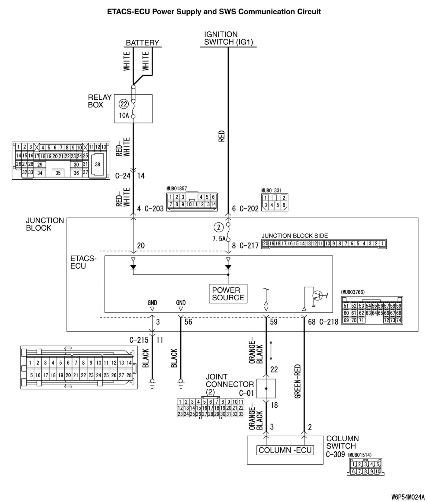
INSPECTION PROCEDURE A-3: Communication with the ETACS-ECU is not possible.






















CIRCUIT OPERATION

- The power supply to the ETACS-ECU is provided by the battery and the ignition switch (IG1).
- If the power supply system from the battery is defective, the system operates by the power supply from the ignition switch (IG1).

TECHNICAL DESCRIPTION (COMMENT)

It is suspected that the power supply circuit to the ETACS-ECU is defective, or the wiring harness between the SWS monitor kit and the ETACS-ECU or their connector(s) is damaged. If the battery power supply circuit to the ECU (terminal 20 of the ETACS-ECU) is damaged, also check the power supply circuit from the ignition switch (IG1) (terminal 8 of the ETACS-ECU), and repair if necessary. If the ground circuit to the ECU (terminal 3 of the ETACS-ECU) is damaged, also check the ground circuit to the sensor (terminal 56 of the ETACS-ECU), and repair if necessary.

TROUBLESHOOTING HINTS

- The wiring harness or connectors may have loose, corroded, or damaged terminals, or terminals pushed back in the connector
- The ETACS-ECU may be defective

DIAGNOSIS

Required Special Tools:

- MB991223: Harness Set
- MB992006: Extra Fine Probe
- MB991958: Scan Tool (M.U.T.-III Sub Assembly)
- MB991824: V.C.I.
- MB991827: M.U.T.-III USB Cable
- MB991910: M.U.T.-III Main Harness A

STEP 1. Check ETACS-ECU connectors C-217 and C-218 for loose, corroded or damaged terminals, or terminals pushed back in the connector.





Q. Are ETACS-ECU connectors C-217 and C-218 in good condition?

YES Go to Step 2.

NO Repair or replace the damaged component(s). Harness Connector Inspection. The system should communicate with the ETACS-ECU normally.

STEP 2. Check the battery power supply circuit to the ETACS-ECU. Measure the voltage at ETACS-ECU connector C-217.





(1)Disconnect ETACS-ECU connector C-217 and measure the voltage available at the junction block side of the connector.





(2)Measure the voltage between terminal 20 and ground.

- The voltage should measure approximately 12 volts (battery positive voltage).

Q. Is the measured voltage approximately 12 volts (battery positive voltage)?

YES Go to Step 4.

NO Go to Step 3.

STEP 3. Check the wiring harness between ETACS-ECU connector C-217 (terminal 20) and the battery.

- Check the power supply line (battery supply) for open circuit and short circuit.













NOTE:
Also check intermediate connector C-24 and junction block connector C-203 for loose, corroded, or damaged terminals, or terminals pushed back in the connector. If intermediate connector C-24 or junction block connector C-203 are damaged, repair or replace the damaged component(s) as described in Harness Connector Inspection Harness Connector Inspection.

Q. Is the wiring harness between ETACS-ECU connector C-217 (terminal 20) and the battery in good condition?

YES No action is necessary and testing is complete.

NO The wiring harness may be damaged or the connector(s) may have loose, corroded or damaged terminals, or terminals pushed back in the connector. Repair the wiring harness as necessary. The system should communicate with the ETACS-ECU normally.

STEP 4. Check the ground circuit to the ETACS-ECU. Measure the resistance at ETACS-ECU connector C-217.





(1)Disconnect ETACS-ECU connector C-217 and measure the resistance available at the junction block side of the connector.





(2)Measure the resistance value between terminal 3 and ground.

- The resistance should be 2 ohms or less.

Q. Is the measured resistance 2 ohms or less?

YES Go to Step 6.

NO Go to Step 5.

STEP 5. Check the wiring harness between ETACS-ECU connector C-217 (terminal 3), C-218 (terminal 56) and ground.

- Check the ground wire for open circuit.









NOTE:
Also check junction block connector C-215 for loose, corroded, or damaged terminals, or terminals pushed back in the connector. If junction block connector C-215 is damaged, repair or replace the damaged component(s) as described in Harness Connector Inspection Harness Connector Inspection.

Q. Is the wiring harness between ETACS-ECU connector C-217 (terminal 3), C-218 (terminal 56) and ground in good condition?

YES No action is necessary and testing is complete.

NO The wiring harness may be damaged or the connector(s) may have loose, corroded or damaged terminals, or terminals pushed back in the connector. Repair the wiring harness as necessary. The system should communicate with the ETACS-ECU normally.

STEP 6. Check column switch connector C-309 for loose, corroded or damaged terminals, or terminals pushed back in the connector.





Q. Is column switch connector C-309 in good condition?

YES Go to Step 7.

NO Repair or replace the damaged component(s). Harness Connector Inspection. The system should communicate with the ETACS-ECU normally.

STEP 7. Check the wiring harness between column switch connector C-309 (terminal 2) and ETACS-ECU connector C-218 (terminal 68).

- Check the communication lines for open circuit and short circuit.









Q. Is the wiring harness between column switch connector C-309 (terminal 2) and ETACS-ECU connector C-218 (terminal 68) in good condition?

YES Go to Step 8.

NO The wiring harness may be damaged or the connector(s) may have loose, corroded or damaged terminals, or terminals pushed back in the connector. Repair the wiring harness as necessary. The system should communicate with the ETACS-ECU normally.

STEP 8. Check the wiring harness between column switch connector C-309 (terminal 3) and ETACS-ECU connector C-218 (terminal 59).

- Check the communication lines for open circuit and short circuit.













NOTE:
Also check joint connector C-01 for loose, corroded, or damaged terminals, or terminals pushed back in the connector. If joint connector C-01 is damaged, repair or replace the damaged component(s) as described in Harness Connector Inspection Harness Connector Inspection.

Q. Is the wiring harness between column switch connector C-309 (terminal 3) and ETACS-ECU connector C-218 (terminal 59) in good condition?

YES Replace the ETACS-ECU. When the ETACS-ECU is replaced, register the encrypted code. Encrypted Code Registration Criteria Table. The system should communicate with the ETACS-ECU normally.

NO The wiring harness may be damaged or the connector(s) may have loose, corroded or damaged terminals, or terminals pushed back in the connector. Repair the wiring harness as necessary. The system should communicate with the ETACS-ECU normally.