Curiosii for ever!: Car repair manuals for everyone.

Inspection Procedure A-2




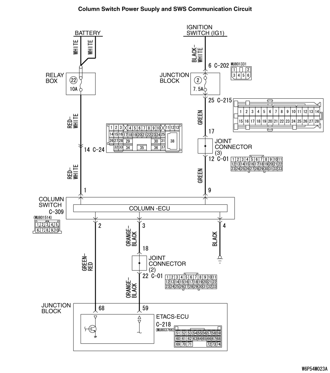
INSPECTION PROCEDURE A-2: Communication with the column switch (column-ECU) is not possible.

NOTE:
This troubleshooting procedure requires the use of scan tool MB991958 and SWS monitor kit MB991813. For details on how to use the SWS monitor, refer to "How to use SWS monitor How to Use SWS Monitor."


















CIRCUIT OPERATION

- The power supply to the column switch is provided by the battery and the ignition switch (IG1).
- If the power supply system from the battery is defective, the system operates by the power supply from the ignition switch (IG1).

TECHNICAL DESCRIPTION (COMMENT)

The power supply circuit to the column switch (column-ECU) may be defective. If the battery power supply circuit (terminal 1 of the column switch) to the ECU is damaged, also check the power supply circuit from the ignition switch (IG1) (terminal 9 of the column switch), and repair if necessary.

TROUBLESHOOTING HINTS

- The wiring harness or connectors may have loose, corroded, or damaged terminals, or terminals pushed back in the connector
- The column switch may be defective
- The ETACS-ECU may be defective

DIAGNOSIS

Required Special Tools:

- MB991223: Harness Set
- MB992006: Extra Fine Probe
- MB991958: Scan Tool (M.U.T.-III Sub Assembly)
- MB991824: V.C.I.
- MB991827: M.U.T.-III USB Cable
- MB991910: M.U.T.-III Main Harness A
- MB991813: SWS Monitor Kit
- MB991806: SWS Monitor Cartridge
- MB991812: SWS Monitor Harness (For Column-ECU)
- MB991822: Probe Harness

STEP 1. Use scan tool MB991958 to select "ECU COMM Check" on the SWS monitor display.

Check the following ECUs:

- ETACS-ECU
- Column-ECU









(1)
CAUTION:
To prevent damage to scan tool MB991958, always turn the ignition switch to the "LOCK" (OFF) position before connecting or disconnecting scan tool MB991958. Connect special tool MB991910 before connecting special tool MB991812. Be sure to connect special tool MB991806 after turning on special tool MB991824.

Connect the special tool. Refer to "How to connect SWS monitor How to Connect SWS Monitor."
(2)Turn the ignition switch to the "LOCK" (OFF) position.
(3)Operate scan tool MB991958 according to the procedure below to display "ECU COMM Check."

.....Select "Interactive Diagnosis."

.....Select "System select."

.....Select "SWS."

.....Select "SWS MONITOR."

.....Select "ECU COMM Check."
(4)Scan tool MB991958 should show "OK" on the "ECU COMM Check" menus for both the "ETACS ECU" and the "COLUMN ECU" menus.

Q. Are "OK" displayed for both the "ETACS ECU" and "COLUMN ECU" menus?

"OK" are displayed for all the items : Go to Step 2.

"NG" is displayed for the "COLUMN ECU" menu : Go to Step 6.

"NG" is displayed for the "ETACS ECU" menu : Refer to Inspection Procedure A-3 "Communication with the ETACS-ECU is not possible Inspection Procedure A-3."

"NG" is displayed for all the items : Refer to Inspection Procedure A-3 "Communication with the ETACS-ECU is not possible Inspection Procedure A-3."

STEP 2. Check column switch connector C-309 for loose, corroded or damaged terminals, or terminals pushed back in the connector.





Q. Is column switch connector C-309 in good condition?

YES Go to Step 3.

NO Repair or replace the damaged component(s). The system should communicate with the column switch (column-ECU) normally.

STEP 3. Check the power supply circuit to the column switch. Measure the voltage at column switch connector C-309.





(1)Disconnect column switch connector C-309 and measure the voltage available at the wiring harness side of the connector.





(2)Measure the voltage between terminal 1 and ground by backprobing.

- The voltage should measure approximately 12 volts (battery positive voltage).

Q. Is the measured voltage approximately 12 volts (battery positive voltage)?

YES Go to Step 5.

NO Go to Step 4.

STEP 4. Check the wiring harness between column switch connector C-309 (terminal 1) and the battery.

- Check the power supply line (battery supply) for open circuit and short circuit.









NOTE:
Also check intermediate connector C-24 for loose, corroded, or damaged terminals, or terminals pushed back in the connector. If intermediate connector C-24 is damaged, repair or replace the connector as described in Harness Connector Inspection Harness Connector Inspection.

Q. Is the wiring harness between column switch connector C-309 (terminal 1) and the battery in good condition?

YES No action is necessary and testing is complete.

NO The wiring harness may be damaged or the connector(s) may have loose, corroded or damaged terminals, or terminals pushed back in the connector. Repair the wiring harness as necessary. The system should communicate with the column switch (column-ECU) normally.

STEP 5. Check the ground circuit to the column switch. Measure the resistance at column switch connector C-309.





(1)Disconnect column switch connector C-309 and measure the resistance available at the wiring harness side of the connector.





(2)Measure the resistance value between terminal 4 and ground.

- The resistance should be 2 ohms or less.

Q. Is the measured resistance 2 ohms or less?

YES Go to Step 7.

NO Go to Step 6.

STEP 6. Check the wiring harness between column switch connector C-309 (terminal 4) and ground.

- Check the ground wire for open circuit.





Q. Is the wiring harness between column switch connector C-309 (terminal 4) and ground in good condition?

YES No action is necessary and testing is complete.

NO The wiring harness may be damaged or the connector(s) may have loose, corroded or damaged terminals, or terminals pushed back in the connector. Repair the wiring harness as necessary. The system should communicate with the column switch (column-ECU) normally.

STEP 7. Check ETACS-ECU connector C-218 for loose, corroded or damaged terminals, or terminals pushed back in the connector.





Q. Is ETACS-ECU connector C-218 in good condition?

YES Go to Step 8.

NO Repair or replace the damaged component(s). Harness Connector Inspection. The system should communicate with the column switch (column-ECU) normally.

STEP 8. Check the wiring harness between column switch connector C-309 (terminal 3) and ETACS-ECU connector C-218 (terminal 59).

- Check the communication lines for open circuit and short circuit.













NOTE:
Also check joint connector C-01 for loose, corroded, or damaged terminals, or terminals pushed back in the connector. If joint connector C-01 is damaged, repair or replace the connector as described in Harness Connector Inspection Harness Connector Inspection.

Q. Is the wiring harness between column switch connector C-309 (terminal 3) and ETACS-ECU connector C-218 (terminal 59) in good condition?

YES Go to Step 9.

NO The wiring harness may be damaged or the connector(s) may have loose, corroded or damaged terminals, or terminals pushed back in the connector. Repair the wiring harness as necessary. The system should communicate with the column switch (column-ECU) normally.

STEP 9. Check the wiring harness between column switch connector C-309 (terminal 2) and ETACS-ECU connector C-218 (terminal 68).

- Check the communication lines for open circuit and short circuit.









Q. Is the wiring harness between column switch connector C-309 (terminal 2) and ETACS-ECU connector C-218 (terminal 68) in good condition?

YES Go to Step 10.

NO The wiring harness may be damaged or the connector(s) may have loose, corroded or damaged terminals, or terminals pushed back in the connector. Repair the wiring harness as necessary. The system should communicate with the column switch (column-ECU) normally.

STEP 10. Replace the column switch.

(1)Replace the column switch.

(2)The system should communicate with the column switch (column-ECU) normally.

Q. Can the system communicate with the column switch (column-ECU)?

YES No action is necessary and testing is complete.
NO Replace the ETACS-ECU. When the ETACS-ECU is replaced, register the encrypted code. Encrypted Code Registration Criteria Table. The system should communicate with the column switch (column-ECU) normally.