Curiosii for ever!: Car repair manuals for everyone.

Diagnostics Item 13




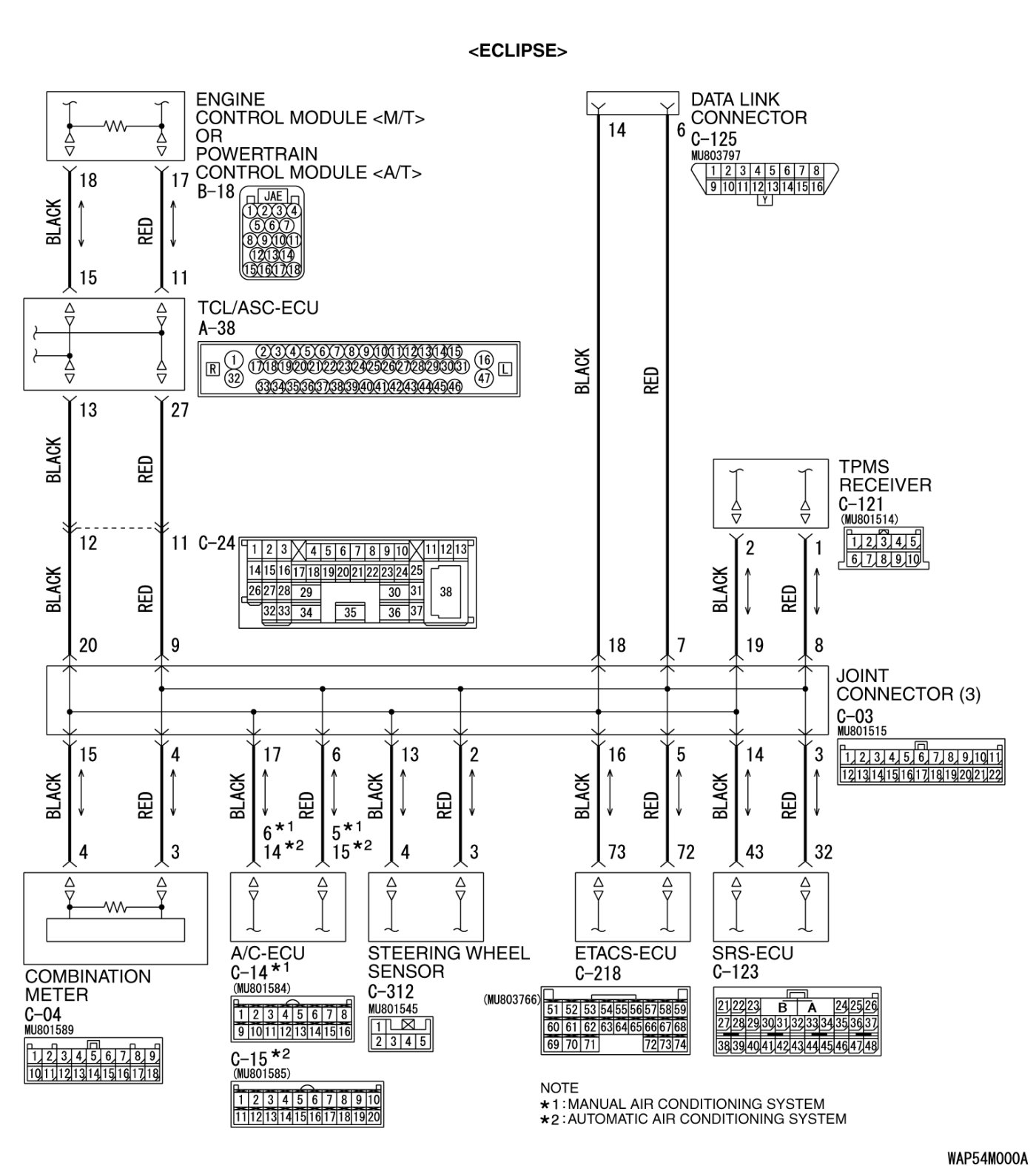
DIAGNOSTIC ITEM 13: Diagnose when the scan tool cannot receive the data sent by the ECM [M/T] or the PCM [A/T] and TCL/ASC-ECU. [ECLIPSE]

CAUTION:
When servicing a CAN bus line, ground yourself by touching a metal object such as an unpainted water pipe. If you fail to do so, a component connected to the CAN bus line may be damaged.














FUNCTION

The diagnostic result demonstrates that "the scan tool cannot receive the sent data from the ECM [M/T] or PCM [A/T] and TCL/ASC-ECU" when the scan tool MB991958 checks the periodically sent data from each ECU and cannot receive TCL/ASC-ECU and ECM [M/T] or PCM [A/T] data only.

TROUBLE JUDGMENT CONDITIONS

Scan tool MB991958 judges the trouble when the periodically sent data from TCL/ASC-ECU and ECM [M/T] or PCM [A/T] cannot be received and sent.

TROUBLESHOOTING HINTS

- The wiring harness may be defective [open circuit between TCL/ASC-ECU and joint connector (3) or open circuit between TCL/ASC-ECU and ECM [M/T] or PCM [A/T]]
- The connector may be defective [poor connection of joint connector (3) or TCL/ASC-ECU connector]
- The TCL/ASC-ECU may be defective (internal open circuit)
- The ECM [M/T] or PCM [A/T] may be defective (internal open circuit)


DIAGNOSIS

Required Special Tools:

- MB991223: Harness Set
- MB992006: Extra fine probe
- MB991923: Power plant ECU Check Harness
- MB991997: ASC Check Harness

STEP 1. Check joint connector (3) C-03 and TCL/ASC-ECU connector A-38 for loose, corroded or damaged terminals, or terminals pushed back in the connector.









CAUTION:
The strand end of the twisted wire should be within 10 cm (4.0 inches) from the connector. For details refer to Precautions When CAN Bus Line(s) are Repaired.

Q. Are joint connector (3) C-03 and TCL/ASC-ECU connector A-38 in good condition?

YES Go to Step 2.

NO Repair the damaged parts. Replace the joint connector as necessary.

STEP 2. Check the CAN bus lines between intermediate connector C-24 and joint connector (3). Measure the resistance between intermediate connector C-24 and joint connector (3) C-03.

CAUTION:

- A digital multimeter should be used. For details refer to Precautions When CAN Bus Line(s) are Repaired .
- The test wiring harness should be used. For details refer to Precautions When CAN Bus Line(s) are Repaired .

(1)Turn the ignition switch to the "LOCK" (OFF) position.

(2)
CAUTION:
Disconnect the negative battery terminal. For details refer to Precautions When CAN Bus Line(s) are Repaired.

Disconnect the negative battery terminal.





(3)Disconnect intermediate connector C-24 and joint connector (3) C-03, and measure the resistance between the wiring harness side connector of joint connector (3) C-03 and the female side connector of intermediate connector C-24 (at instrument panel wiring harness side).





(4)Measure the resistance between intermediate connector C-24 (terminal 11) and joint connector (3) C-03 (terminal 9).
OK: 2 ohms or less






(5)Measure the resistance between intermediate connector C-24 (terminal 12) and joint connector (3) C-03 (terminal 20).
OK: 2 ohms or less

CAUTION:
Strictly observe the specified wiring harness repair procedure. For details refer to Precautions on How to Repair the CAN Bus Line(s).

Q. Do all the resistances measure 2 ohms or less?

YES Go to Step 3.

NO Repair the wiring harness between intermediate connector C-24 and the joint connector (3) C-03.

STEP 3. Check the CAN bus lines between intermediate connector C-24 and the TCL/ASC-ECU. Measure the resistance between intermediate connector C-24 and TCL/ASC-ECU connector A-38.

CAUTION:

- A digital multimeter should be used. For details refer to Precautions When CAN Bus Line(s) are Repaired .
- The test wiring harness should be used. For details refer to Precautions When CAN Bus Line(s) are Repaired .

(1)Turn the ignition switch to the "LOCK" (OFF) position.

(2)
CAUTION:
Disconnect the negative battery terminal. For details refer to Precautions When CAN Bus Line(s) are Repaired.

Disconnect the negative battery terminal.









(3)Disconnect intermediate connector C-24 and TCL/ASC-ECU connector A-38, and measure the resistance between the wiring harness side connector of TCL/ASC-ECU connector A-38 and the male side connector of intermediate connector C-24 (at front wiring harness side).





(4)Measure the resistance between intermediate connector C-24 (terminal 11) and TCL/ASC-ECU connector A-38 (terminal 27).
OK: 2 ohms or less






(5)Measure the resistance between intermediate connector C-24 (terminal 12) and TCL/ASC-ECU connector A-38 (terminal 13).
OK: 2 ohms or less

CAUTION:
Strictly observe the specified wiring harness repair procedure. For details refer to Precautions on How to Repair the CAN Bus Line(s).

Q. Do all the resistances measure 2 ohms or less?

YES Go to Step 4.

NO Repair the wiring harness between intermediate connector C-24 and the TCL/ASC-ECU connector A-38.

STEP 4. Check the CAN bus lines inside the TCL/ASC-ECU. Measure the resistance at TCL/ASC-ECU connector A-38.





(1)Disconnect TCL/ASC-ECU A-38, and measure the resistance at the component side of TCL/ASC-ECU connector A-38.





(2)Measure the resistance between TCL/ASC-ECU connector A-38 (terminals 11 and 27).
OK: 2 ohms or less






(3)Measure the resistance between TCL/ASC-ECU connector A-38 (terminals 13 and 15).
OK: 2 ohms or less

Q. Do all the resistances measure 2 ohms or less?

YES Intermittent malfunction.

NO Replace the TCL/ASC-ECU.