Curiosii for ever!: Car repair manuals for everyone.

Inspection Procedure 29




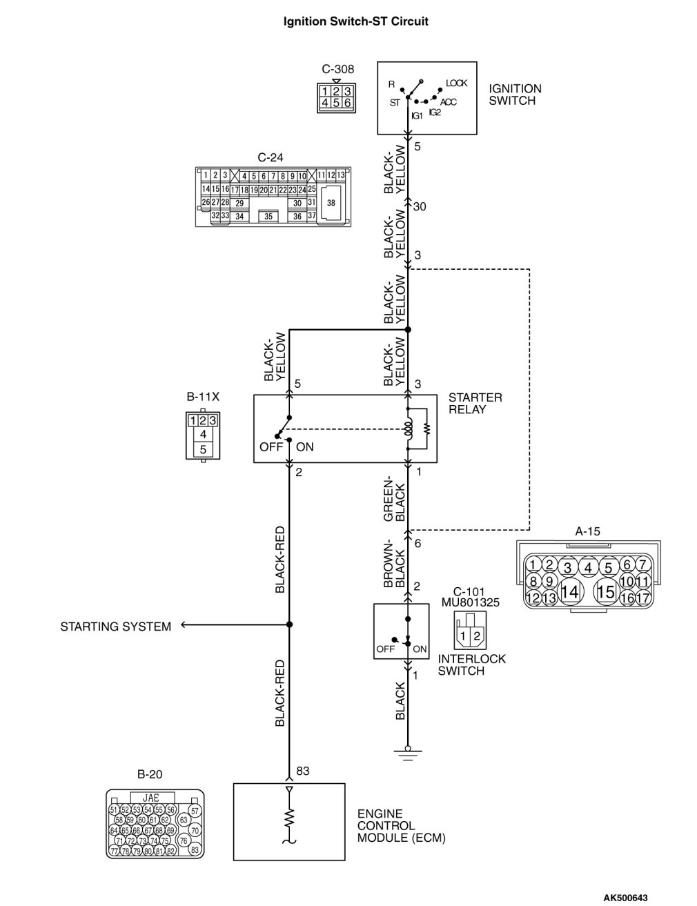
INSPECTION PROCEDURE 29: Ignition Switch-ST System [M/T]






























CIRCUIT OPERATION

- The battery positive voltage is supplied to the ECM (terminal No. 83) via the starter relay during engine cranking. With this, the ECM detects that the engine is being cranked.

TROUBLESHOOTING HINTS (The most likely causes for this case: )

- Malfunction of the ignition switch.
- Malfunction of the starter relay.
- Improper connector contact, open circuit or short-circuited harness wire.
- Malfunction of the ECM.

DIAGNOSIS

STEP 1. Check connector B-11X at starter relay for damage.





Q. Is the connector in good condition?

YES Go to Step 2.

NO Repair or replace it. Harness Connector Inspection.
Then confirm that the malfunction symptom is eliminated.

STEP 2. Check the starter relay.

Testing and Inspection.

Q. Are there any abnormalities?

YES Go to Step 3.
NO Repair or replace it. Then confirm that the malfunction symptom is eliminated.
STEP 3. Measure the power supply voltage at starter relay connector B-11X.





(1)Disconnect the connector B-11X and measure at the harness side.
(2)Turn the ignition switch to the "START" position.





(3)Measure the voltage between terminal No. 3, No. 5 and ground.

- Voltage should be battery positive voltage.
(4)Turn the ignition switch to the "LOCK" (OFF) position.

Q. Is battery positive voltage (approximately 12 volts) present?

YES Go to Step 4.

NO Check connectors A-15 and C-24 at intermediate connector for damage, and repair or replace as required. Harness Connector Inspection.
If intermediate connector is in good condition, repair harness wire between ignition switch connector C-308 (terminal No. 5) and starter relay connector B-11X (terminal No. 3, No. 5) because of open circuit. Then confirm that the malfunction symptom is eliminated.

STEP 4. Check connector B-20 at ECM for damage.





Q. Is the connector in good condition?

YES Go to Step 5.

NO Repair or replace it. Harness Connector Inspection.
Then confirm that the malfunction symptom is eliminated.

STEP 5. Measure the power supply voltage at ECM connector B-20.





(1)Disconnect the connector B-20 and measure at the harness side.
(2)Turn the ignition switch to the "START" position.





(3)Measure the voltage between terminal No. 83 and ground.

- Voltage should be battery positive voltage.
(4)Turn the ignition switch to the "LOCK" (OFF) position.

Q. Is battery positive voltage (approximately 12 volts) present?

YES Go to Step 6.

NO Repair harness wire between starter relay connector B-11X (terminal No. 2) and ECM connector B-20 (terminal No. 83) because of open circuit. Then confirm that the malfunction symptom is eliminated.

STEP 6. Check connector C-101 at interlock switch for damage.





Q. Is the connector in good condition?

YES Go to Step 7.

NO Repair or replace it. Harness Connector Inspection.
Then confirm that the malfunction symptom is eliminated.

STEP 7. Check the interlock switch.

Testing and Inspection.

Q. Are there any abnormalities?

YES Go to Step 8.
NO Repair or replace it. Then confirm that the malfunction symptom is eliminated.
STEP 8. Measure the power supply voltage at interlock switch connector C-101.





(1)Disconnect the connector C-101 and measure at the harness side.
(2)Turn the ignition switch to the "START" position.





(3)Measure the voltage between terminal No. 2 and ground.

- Voltage should be battery positive voltage.
(4)Turn the ignition switch to the "LOCK" (OFF) position.

Q. Is battery positive voltage (approximately 12 volts) present?

YES Go to Step 9.

NO Check connector A-15 at intermediate connector for damage, and repair or replace as required. Harness Connector Inspection. If intermediate connectors is in good condition, repair harness wire between starter relay connector B-11X (terminal No. 1) and interlock switch connector C-101 (terminal No. 2) because of open circuit. Then confirm that the malfunction symptom is eliminated.

STEP 9. Check the continuity at interlock switch harness side connector C-101.





(1)Disconnect the connector C-101 and measure at the harness side.





(2)Check for the continuity between terminal No. 1 and ground.

- Continuity (2ohms or less)

Q. Is the continuity normal?

YES Replace the ECM. When the ECM is replaced, register the encrypted code. Immobilizer System. Then confirm that the malfunction symptom is eliminated.

NO Repair harness wire between interlock switch connector C-101 (terminal No. 1) and ground because of open circuit or harness damage. Then confirm that the malfunction symptom is eliminated.