Curiosii for ever!: Car repair manuals for everyone.

Diagnostics Item 16




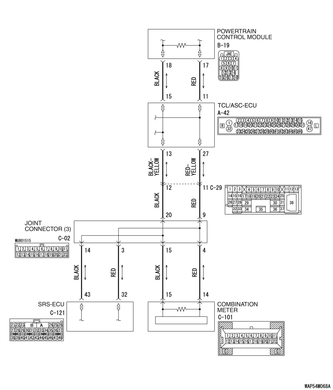
DIAGNOSTIC ITEM 16: Diagnose the lines between CAN main bus line and the SRS-ECU.

CAUTION:
When servicing a CAN bus line, ground yourself by touching a metal object such as an unpainted water pipe. If you fail to do so, a component connected to the CAN bus line may be damaged.














TROUBLE JUDGMENT

If the M.U.T.-III cannot received signals from the SRS-ECU, CAN bus line connector(s) are broken or an open circuit has occurred.

COMMENTS ON TROUBLE SYMPTOM

The wiring harness wire or connectors may have loose, corroded, or damage terminals, or terminals pushed back in the connector, or the SRS-ECU may be defective.

TROUBLESHOOTING HINTS

- The wiring harness or connectors may have loose, corroded, or damage terminals, or terminals pushed back in the connector
- The SRS-ECU may be defective

DIAGNOSIS

Required Special Tool:

- MB991223: Harness Set

STEP 1. Check joint connector (3) C-02 and SRS-ECU connector C-121 for loose, corroded or damaged terminals, or terminals pushed back in the connector.









CAUTION:
The strand end of the twisted wire should be within 10 cm (4 inches) from the connector.
For details refer to Precautions When CAN Bus Line(s) Are Repaired.





Check the joint connector at the wiring harness side for loose, corroded or damaged terminals, or terminals pushed back in the connector, and also check the short pin behind the connector for corrosion, deformation and delamination.

Q. Are joint connector (3) C-02 and SRS-ECU connector C-121 in good condition?

YES Go to Step 2.

NO Repair the damaged parts. Replace the joint connector as necessary.

STEP 2. Check the CAN bus lines between joint connector (3) and the SRS-ECU. Measure the resistance between joint connector (3) C-02 and SRS-ECU connector C-121.

CAUTION:
A digital multimeter should be used. For details refer to Precautions When CAN Bus Line(s) Are Repaired.

CAUTION:
The test wiring harness should be used. For details refer to Precautions When CAN Bus Line(s) Are Repaired.









(1)Disconnect joint connector (3) C-02 and SRS-ECU connector C-121, and measure the resistances at the wiring harness sides of joint connector (3) C-02 and SRS-ECU connector C-121.
(2)Turn the ignition switch to the "LOCK" (OFF) position.
(3)
CAUTION:
Disconnect the negative battery terminal. For details refer to Precautions When CAN Bus Line(s) Are Repaired.

Disconnect the negative battery terminal.





(4)Measure the resistance between joint connector (3) terminal 3 and SRS-ECU connector terminal 32.
OK: 2 ohms or less






(5)Measure the resistance between joint connector (3) terminal 14 and SRS-ECU connector terminal 43.
OK: 2 ohms or less

CAUTION:
Strictly observe the specified wiring harness repair procedure.
For details refer to Precautions on How to Repair the CAN Bus Line(s).

Q. Do all the resistances measure 2 ohms or less?

YES If all the resistances measure 2 ohms or less, power supply to the SRS-ECU may be suspected. Diagnose the supplemental restraint system. Introduction.

NO If either of the resistances measures more than 2 ohms or all the resistances measure more than 2 ohms, repair the wiring harness between joint connector (3) and the SRS-ECU connector.