Curiosii for ever!: Car repair manuals for everyone.

Diagnostics Item 15




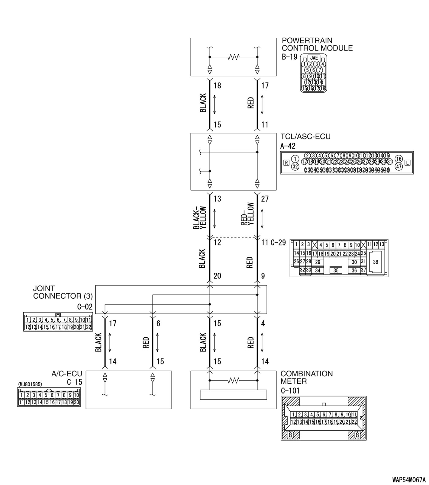
DIAGNOSTIC ITEM 15: Diagnose the lines between CAN main bus line and the A/C-ECU.

CAUTION:
When servicing a CAN bus line, ground yourself by touching a metal object such as an unpainted water pipe. If you fail to do so, a component connected to the CAN bus line may be damaged.














TROUBLE JUDGMENT

If the M.U.T.-III cannot received signals from the A/C-ECU, CAN bus line connector(s) are broken or an open circuit has occurred.

COMMENTS ON TROUBLE SYMPTOM

The wiring harness wire or connectors may have loose, corroded, or damage terminals, or terminals pushed back in the connector, or the A/C-ECU may be defective.

TROUBLESHOOTING HINTS

- The wiring harness or connectors may have loose, corroded, or damage terminals, or terminals pushed back in the connector
- The A/C-ECU may be defective

DIAGNOSIS

Required Special Tool:

- MB991223: Harness Set

STEP 1. Check joint connector (3) C-02 and A/C-ECU connector C-15 for loose, corroded or damaged terminals, or terminals pushed back in the connector.









CAUTION:
The strand end of the twisted wire should be within 10 cm (4 inches) from the connector.
For details refer to Precautions When CAN Bus Line(s) Are Repaired.





Check the joint connector at the wiring harness side for loose, corroded or damaged terminals, or terminals pushed back in the connector, and also check the short pin behind the connector for corrosion, deformation and delamination.

Q. Are joint connector (3) C-02 and A/C-ECU connector C-15 in good condition?

YES Go to Step 2.

NO Repair the damaged parts. Replace the joint connector as necessary.

STEP 2. Check the CAN bus lines between joint connector (3) and the A/C-ECU. Measure the resistance between joint connector (3) C-02 and A/C-ECU connector C-15.

CAUTION:
A digital multimeter should be used. For details refer to Precautions When CAN Bus Line(s) Are Repaired.

CAUTION:
The test wiring harness should be used. For details refer to Precautions When CAN Bus Line(s) Are Repaired.









(1)Disconnect joint connector (3) C-02 and A/C-ECU connector C-15, and measure the resistances at the wiring harness sides of joint connector (3) C-02 and A/C-ECU connector C-15.
(2)Turn the ignition switch to the "LOCK" (OFF) position.
(3)
CAUTION:
Disconnect the negative battery terminal. For details refer to Precautions When CAN Bus Line(s) Are Repaired.

Disconnect the negative battery terminal.





(4)Measure the resistance between joint connector (3) terminal 17 and A/C-ECU connector terminal 14.
OK: 2 ohms or less






(5)Measure the resistance between joint connector (3) terminal 6 and A/C-ECU connector terminal 15.
OK: 2 ohms or less

CAUTION:
Strictly observe the specified wiring harness repair procedure.
For details refer to Precautions on How to Repair the CAN Bus Line(s).

Q. Do all the resistances measure 2 ohms or less?

YES If all the resistances measure 2 ohms or less, power supply to the A/C-ECU may be suspected. Diagnose the air conditioning system. Inspection Procedure 2.

NO If either of the resistances measures more than 2 ohms or all the resistances measure more than 2 ohms, repair the wiring harness between joint connector (3) and the A/C-ECU connector.