Curiosii for ever!: Car repair manuals for everyone.

Diagnostics Item 14




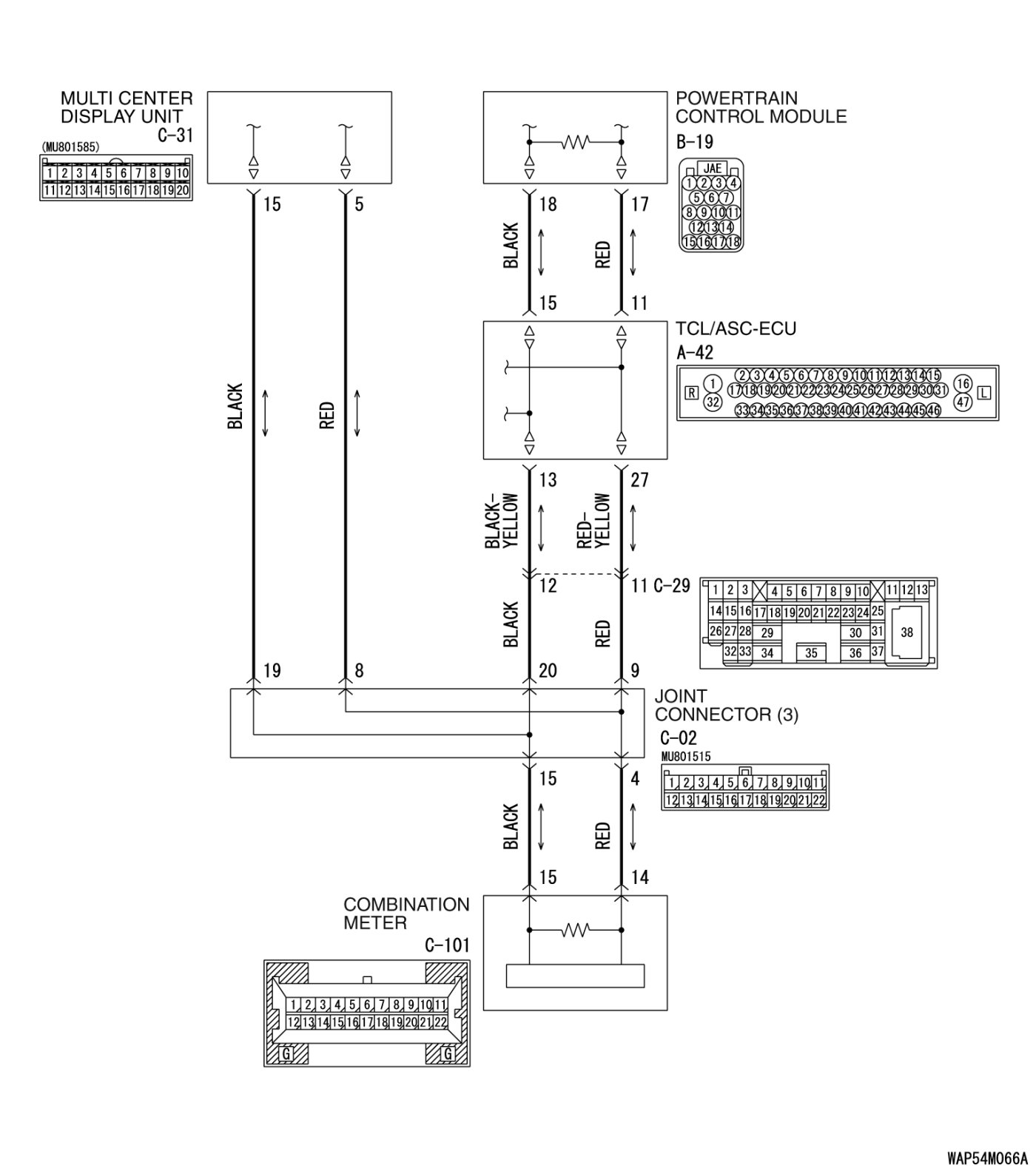
DIAGNOSTIC ITEM 14: Diagnose the lines between CAN main bus line and the multi-center display (Mitsubishi Multi Communication System)

CAUTION:
When servicing a CAN bus line, ground yourself by touching a metal object such as an unpainted water pipe. If you fail to do so, a component connected to the CAN bus line may be damaged.














TROUBLE JUDGMENT

If the M.U.T.-III cannot received signals from the multi-center display unit (Mitsubishi Multi Communication System), CAN bus line connector(s) are broken or an open circuit has occurred.

COMMENTS ON TROUBLE SYMPTOM

The wiring harness wire or connectors may have loose, corroded, or damage terminals, or terminals pushed back in the connector, or multi-center display unit (Mitsubishi Multi Communication System) may be defective.

TROUBLESHOOTING HINTS

- The wiring harness or connectors may have loose, corroded, or damage terminals, or terminals pushed back in the connector
- The multi-center display unit (Mitsubishi Multi Communication System) may be defective

DIAGNOSIS

Required Special Tool:

- MB991223: Harness Set

STEP 1. Check joint connector (3) C-02 and multi-center display unit connector C-31 [Mitsubishi Multi Communication System] for loose, corroded or damaged terminals, or terminals pushed back in the connector.









CAUTION:
The strand end of the twisted wire should be within 10 cm (4 inches) from the connector.
For details refer to Precautions When CAN Bus Line(s) Are Repaired.





Check the joint connector at the wiring harness side for loose, corroded or damaged terminals, or terminals pushed back in the connector, and also check the short pin behind the connector for corrosion, deformation and delamination.

Q. Are joint connector (3) C-02 and multi-center display unit connector C-31[ Mitsubishi Multi Communication System] in good condition?

YES Go to Step 2.

NO Repair the damaged parts. Replace the joint connector as necessary.

STEP 2. Check the CAN bus lines between joint connector (3) and the multi-center display unit (Mitsubishi multi communication system). Measure the resistance between joint connector (3) C-02 and multi-center display unit connector C-31 [Mitsubishi Multi Communication System].

CAUTION:
A digital multimeter should be used. For details refer to Precautions When CAN Bus Line(s) Are Repaired.

CAUTION:
The test wiring harness should be used. For details refer to Precautions When CAN Bus Line(s) Are Repaired.









(1)Disconnect joint connector (3) C-02 and multi-center display unit connector C-31 [Mitsubishi Multi Communication System], and measure the resistance at the wiring harness sides of joint connector (3) C-02 and multi-center display unit connector C-31 [Mitsubishi Multi Communication System].
(2)Turn the ignition switch to the "LOCK" (OFF) position.
(3)
CAUTION:
Disconnect the negative battery terminal. For details refer to Precautions When CAN Bus Line(s) Are Repaired.

Disconnect the negative battery terminal.





(4)Measure the resistance between joint connector (3) terminal 8 and multi-center display unit connector terminal 5 [Mitsubishi Multi Communication System].
OK: 2 ohms or less






(5)Measure the resistance between joint connector (3) terminal 19 and multi-center display unit connector terminal 15 [Mitsubishi Multi Communication System].
OK: 2 ohms or less

CAUTION:
Strictly observe the specified wiring harness repair procedure.
For details refer to Precautions on How to Repair the CAN Bus Line(s).

Q. Do all the resistances measure 2 ohms or less?

YES If all the resistances measure 2 ohms or less, power supply to the multi-center display unit (Mitsubishi Multi Communication System) may be suspected. Diagnose the multi-center display (Mitsubishi Multi Communication System). Inspection Procedure 1.

NO If either of the resistances measures more than 2 ohms or all the resistances measure more than 2 ohms, repair the wiring harness between joint connector (3) and the multi-center display unit connector (Mitsubishi Multi Communication System).