Curiosii for ever!: Car repair manuals for everyone.

Diagnostic Item 18

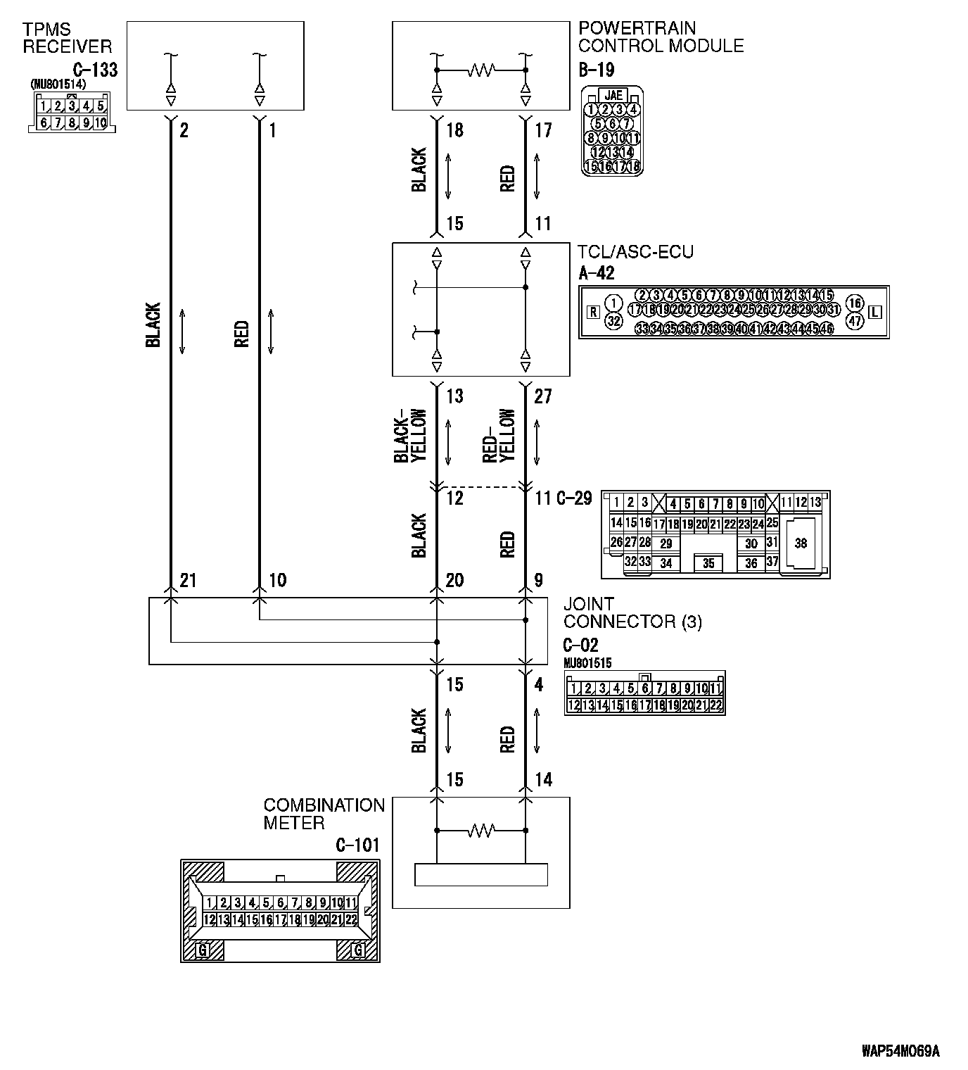
DIAGNOSTIC ITEM 18: Diagnose the lines between CAN main bus line and the TPMS reciver.

CAUTION: When servicing a CAN bus line, ground yourself by touching a metal object such as an unpainted water pipe. If you fail to do so, a component connected to the CAN bus line may be damaged.










TROUBLE JUDGMENT
If the M.U.T.-III cannot received signals from TPMS reciver, CAN bus line connector(s) are broken or an open circuit has occurred.

COMMENTS ON TROUBLE SYMPTOM
The wiring harness wire or connectors may have loose, corroded, or damage terminals, or terminals pushed back in the connector, or the TPMS reciver may be defective.

TROUBLESHOOTING HINTS
- The wiring harness or connectors may have loose, corroded, or damage terminals, or terminals pushed back in the connector
- The TPMS reciver may be defective

DIAGNOSIS

Required Special Tool:
- MB991223: Harness Set

STEP 1. Check joint connector (3) C-02 and TPMS reciver connector C-133 for loose, corroded or damaged terminals, or terminals pushed back in the connector.













CAUTION: The strand end of the twisted wire should be within 10 cm (4 inches) from the connector.

Check the joint connector at the wiring harness side for loose, corroded or damaged terminals, or terminals pushed back in the connector, and also check the short pin behind the connector for corrosion, deformation and delamination.

Q: Are joint connector (3) C-02 and TPMS reciver connector C-133 in good condition?

YES : Go to Step 2.

NO : Repair the damaged parts. Replace the joint connector as necessary.

STEP 2. Check the CAN bus lines between joint connector (3) and the TPMS reciver. Measure the resistance between joint connector (3) C-02 and TPMS reciver connector C-133.

CAUTION:
- A digital multimeter should be used.
- The test wiring harness should be used.











1. Disconnect joint connector (3) C-02 and TPMS reciver connector C-133, and measure the resistances at the wiring harness sides of joint connector (3) C-02 and TPMS reciver connector C-133.
2. Turn the ignition switch to the "LOCK" (OFF) position.

CAUTION: Disconnect the negative battery terminal.

3. Disconnect the negative battery terminal.







4. Measure the resistance between joint connector (3) terminal 10 and TPMS reciver connector terminal 1.

OK: 2 ohms or less







5. Measure the resistance between joint connector (3) terminal 21 and TPMS reciver connector terminal 2.

OK: 2 ohms or less

CAUTION: Strictly observe the specified wiring harness repair procedure.

Q: Do all the resistances measure 2 ohms or less?

YES : If all the resistances measure 2 ohms or less, power supply to the TPMS reciver may be suspected. Diagnose the Tire pressure monitoring system. Refer to Symptom procedures. Inspection Procedure 5: Communication Between the Scan Tool and the TPMS Is Not Possible.

NO : If either of the resistances measures more than 2 ohms or all the resistances measure more than 2 ohms, repair the wiring harness between joint connector (3) and the TPMS reciver connector.