Curiosii for ever!: Car repair manuals for everyone.

Diagnostic Item 14

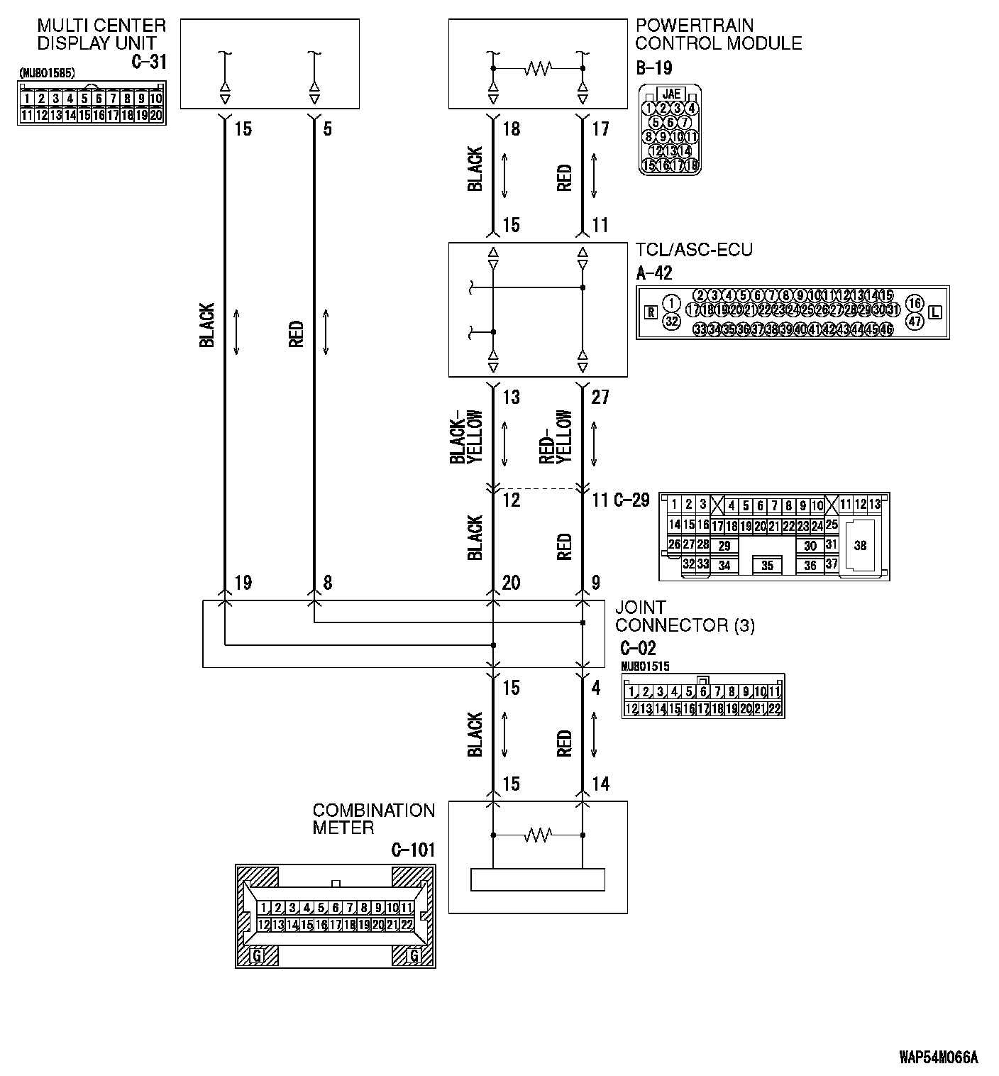
DIAGNOSTIC ITEM 14: Diagnose the lines between CAN main bus line and the multi-center display (Mitsubishi Multi Communication System)

CAUTION: When servicing a CAN bus line, ground yourself by touching a metal object such as an unpainted water pipe. If you fail to do so, a component connected to the CAN bus line may be damaged.










TROUBLE JUDGMENT
If the M.U.T.-III cannot received signals from the multi-center display unit (Mitsubishi Multi Communication System), CAN bus line connector(s) are broken or an open circuit has occurred.

COMMENTS ON TROUBLE SYMPTOM
The wiring harness wire or connectors may have loose, corroded, or damage terminals, or terminals pushed back in the connector, or multi-center display unit (Mitsubishi Multi Communication System) may be defective.

TROUBLESHOOTING HINTS
- The wiring harness or connectors may have loose, corroded, or damage terminals, or terminals pushed back in the connector
- The multi-center display unit (Mitsubishi Multi Communication System) may be defective

DIAGNOSIS

Required Special Tool:
- MB991223: Harness Set

STEP 1. Check joint connector (3) C-02 and multi-center display unit connector C-31 [Mitsubishi Multi Communication System] for loose, corroded or damaged terminals, or terminals pushed back in the connector.













CAUTION: The strand end of the twisted wire should be within 10 cm (4 inches) from the connector.

Check the joint connector at the wiring harness side for loose, corroded or damaged terminals, or terminals pushed back in the connector, and also check the short pin behind the connector for corrosion, deformation and delamination.

Q: Are joint connector (3) C-02 and multi-center display unit connector C-31 [Mitsubishi Multi Communication System] in good condition?

YES : Go to Step 2.

NO : Repair the damaged parts. Replace the joint connector as necessary.

STEP 2. Check the CAN bus lines between joint connector (3) and the multi-center display unit (Mitsubishi multi communication system). Measure the resistance between joint connector (3) C-02 and multi-center display unit connector C-31 [Mitsubishi Multi Communication System].

CAUTION:
- A digital multimeter should be used.
- The test wiring harness should be used.











1. Disconnect joint connector (3) C-02 and multi-center display unit connector C-31 [Mitsubishi Multi Communication System], and measure the resistance at the wiring harness sides of joint connector (3) C-02 and multi-center display unit connector C-31 [Mitsubishi Multi Communication System ].
2. Turn the ignition switch to the "LOCK" (OFF) position.

CAUTION: Disconnect the negative battery terminal.

3. Disconnect the negative battery terminal.







4. Measure the resistance between joint connector (3) terminal 8 and multi-center display unit connector terminal 5 [Mitsubishi Multi Communication System].

OK: 2 ohms or less







5. Measure the resistance between joint connector (3) terminal 19 and multi-center display unit connector terminal 15 [Mitsubishi Multi Communication System].

OK: 2 ohms or less

CAUTION: Strictly observe the specified wiring harness repair procedure.

Q: Do all the resistances measure 2 ohms or less?

YES : If all the resistances measure 2 ohms or less, power supply to the multi-center display unit (Mitsubishi Multi Communication System) may be suspected. Diagnose the multi-center display (Mitsubishi Multi Communication System). Inspection Procedure 1 [Mitsubishi Multi Communication System].

NO : If either of the resistances measures more than 2 ohms or all the resistances measure more than 2 ohms, repair the wiring harness between joint connector (3) and the multi-center display unit connector (Mitsubishi Multi Communication System).