Curiosii for ever!: Car repair manuals for everyone.

Inspection Procedure 8

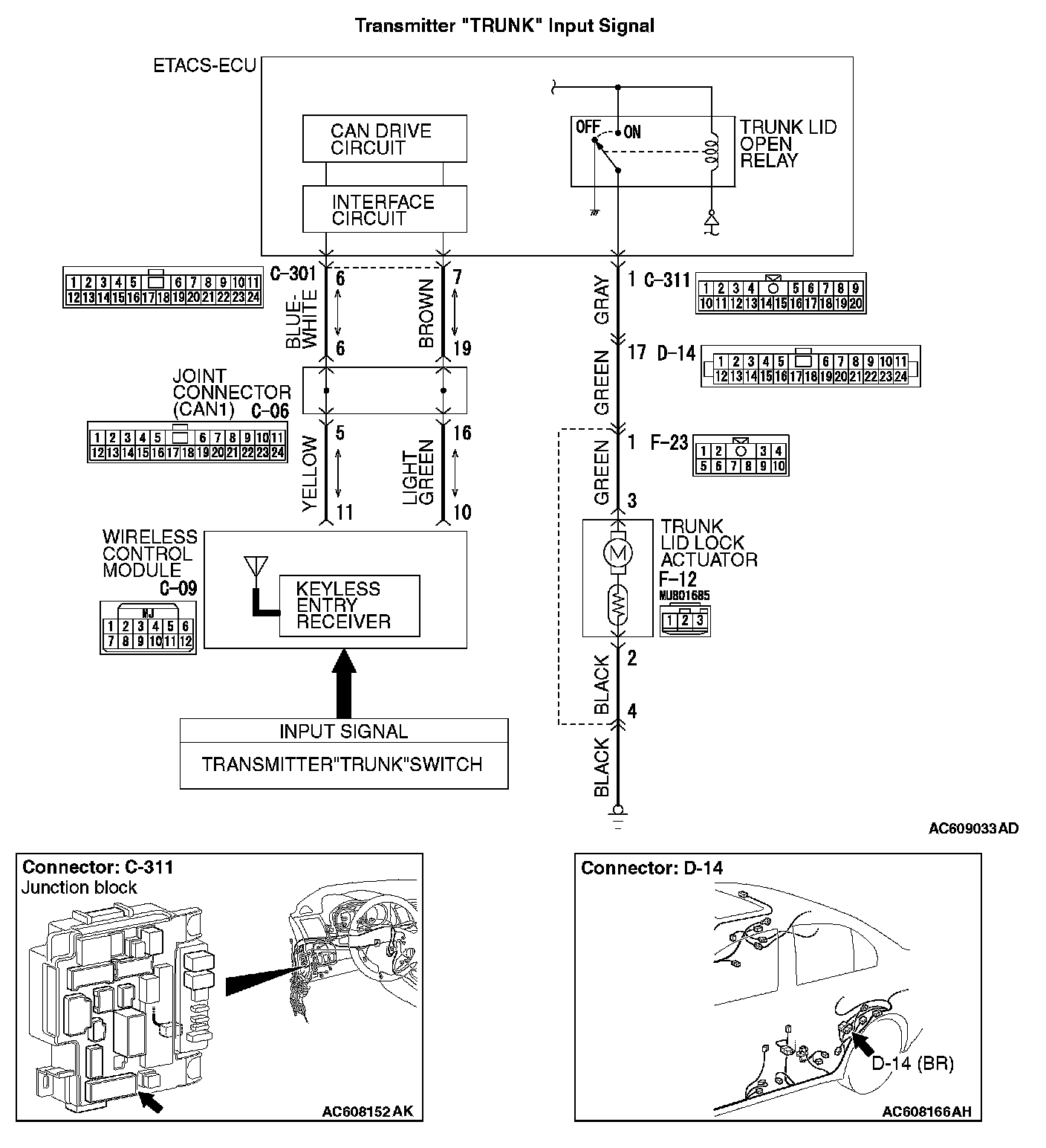
Inspection Procedure 8: The trunk is not opened when the keyless entry transmitter "TRUNK" button is operated.

CAUTION: Before replacing the ECU, ensure that the power supply circuit, the ground circuit and the communication circuit are normal.


Transmitter "TRUNK" Input Signal (Part 1):




Transmitter "TRUNK" Input Signal (Part 2):






TECHNICAL DESCRIPTION (COMMENT)

WCM receives the trunk signal from the transmitter, and sends the signal to ETACS-ECU.

TROUBLESHOOTING HINTS

- The keyless entry transmitter may be defective
- The WCM may be defective
- The ETACS-ECU may be defective
- The wiring harness or connectors may have loose, corroded, or damaged terminals, or terminals pushed back in the connector

DIAGNOSIS

Required Special Tools:
- MB992006: Extra fine probe
- MB991223: Harness set
- MB991958 Scan Tool (M.U.T.-III Sub Assembly)
- MB991824: Vehicles Communication Interface (V.C.I.)
- MB991827 M.U.T.-III USB Cable
- MB991910 M.U.T.-III Main Harness A

STEP 1. Check the operation of the keyless entry system.
Operate the transmitter and check that all doors lock and unlock.

Q: Is the check result normal?

YES: Go to Step 2.

NO: Refer to inspection procedure 5: "Keyless entry system does not work." Inspection Procedure 5

STEP 2. Using scan tool MB991958, check for diagnostic trouble code.

CAUTION: To prevent damage to scan tool MB991958, always turn the ignition switch to the "LOCK" (OFF) position before connecting or disconnecting scan tool MB991958.







1. Connect scan tool MB991958. Refer to "How to connect scan tool (M.U.T.-III)." How To Connect The Scan Tool (M.U.T.-III)
2. Turn the ignition switch to the "ON" position.
3. Check whether the ETACS-ECU related DTC is set.
4. Turn the ignition switch to the "LOCK" (OFF) position.

Q: Is the DTC set?

YES: Diagnose the ETACS-ECU. Diagnostic Trouble Code Descriptions

NO: Go to Step 3.

STEP 3. Check trunk lid lock actuator connector F-12 and ETACS-ECU connector C-311 for loose, corroded or damaged terminals, or terminals pushed back in the connector.

Q: Is trunk lid lock actuator connector F-12 and ETACS-ECU connector C-311 in good condition?

YES: Go to Step 4.

NO: Repair or replace the damaged component(s).

STEP 4. Check the trunk lid latch assembly.
Remove the trunk lid latch assembly.







Q: Is the trunk lid actuator normal?

YES: Go to Step 5.

NO: Replace the trunk lid latch assembly.

STEP 5. Check the ground circuit to the trunk lid lock actuator. Measure the resistance at trunk lid lock actuator connector F-12.

1. Disconnect trunk lid lock actuator connector F-12 and measure the resistance available at the wiring harness side of the connector.







2. Measure the resistance value between terminal 2 and ground.
- The resistance should be 2 ohms or less.

Q: Is the measured resistance 2 ohms or less?

YES: Go to Step 7.

NO: Go to Step 6.

STEP 6. Check the wiring harness between trunk lid lock actuator connector F-12 (terminal 2) and ground.
- Check the earth wires for open circuit.

NOTE: Also check intermediate connector F-23 for loose, corroded, or damaged terminals, or terminals pushed back in the connector. If intermediate connector F-23 is damaged, repair or replace the damaged component(s) as described in Harness Connector Inspection.

Q: Is the wiring harness between trunk lid lock actuator connector F-12 (terminal 2) and ground in good condition?

YES: No action is necessary and testing is complete.

NO: The wiring harness may be damaged or the connector(s) may have loose, corroded or damaged terminals, or terminals pushed back in the connector. Repair the wiring harness as necessary. Check that the trunk lid opener function works normally.

STEP 7. Check the wiring harness between trunk lid lock actuator connector F-12 (terminal 3) and ETACS-ECU connector C-311 (terminal 1).
- Check the input/output line for open or short circuit.

NOTE: Also check intermediate connectors D-14, F-23 for loose, corroded, or damaged terminals, or terminals pushed back in the connector. If intermediate connectors D-14, F-23 is damaged, repair or replace the damaged component(s) as described in Harness Connector Inspection.

Q: Is the wiring harness between trunk lid lock actuator connector F-12 (terminal 3) and ETACS-ECU connector C-311 (terminal 1) in good condition?

YES: Go to Step 8.

NO: The wiring harness may be damaged or the connector(s) may have loose, corroded or damaged terminals, or terminals pushed back in the connector. Repair the wiring harness as necessary. Check that the trunk lid opener function works normally.

STEP 8. Retest the system.
Check if the keyless entry system (trunk lid open) works normally.

Q: Is the check result normal?

YES: Intermittent malfunction.

NO: Replace the ETACS-ECU. When the ETACS-ECU is replaced, register the keyless ID.