Curiosii for ever!: Car repair manuals for everyone.

Inspection Procedure 4

Inspection Procedure 4: Check the WCM power supply and ground circuits.

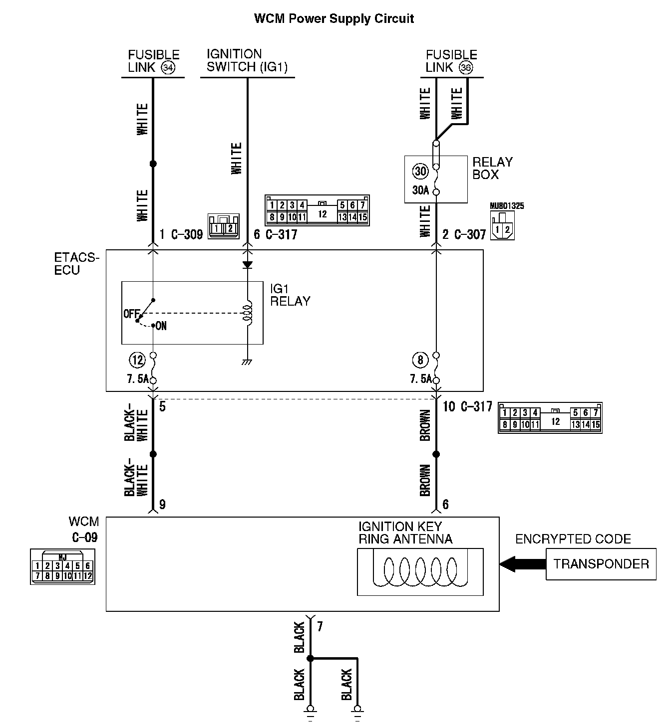
WCM Power Supply Circuit (Part 1):




WCM Power Supply Circuit (Part 2):






DIAGNOSIS

Required Special Tools:
- MB992006: Extra fine probe
- MB991223: Harness set

STEP 1. Check WCM connector C-09 for loose, corroded or damaged terminals, or terminals pushed back in the connector.

Q: Is the WCM connector C-09 in good condition?

YES : Go to Step 2.

NO : Repair the defective connector.

STEP 2. Check the battery power supply circuit to the WCM.

Measure the voltage at WCM connector C-09.

1. Disconnect WCM connector C-09 and measure the voltage available at the harness side of the connector.
2. Turn the ignition switch to the ON position.




3. Measure the voltage between terminal No. 6 or 9 and ground.
- The voltage should measure approximately 12 volts (battery positive voltage).

Q: Is the measured voltage approximately 12 volts (battery positive voltage)?

YES : Go to Step 4.

NO : Go to Step 3.

STEP 3. Check the wiring harness between WCM connector C-09 (terminal No. 9, 6) and fusible link (36, 34).

NOTE:
Before checking the wiring harnesses, check the ETACS-ECU connectors C-307, C-309, and C-317, and repair if necessary.

- Check the power supply line for open circuit.

Q: Is the wiring harness between WCM connector C-09 (terminal No. 9, 6) and fusible link (36, 34) in good condition?

YES : Go to Step 4.

NO : The wiring harness may be damaged or the connector(s) may have loose, corroded or damaged terminals, or terminals pushed back in the connector. Repair the wiring harness as necessary. Verify that the high-beam headlights illuminate normally.

STEP 4. Check the ground circuit to the WCM.

Measure the resistance at WCM connector C-09.

1. Disconnect the connector and measure the resistance at the wiring harness side.
2. Turn the ignition switch to the OFF position.




3. Measure the resistance between terminal No. 7 and ground.
- The resistance should be 2 ohms or less.

Q: Is the measured resistance 2 ohms or less?

YES : The procedure is complete.

NO : Go to Step 5.

STEP 5. Check the wiring harness between the WCM connector C-09 (terminal No. 7) and ground.

- Check the ground wires for open circuit.

Q: Is the wiring harness between WCM connector C-09 ( terminal No. 7) and ground in good condition?

YES : The procedure is complete.

NO : The wiring harness may be damaged or the connector(s) may have loose, corroded or damaged terminals, or terminals pushed back in the connector. Repair the wiring harness as necessary. Verify that the high-beam headlights illuminate normally.