Curiosii for ever!: Car repair manuals for everyone.

Inspection Procedure 1

INSPECTION PROCEDURE 1: Communication with Scan Tool Is Not Possible. (Communication with All Systems Is Not Possible.)

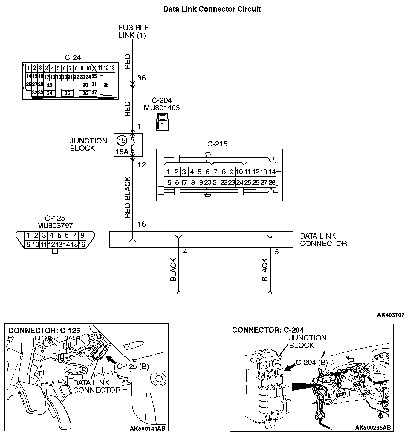
Data Link Connector Circuit (Part 1):




Data Link Connector Circuit (Part 2):






CIRCUIT OPERATION
- A battery positive voltage is applied on the data link connector power terminal (terminal No. 16). The ground terminals (terminal No. 4, No. 5) are grounded to the vehicle body.

COMMENT
- The cause is probably a defect in power supply system (including ground) for the on-board diagnostic test mode line.

TROUBLESHOOTING HINTS (The most likely causes for this case:)
- Malfunction of the data link connector.
- Damaged harness wire.

DIAGNOSIS

STEP 1. Measure the power supply voltage at data link connector C-125.







1. Measure voltage between terminal No. 16 and ground.
- Voltage should be battery positive voltage.

Q: Is battery positive voltage (approximately 12 volts) present?

YES : Go to step 2.

NO : Check harness connectors C-24, C-204 and C-215 at intermediate connector for damage, and repair or replace as required. Refer to general (electrical), Harness Connector Inspection. If intermediate connectors C-24, C-204 and C-215 are in good condition, repair an open circuit between fusible link (1) and data link connector C-125 (terminal No. 16). Then confirm that the malfunction symptom is eliminated.

STEP 2. Check the continuity at data link connector C-125.







1. Check for the continuity between terminal No. 4, No. 5 and ground.
- Continuity (2 ohms or less)

Q: Does continuity exist?

YES : Replace the scan tool. Then confirm that the malfunction symptom is eliminated.

NO : Repair an open circuit or harness damage between data link connector C-125 (terminal No. 4, No. 5) and ground. Then confirm that the malfunction symptom is eliminated.