Curiosii for ever!: Car repair manuals for everyone.

Inspection Procedure 31

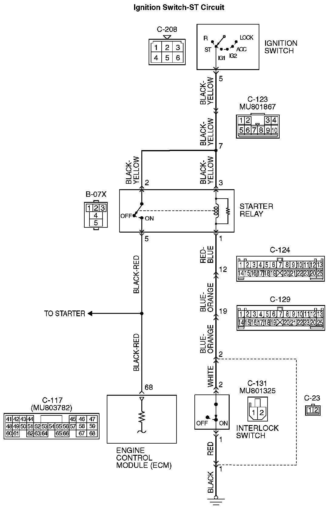
INSPECTION PROCEDURE 31: Ignition Switch-ST System

Ignition Switch-ST Circuit Part 1:




Ignition Switch-ST Circuit Part 2:






DIAGNOSIS




STEP 1. Check harness connector B-07X at starter relay for damage.

Q: Is the connector in good condition?

YES: Go to Step 2.

NO: Repair or replace it. Then confirm that the malfunction symptom is eliminated.

STEP 2. Check the starter relay.
Refer to Starting system " On-vehicle Service - Starter relay check in Starter Relay.
Q: Are there any abnormalities?

YES: Go to Step 3.

NO: Repair or replace it. Then confirm that the malfunction symptom is eliminated.

STEP 3. Measure the power supply voltage at starter relay connector B-07X.




1. Disconnect the connector B-07X and measure at the harness side.
2. Turn the ignition switch to the "START" position.




3. Measure the voltage between terminals No. 2, No. 3 and ground.
- Voltage should be battery positive voltage.
4. Turn the ignition switch to the "LOCK" (OFF) position.

Q: Is battery positive voltage (approximately 12 volts) present?

YES: Go to Step 4.

NO: Check connector C-123 at intermediate connector for damage, and repair or replace as required. If intermediate connector is in good condition, repair harness wire between ignition switch connector C-208(terminal No. 5) and starter relay connector B-07X (terminals No. 2, No. 3) because of open circuit. Then confirm that the malfunction symptom is eliminated.




STEP 4. Check harness connector C-117 at ECM for damage.

Q: Is the harness connector in good condition?

YES: Go to Step 5.

NO: Repair or replace it. Then confirm that the malfunction symptom is eliminated.

STEP 5. Measure the power supply voltage at ECM connector C-117.




1. Disconnect the connector C-117 and measure at the harness side.
2. Turn the ignition switch to the "START" position.




3. Measure the voltage between terminal No. 68 and ground.
- Voltage should be battery positive voltage.

4. Turn the ignition switch to the "LOCK" (OFF) position.

Q: Is battery positive voltage (approximately 12 volts) present?

YES: Go to Step 6.

NO: Repair harness wire between starter relay connector B-07X (terminal No. 5) and ECM connector C-117 (terminal No. 68) because of open circuit. Then confirm that the malfunction symptom is eliminated.




STEP 6. Check harness connector C-131 at interlock switch for damage.

Q: Is the harness connector in good condition?

YES: Go to Step 7.

NO: Repair or replace it. Then confirm that the malfunction symptom is eliminated.

STEP 7. Check the interlock switch.
Refer to, On-vehicle Service - Interlock switch check and adjustment in Clutch Switch.

Q: Are there any abnormalities?

YES: Go to Step 8.

NO: Repair or replace it. Then confirm that the malfunction symptom is eliminated.

STEP 8. Measure the power supply voltage at interlock switch connector C-131.




1. Disconnect the connector C-131 and measure at the harness side.
2. Turn the ignition switch to the "START" position.




3. Measure the voltage between terminal No. 2 and ground.
- Voltage should be battery positive voltage.

4. Turn the ignition switch to the "LOCK" (OFF) position.

Q: Is battery positive voltage (approximately 12 volts) present?

YES: Go to Step 9.

NO: Check connectors C-23, C-124 and C-129 at intermediate connector for damage, and repair or replace as required. If intermediate connectors are in good condition, repair harness wire between starter relay connector B-07X (terminal No. 1) and interlock switch connector C-131 (terminal No. 2) because of open circuit. Then confirm that the malfunction symptom is eliminated.

STEP 9. Check for continuity at interlock switch harness side connector C-131.




1. Disconnect the connector C-131 and measure at the harness side.




2. Check for the continuity between terminal No. 1 and ground.
- Should be less than 2 Ohms.

Q: Does continuity exist?

YES: Replace the ECM. Then confirm that the malfunction symptom is eliminated.

NO: Check connector C-23 at intermediate connector for damage, and repair or replace as required. If intermediate connector is in good condition, repair harness wire between interlock switch connector C-131 (terminal No. 1) and ground because of open circuit or harness damage. Then confirm that the malfunction symptom is eliminated.