Curiosii for ever!: Car repair manuals for everyone.

Inspection Procedure 2

INSPECTION PROCEDURE 2: Communication with Scan Tool Is Not Possible (Communication with ECM or PCM Only Is Not Possible)

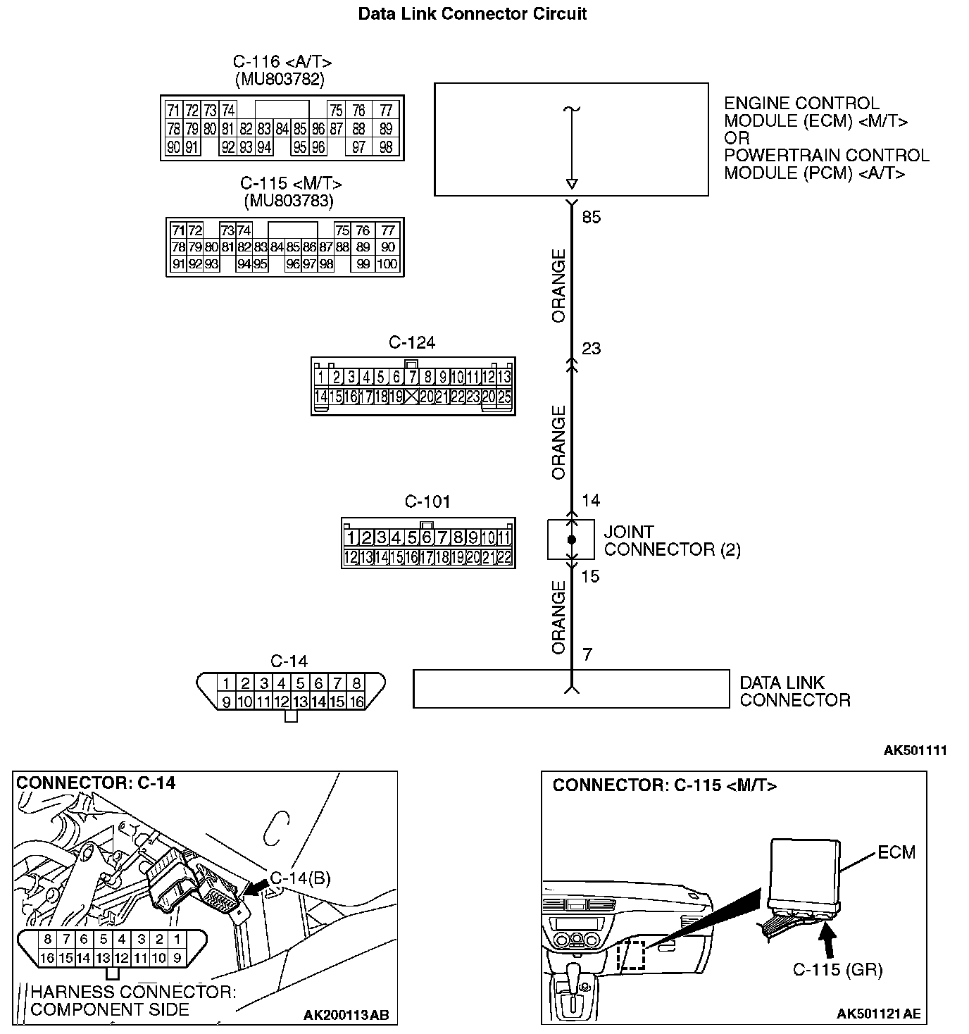
Data Link Connector Circuit Part 1:




Data Link Connector Circuit Part 2:






CIRCUIT OPERATION
- A diagnostic output is made from the ECM or the PCM (terminal No. 85) to the diagnostic output terminal (terminal No. 7) of the data link connector.

COMMENT
- No power supply to ECM or PCM
.
- Defective ground circuit of ECM or PCM
.
- Defective ECM or PCM
.
- Improper communication line between ECM or PCM
and scan tool.

TROUBLESHOOTING HINTS (The most likely causes for this case: )
- Malfunction of ECM or PCM
power supply circuit.
- Malfunction of the ECM or PCM
.
- Open circuit between ECM or PCM
and data link connector.

DIAGNOSIS







STEP 1. Check harness connector C-115 at ECM or harness connector C-116 at PCM
for damage.

Q: Is the harness connector in good condition?

YES: Go to Step 2.

NO: Repair or replace it. Then confirm that the malfunction symptom is eliminated.










STEP 2. Check for open circuit, short circuit to ground and harness damage between data link connector C-14 (terminal No. 7) and ECM connector C-115 or PCM connector C-116
(terminal No. 85).

NOTE: Check harness after checking intermediate connectors C-101 and C-124. If intermediate connectors are damaged, repair or replace them. Then check that the malfunction is eliminated.

Q: Is the harness wire in good condition?

YES: Refer to, INSPECTION PROCEDURE 29 - Power Supply System and
Ignition Switch - IG System.

NO: Repair it. Then confirm that the malfunction symptom is eliminated.