Curiosii for ever!: Car repair manuals for everyone.

ECLIPSE

INSPECTION PROCEDURE L-2: Interior Light: The front dome light or rear dome light does not illuminate or go out normally.

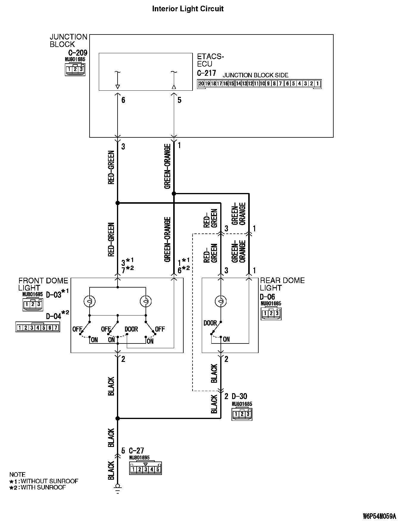
Interior Light Circuit Part 1:




Interior Light Circuit Part 2:






CIRCUIT OPERATION
The ETACS-ECU operates the dome light according to the following signals:
- Ignition switch (IG1): ON or OFF
- Key reminder switch: ON or OFF
- Door switches: ON or OFF
- Driver's door lock actuator switch: LOCK or UNLOCK

TECHNICAL DESCRIPTION (COMMENT)
Is the dome light does not flash normally, a burned-out dome light bulb, the input circuits from the switches described in "CIRCUIT OPERATION", the power supply line to the switches or the ETACS-ECU may be defective.

TROUBLESHOOTING HINTS
- The front dome light bulb may be defective
- The rear dome light bulb may be defective
- The wiring harness or connectors may have loose, corroded, or damaged terminals, or terminals pushed back in the connector
- The ETACS-ECU may be defective

DIAGNOSIS

Required Special Tools:
- MB991223: Harness Set
- MB992006: Extra Fine Probe
- MB991958: Scan Tool (M.U.T.-III Sub Assembly)
- MB991824: V.C.I.
- MB991827: M.U.T.-III USB Cable
- MB991910: M.U.T.-III Main Harness A

STEP 1. Check which of the front dome light or rear dome light does not illuminate normally.

Q: Which of the front dome light or rear dome light fail to illuminate normally?

Front dome light and rear dome light: Go to Step 2.
Front dome light: Go to Step 4.
Rear dome light: Go to Step 9.







STEP 2. Check front dome light connector D-03 , D-04 and ETACS-ECU connector C-217 for loose, corroded or damaged terminals, or terminals pushed back in the connector.

Q: Is front dome light connector D-03 , D-04 and ETACS-ECU connector C-217 in good condition?

YES: Go to Step 3.

NO: Repair or replace the damaged component(s). Refer to Harness Connector Inspection. Check that the front dome light and rear dome light illuminates normally.







STEP 3. Check the wiring harness between front dome light connector D-03 (terminals 1 and 3) or D-04 (terminals 6 and 7) and ETACS-ECU connector C-217 (terminals 5 and 6).

Q: Is the wiring harness between front dome light connector D-03 (terminals 1 and 3) or D-04 (terminals 6 and 7) and ETACS-ECU connector C-217 (terminals 5 and 6) in good condition?

YES: No action is necessary and testing is complete.

NO: The wiring harness may be damaged or the connector(s) may have loose, corroded or damaged terminals, or terminals pushed back in the connector. Repair the wiring harness as necessary. Check that the front dome light and rear dome light illuminates normally.




STEP 4. Check front dome light connector D-03 or D-04 for loose, corroded or damaged terminals, or terminals pushed back in the connector.

Q: Is front dome light connector D-03 or D-04 in good condition?

YES: Go to Step 5.

NO: Repair or replace the damaged component(s). Refer to Harness Connector Inspection. Check that the front dome light illuminates normally.

STEP 5. Check the front dome light bulb.

Q: Is the front dome light bulb in good condition?

YES: Go to Step 6.

NO: Replace the front dome light bulb. Check that the front dome light illuminates normally.

STEP 6. Check the ground circuit to the front dome light. Measure the resistance at front dome light connector D-03 or D-04 .




1. Disconnect front dome light connector D-03 or D-04 and measure the resistance available at the wiring harness side of the connector.







2. Measure the resistance value between terminal 2 and ground.
- The resistance should be 2 ohms or less.

Q: Is the measured resistance 2 ohms or less?

YES: Go to Step 8.

NO: Go to Step 7.




STEP 7. Check the wiring harness between front dome light connector D-03 (terminal2) or D-04 (terminal 2) and ground.






NOTE: Also check intermediate connector C-27 for loose, corroded, or damaged terminals, or terminals pushed back in the connector. If intermediate connector C-27 is damaged, repair or replace the damaged component(s) as described in Harness Connector Inspection.

Q: Is the wiring harness between front dome light connector D-03 (terminal 2) D-04 (terminal 2) and ground in good condition?

YES: Replace the front dome light. Check that the front dome light illuminates normally.

NO: The wiring harness may be damaged or the connector(s) may have loose, corroded or damaged terminals, or terminals pushed back in the connector. Repair the wiring harness as necessary. Check that the front dome light illuminates normally.







STEP 8. Check the wiring harness between front dome light connector D-03 (terminals 1 and 3) or D-04 (terminals 6 and 7) and ETACS-ECU connector C-217 (terminals 5 and 6).

Q: Is the wiring harness between front dome light connector D-03 (terminals 1 and 3) or D-04 (terminals 6 and 7) and ETACS-ECU connector C-217 (terminals 5 and 6) in good condition?

YES: Replace the front dome light. Check that the front dome light illuminates normally.

NO: The wiring harness may be damaged or the connector(s) may have loose, corroded or damaged terminals, or terminals pushed back in the connector. Repair the wiring harness as necessary. Check that the front dome light illuminates normally.




STEP 9. Check rear dome light connector D-06 for loose, corroded or damaged terminals, or terminals pushed back in the connector.

Q: Is rear dome light connector D-06 in good condition?

YES: Go to Step 10.

NO: Repair or replace the damaged component(s). Refer to Harness Connector Inspection. Check that the rear dome light illuminates normally.

STEP 10. Check the rear dome light bulb.

Q:
Is the rear dome light bulb in good condition?

YES: Go to Step 11.

NO: Replace the rear dome light bulb. Check that the rear dome light illuminates normally.

STEP 11. Check the ground circuit to the rear dome light. Measure the resistance at rear dome light connector D-06.




1. Disconnect rear dome light connector D-06 and measure the resistance available at the wiring harness side of the connector.




2. Measure the resistance value between terminal 2 and ground.
- The resistance should be 2 ohms or less.

Q: Is the measured resistance 2 ohms or less?

YES: Go to Step 13.

NO: Go to Step 12.




STEP 12. Check the wiring harness between rear dome light connector D-06 and ground.

NOTE: Also check intermediate connector D-30 for loose, corroded, or damaged terminals, or terminals pushed back in the connector. If intermediate connector D-30 is damaged, repair or replace the damaged component(s) as described in Harness Connector Inspection.

Q: Is the wiring harness between rear dome light connector D-06 and ground in good condition?

YES: Replace the rear dome light. Check that the rear dome light illuminates normally.

NO: The wiring harness may be damaged or the connector(s) may have loose, corroded or damaged terminals, or terminals pushed back in the connector. Repair the wiring harness as necessary. Check that the rear dome light illuminates normally.







STEP 13. Check the wiring harness between rear dome light connector D-06 (terminals 1 and 3) and ETACS-ECU connector C-217 (terminals 5 and 6).

NOTE: Also check intermediate connector D-30 for loose, corroded, or damaged terminals, or terminals pushed back in the connector. If intermediate connector D-30 is damaged, repair or replace the damaged component(s) as described in Harness Connector Inspection.

Q: Is the wiring harness between rear dome light connector D-06 (terminals 1 and 3) and ETACS-ECU connector C-217 (terminals 5 and 6) in good condition?

YES: Replace the rear dome light. Check that the rear dome light illuminates normally.

NO: The wiring harness may be damaged or the connector(s) may have loose, corroded or damaged terminals, or terminals pushed back in the connector. Repair the wiring harness as necessary. Check that the rear dome light illuminates normally.