Curiosii for ever!: Car repair manuals for everyone.

Inspection Procedure 28

Fans (radiator fan) is inoperative

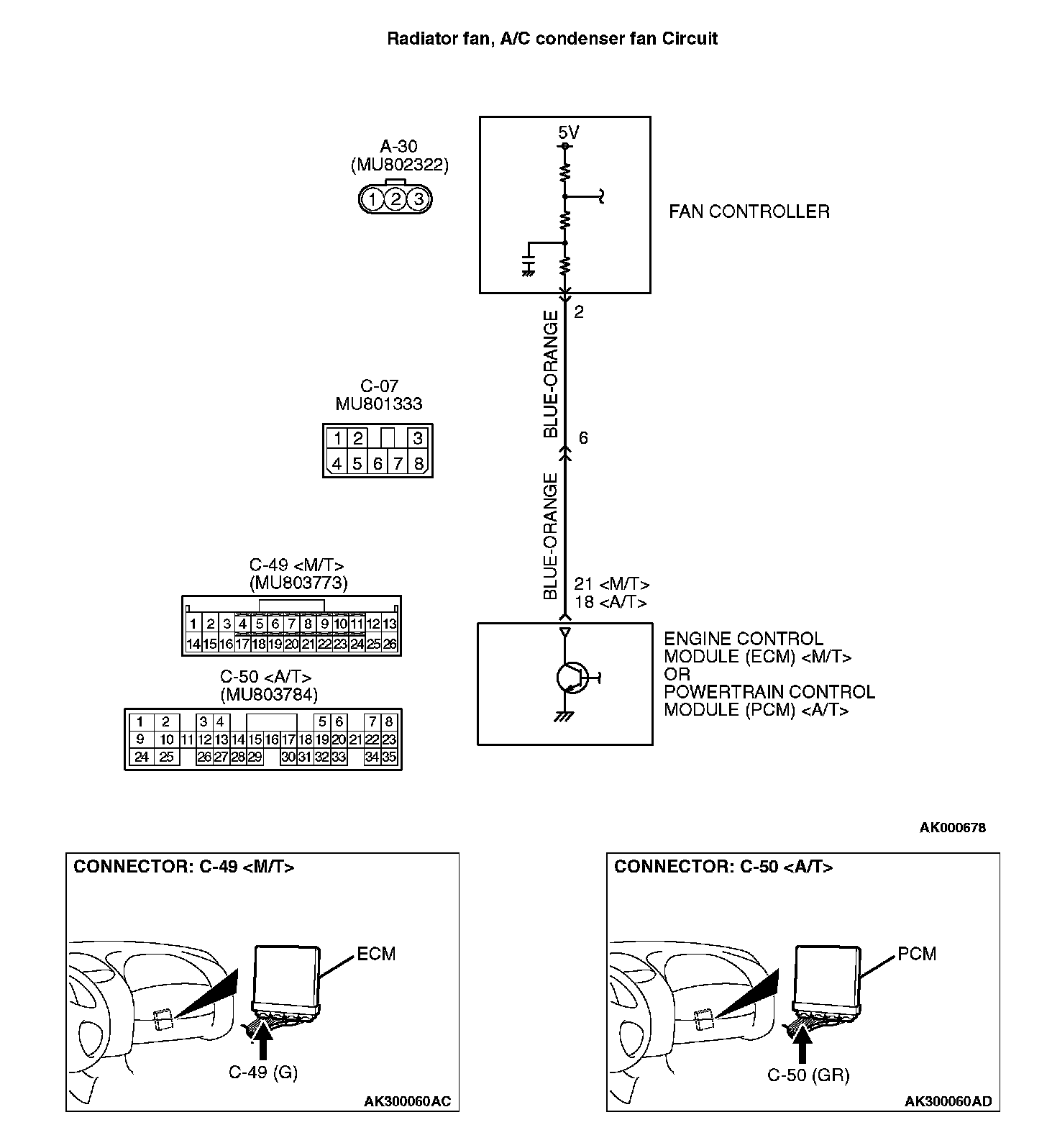
Radiator Fan, A/C Condenser Fan Circuit Part 1:




Radiator Fan, A/C Condenser Fan Circuit Part 2:






CIRCUIT OPERATION
- The ECM or PCM sends a duty signal to the fan controller according to engine coolant temperature, vehicle speed and the condition of the A/C switch. (The closer the average voltage at the terminal comes to five volts, the higher the fan speed becomes.)

TROUBLESHOOTING HINTS (The most likely causes for this code to be set are:)
- Malfunction of the fan motor relay.
- Malfunction of the fan motor.
- Malfunction of the fan controller.
- Improper connector contact, open or short-circuited harness wire.
- ECM or PCM
failed.

DIAGNOSIS







STEP 1. Check connector C-49 at ECM or connector C-50 at PCM
for damage.

Q: Is the connector in good condition?

YES: Go to Step 2.

NO: Repair or replace it. Refer to Harness Connector Inspection. Then confirm that the malfunction symptom is eliminated.

STEP 2. Measure the output voltage at ECM harness side connector C-49 or PCM harness side connector C-50
.







1. Disconnect the connector C-49 or C-50
and measure at the harness side.
2. Turn the
ignition switch to the "ON" position.







3. Measure the voltage between terminal No. 21 or No. 18 and ground.
- Voltage should be between 4.8 and 5.2 volts. (Fan rotates at high speed.)

4. Connect a jumper cable between terminal No. 21 or No. 18
and ground.
- The fan should stop.

5. Turn the
ignition switch to the "LOCK" (OFF) position.

Q: Is the voltage and fan condition normal?

YES: Replace the ECM or PCM. Then confirm that the malfunction symptom is eliminated.

NO: Go to Step 3.










STEP 3. Check for open circuit and short circuit to ground and harness damage between fan controller A-30 (terminal No. 2) and ECM connector C-49 (terminal No. 21) or PCM connector C-50 (terminal No. 18) .

NOTE: Check harness after checking intermediate connector C-07. If intermediate connector is damaged, repair or replace them. Refer to Harness Connector Inspection. Then confirm that the malfunction symptom is eliminated.

Q: Is the harness wire in good condition?

YES: Refer to Engine Cooling Diagnosis - Symptom Chart.

NO: Repair it. Then confirm that the malfunction symptom is eliminated.