Curiosii for ever!: Car repair manuals for everyone.

Schematics

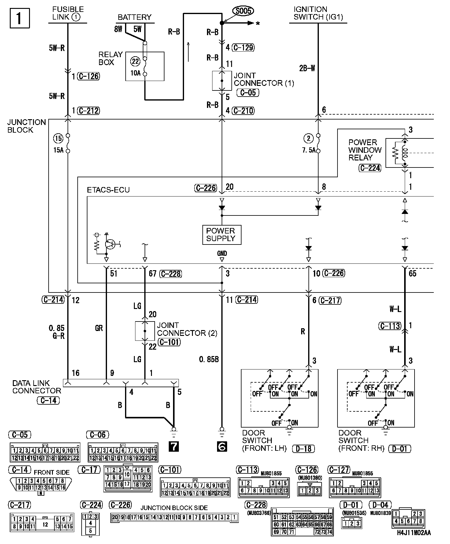
Power Windows Part 1:




Power Windows Part 2:




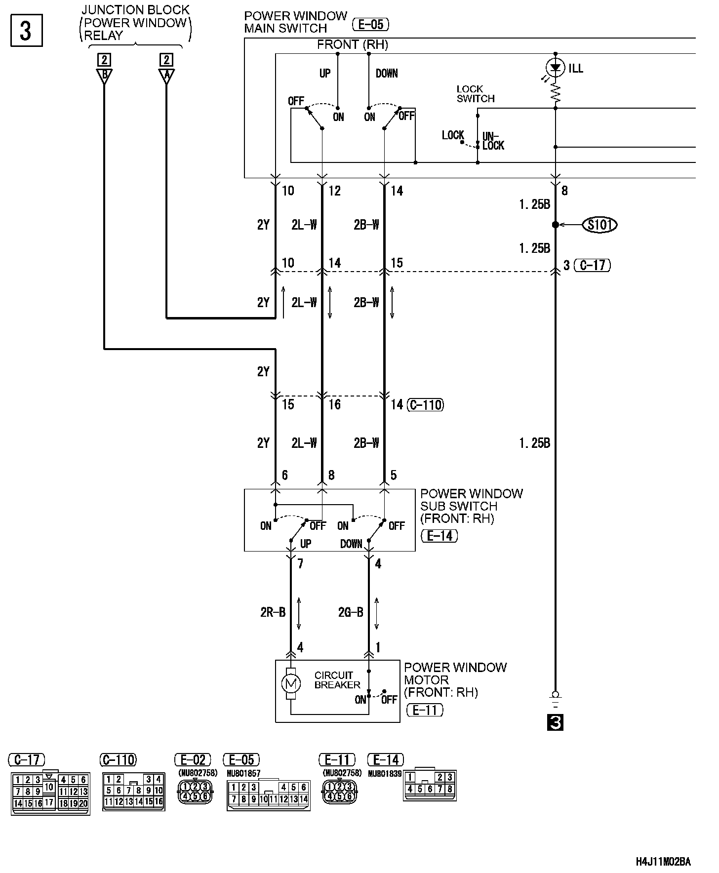
Power Windows Part 3:




Power Windows Part 4:






Connector/Component Locations: The locations of connectors and components referred to within these diagrams can be found via the connector number at Vehicle Connector Locations. Connector Locations

Ground Locations: The locations of grounds referred to within these diagrams can be found via the ground number at Vehicle Ground Locations. Ground Locations