Curiosii for ever!: Car repair manuals for everyone.

Inspection Procedure 7

When "CRUISE" (MAIN) Switch is Turned "ON", "CRUISE" Indicator Light Inside Combination Meter does not Illuminate. (However, Auto-cruise Control is Normal).

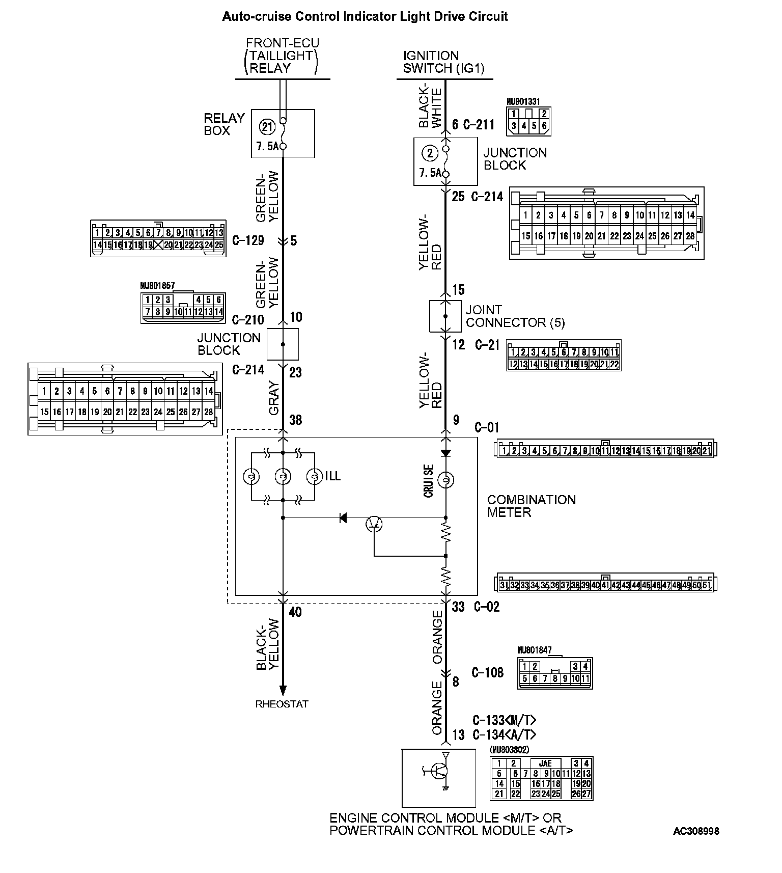
Auto-Cruise Control Indicator Light Drive Circuit Part 1:




Auto-Cruise Control Indicator Light Drive Circuit Part 2:






CIRCUIT OPERATION
The ECM or PCM detects "CRUISE" (MAIN) switch "ON" signal to illuminate the "CRUISE" indicator light on the combination meter.

COMMENT
Connector(s), wiring harness between the ECM or PCM
and the combination meter, the indicator light bulb and the ECM or PCM may be defective.

TROUBLESHOOTING HINTS
- Malfunction of the indicator light bulb.
- Damaged harness or connector.
- Malfunction of the ECM .
- Malfunction of the PCM
.

DIAGNOSIS

Required Special Tool:
- MB991958: Scan tool (MUT-III sub assembly)
- MB991824: V.C.I.
- MB991827: MUT-III USB cable
- MB991911: MUT-III main harness B

STEP 1. Check that the indicator light inside the combination meter illuminates.

1. Turn the ignition switch to the "ON" position.
2. Check the indicator lights other than "CRUISE" indicator light illuminate.
3. Turn the ignition switch to the "LOCK" (OFF) position.

Q: Do the indicator lights other than the "CRUISE" indicator light illuminate normally?

YES: Go to Step 6.

NO: Go to Step 2.







STEP 2. Check combination meter connector C-01, joint connector (5) C-21 and junction block connector C-214 for loose, corroded or damaged terminals, or terminals pushed back in the connector.

Q: Are there connectors and terminals in good condition?

YES: Go to Step 3.

NO: Repair or replace the damaged components. (Refer to Harness Connector Inspection). Then go to Step 11.







STEP 3. Check the harness wire between combination meter connector C-01 terminal 9 and junction block connector C-214 terminal 25 for damage.

Q: Are there harness wires in good condition?

YES: Go to Step 4.

NO: Repair the damaged harness wire. Then go to Step 11.




STEP 4. Check fuse number 2 at the junction block.

Q: Is the fuse in good condition?

YES: Go to Step 5.

NO: Replace the fuse. Then go to Step 11.

STEP 5. Check that the indicator light inside the combination meter illuminates.

1. Turn the ignition switch to the "ON" position.
2. Check that the indicator light inside the combination meter illuminates.
3. Turn the ignition switch to the "LOCK" (OFF) position.

Q: Does the indicator light illuminate normally.

YES: It can be assumed that this malfunction is intermittent. (Refer to How to Use Troubleshooting/Inspection Service Points - How to Cope with Intermittent Malfunction).

NO: Replace the combination meter. (Refer to Combination meter assembly). Then go to Step 11.










STEP 6. Check combination meter connector C-02, intermediate connector C-108 and ECM connector C-133 or PCM connector C-134
for loose, corroded or damaged terminals, or terminals pushed back in the connector.

Q: Are the connectors and terminals in good condition?

YES: Go to Step 7.

NO: Repair or replace the damaged components (Refer to Harness Connector Inspection). Then go to Step 11.







STEP 7. Check the harness wire between combination meter connector C-02 terminal 33 and ECM connector C-133 terminal 13 or PCM connector C-134
terminal 13 for damage.

Q: Are the harness wires in good condition?

YES: Go to Step 8.

NO: Repair the damaged harness wire. Then go to Step 11.

STEP 8. Check the auto-cruise control indicator light bulb.

1. Remove the combination meter. (Refer to Combination meter assembly).
2. Check the auto-cruise control indicator light bulb.

Q: Is the bulb in good condition?

YES: Install the combination meter. (Refer to Combination meter assembly). Then go to Step 9.

NO: Replace the bulb and install the combination meter. (Refer to Combination meter assembly). Then go to Step 11.

STEP 9. Measure the terminal voltage at ECM connector C-133 or PCM connector C-134
.




1. Disconnect ECM connector C-133 or PCM connector C-134
measure the harness connector.
2. Turn the ignition switch to the "ON" position.




3. Measure the terminal voltage between ECM connector C-133 terminal 13 or PCM connector C-134
terminal 13 and ground.
- When the ignition switch to the "ON" position, the voltage should measure battery positive voltage (approximately 12 volts).
- When the ignition switch to the "LOCK" (OFF) position, the voltage should measure 0.5 volt or less.

4. Turn the ignition switch to the "LOCK" (OFF) position.
5. Connect ECM connector C-133 or PCM connector C-134
.

Q: Is the measured voltage battery positive voltage (approximately 12 volts) when ignition switch to the "ON" position, and 0.5 volt or less when ignition switch to the "OFF" (LOCK) position?

YES: Go to Step 10.

NO: Replace the combination meter (Refer to Combination meter assembly). Then go to Step 11.

STEP 10. Check the symptoms.

Q: Does the auto-cruise control indicator light illuminate when "CRUISE" (MAIN) switch is turned "ON"?

YES: It can be assumed that this malfunction is intermittent. (Refer to How to Use Troubleshooting/Inspection Service Points - How to Cope with Intermittent Malfunction).

NO: Replace the ECM or PCM
[Refer to Engine Control Module (ECM) and Powertrain Control Module (PCM)]. Then go to Step 11.

STEP 11. Check the symptoms.

Q: Does the auto-cruise control indicator light illuminate when "CRUISE" (MAIN) switch is turned "ON"?

YES: Return to Step 1.

NO: The procedure is complete.