Curiosii for ever!: Car repair manuals for everyone.

Inspection Procedure 2

Communication with Scan Tool Is Not Possible (Communication with ECM or PCM Only Is Not Possible)

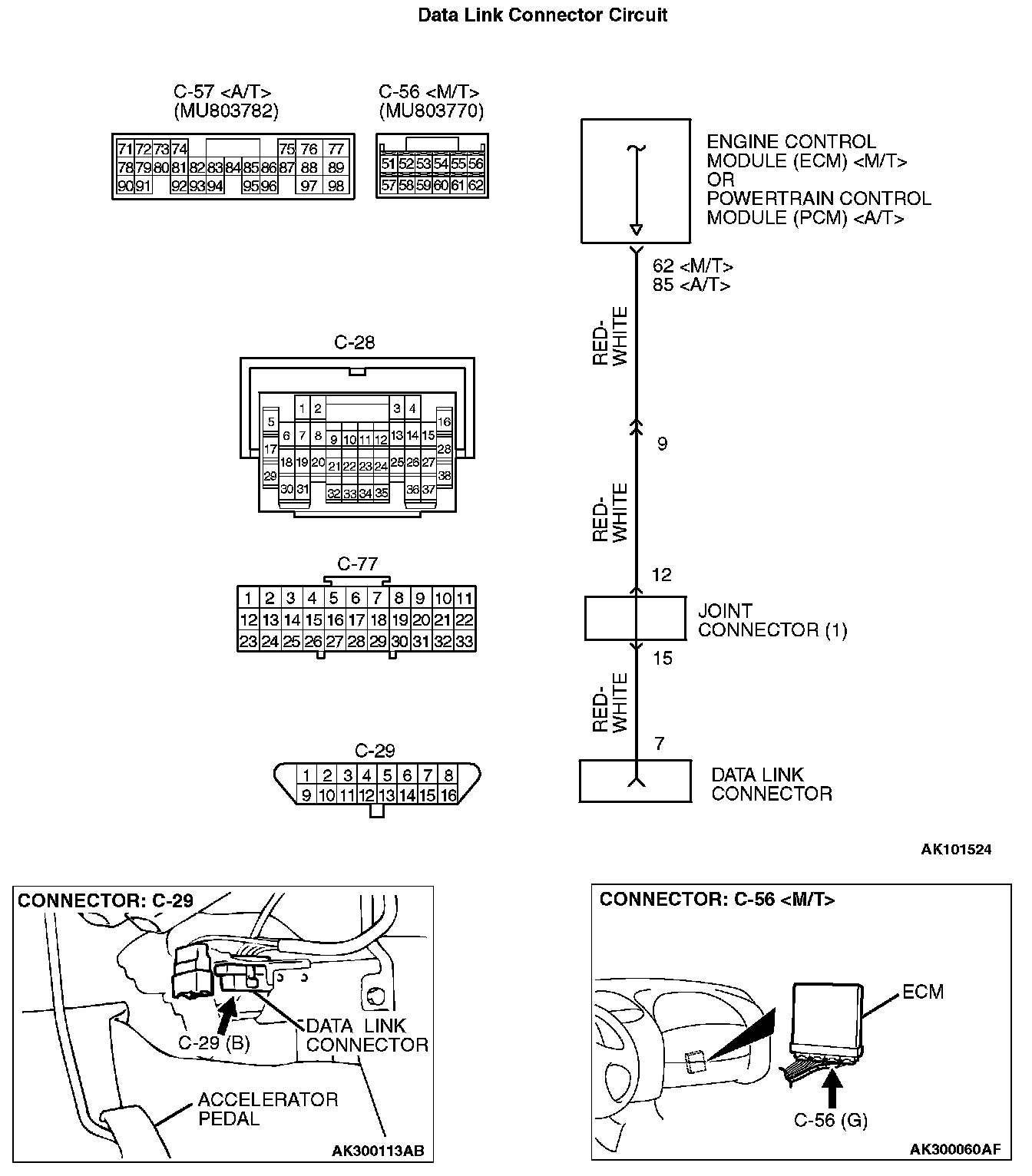
Data Link Connector Circuit Part 1:




Data Link Connector Circuit Part 2:






CIRCUIT OPERATION
- A diagnostic output is made from the ECM (terminal No. 62) or PCM (terminal No. 85) to the diagnostic output terminal (terminal No. 7) of the data link connector.

COMMENT
- No power supply to ECM or PCM
.
- Defective ground circuit of ECM or PCM
.
- Defective ECM or PCM
.
- Improper communication line between ECM or PCM
and scan tool.

TROUBLESHOOTING HINTS (The most likely causes for this case: )
- Malfunction of ECM or PCM
power supply circuit.
- Malfunction of the ECM or PCM
.
- Open circuit between ECM or PCM
and data link connector.

DIAGNOSIS







STEP 1. Check connector C-56 at ECM or connector C-57 at PCM
for damage.

Q: Is the connector in good condition?

YES: Go to Step 2.

NO: Repair or replace it. Refer to Harness Connector Inspection. Then confirm that the malfunction symptom is eliminated.










STEP 2. Check for open circuit, short circuit to ground and harness damage between data link connector C-29 (terminal No. 7) and ECM connector C-56 (terminal No. 62) or PCM connector C-57 (terminal No. 85)
.

NOTE: Check harness after checking intermediate connectors C-28 and C-77. If intermediate connectors are damaged, repair or replace them. Refer to Harness Connector Inspection. Then check that the malfunction is eliminated.

Q: Is the harness wire in good condition?

YES: Refer to INSPECTION PROCEDURE 29 - Power Supply System and
Ignition Switch - IG System.

NO: Repair it. Then confirm that the malfunction symptom is eliminated.