Curiosii for ever!: Car repair manuals for everyone.

Inspection Procedure 26

Generator output voltage is low (approximately 12.3 volts)

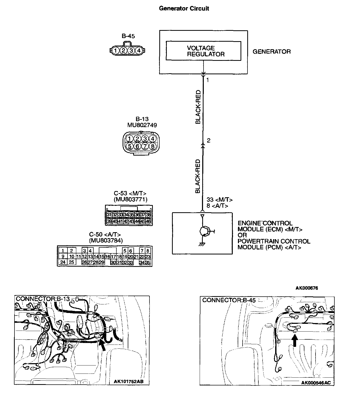
Generator Circuit Part 1:




Generator Circuit Part 2:






CIRCUIT OPERATION
- The ECM or PCM controls generator out put current by duty-controlling continuity between the generator G terminal (terminal 1) and ground.

TROUBLESHOOTING HINTS (The most likely causes for this charging system:)
- Malfunction of the charging system.
- Short circuit in the harness between generator G terminal and ECM or PCM
.
- ECM or PCM
failed.

DIAGNOSIS

STEP 1. Check the voltage at generator intermediate connector B-13 by backprobing.

1. Do not disconnect the connector B-13.
2. Start the engine and run at idle.




3. Measure the voltage between terminal 2 and ground by backprobing.
a. Engine: warming up
b. Radiator fan: stopped
c. Headlight switch: OFF to ON
d. Rear defogger switch: OFF to ON
e. Stoplight switch: OFF to ON
- Voltage rises by 0.2 - 3.5 volts.

4. Turn the
ignition switch to the "LOCK" (OFF) position.

Q: Is the voltage normal?

YES: Replace the generator. Then confirm that the malfunction symptom is eliminated.

NO: Go to Step 2.




STEP 2. Check connector B-13 at generator intermediate connector for damage.

Q: Is the connector in good condition?

YES: Go to Step 3.

NO: Repair or replace it. Refer to Harness Connector Inspection. Then confirm that the malfunction symptom is eliminated.




STEP 3. Check connector B-45 at generator connector for damage.

Q: Is the connector in good condition?

YES: Go to Step 4.

NO: Repair or replace it. Refer to Harness Connector Inspection. Then confirm that the malfunction symptom is eliminated.




STEP 4. Check connector C-53 at ECM or connector C-50 at PCM for damage.

Q: Is the connector in good condition?

YES: Go to Step 5.

NO: Repair or replace it. Refer to Harness Connector Inspection. Then confirm that the malfunction symptom is eliminated.







STEP 5. Check for open circuit and short circuit to ground and harness damage between generator connector B-45 (terminal 1) and ECM connector C-53 (terminal 33) or PCM connector C-50 (terminal 8)
.

Q: Is the harness wire in good condition?

YES: Replace the ECM or PCM. Then confirm that the malfunction symptom is eliminated.

NO: Repair it. Then confirm that the malfunction symptom is eliminated.