Curiosii for ever!: Car repair manuals for everyone.

Inspection Procedure 3

Part 1 Of 2:




Part 2 Of 2:






INSPECTION PROCEDURE 3: When the Ignition Key is Turned to the "ON" Position (Engine Stopped), the TCL Warning Light does not Illuminate.

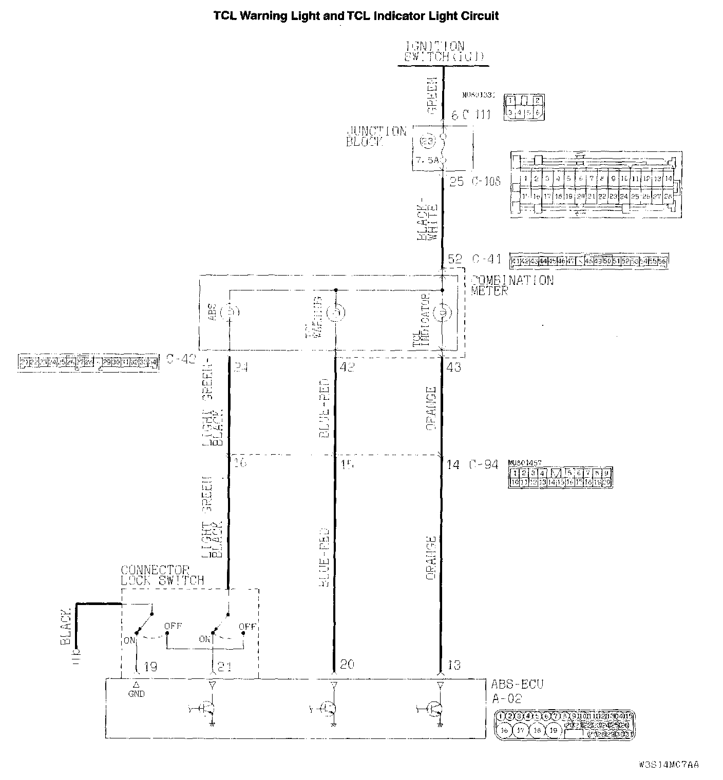
NOTE: CONNECTOR LOCK SWITCH ON: The ABS-ECU connector A-02 is connected. OFF: The ABS-ECU connector A-02 is disconnected.

CIRCUIT OPERATION
^ Power to the TCL warning light is supplied from the ignition switch. The ABS-ECU grounds the circuit to illuminate the light.
^ The ABS-ECU illuminates the TCL warning light for three seconds on start-up ignition key: "ON" (with engine stopped)>. When the ABS-ECU completes the self-check, it turns off the light.

TECHNICAL DESCRIPTION (COMMENT)
The cause may be: an open circuit in the TCL warning light power supply circuit, a blown TCL warning light bulb or ABS-ECU malfunction.

TROUBLESHOOTING HINTS (The most likely causes for this case:)
^ Blown fuse
^ Damaged wiring harness or connector
^ Burnt out TCL warning light bulb
^ Malfunction of the ABS-ECU

DIAGNOSIS

Required Special Tool:
^ MB991223: Harness Set

STEP 1. Check the TCL warning light circuit at the ABS ECU connector A-02.
1) Disconnect the ABS-ECU connector A-02 and measure at the harness side.





2) Ground the terminal 20.
3) Turn the ignition switch to the "ON" position.
Q: Does the TCL warning light illuminate?
YES: Replace the hydraulic unit (integrated with ABS-ECU) and then go to Step 9.
NO: Go to Step 2.

STEP 2. Check the TCL warning light bulb.
1) Remove the combination meter.
2) Check the TCL warning light bulb.
Q: Is the TCL warning light bulb burned out?
YES: Replace the bulb and then go to Step 9.
NO: Go to Step 3.

STEP 3. Check the combination meter for the continuity.
1) Remove the combination meter.
2) Remove the TCL warning light bulb. Then measure the resistance between the bulb terminals.





3) Install the TCL warning light bulb to the combination meter, and then measure the resistance between the connector C-41 terminals 52 and 42. The resistance reading at this time should be much the same as the resistance measured at step (2).
Q: Are the two resistance values extremely different each other?
YES: Replace the combination meter (printed circuit board) and then go to Step 9.
NO: (much the same): Go to Step 4.

STEP 4. Check the combination meter power supply circuit.
1) Disconnect the combination meter connector C-41, and check at the harness side.
2) Turn the ignition switch to the "ON" position.





3) Measure the voltage between the terminal 52 and ground. It should be approximately 12 volts (battery positive voltage).
Q: Is the voltage approximately 12 volts (battery positive voltage)?
YES: Go to Step 5.
NO: Go to Step 7.

STEP 5. Check the connectors A-02, C-41, and C-94.











Q: Is any of the connectors damaged?
YES: Repair it and then go to Step 9.
NO: Go to Step 6.

STEP 6. Check the continuity between the combination meter and the ABS-ECU. Check the continuity between the combination meter connector C-41 (terminal 42) and ABS-ECU connector A-02 (terminal 20).








Q: Is there the continuity between the combination meter connector C-41 (terminal 42) and the ABS-ECU connector A-02 (terminal 20)?
YES: Replace the hydraulic unit (integrated with ABS-ECU) and then go to Step 9.
NO: Repair the harness wire and then go to Step 9.

STEP 7. Check connectors C-41, C-108, and C-111.








Q: Is any of the connectors damaged?
YES: Repair it and then go to Step 9.
NO: Go to Step 8.

STEP 8. Check the continuity between the ignition switch (IG1) and the combination meter.





Check the continuity between the ignition switch (IG1) and the combination meter connector C-41 (terminal 52).
Q: Is there any continuity (less than 2 ohm) between the ignition switch (IG1) and the combination meter connector C-41 (terminal 52)?
YES: Replace the hydraulic unit (integrated with ABS-ECU) and then go to Step 9.
NO: Repair the harness wire and then go to Step 9.

STEP 9. Check symptom.
Q: Does the TCL warning light illuminate for 3 seconds when the ignition switch is turned to the "ON" position with engine stopped or upon start-up?
YES: This diagnosis is complete.
NO: Return to Step 1.