Curiosii for ever!: Car repair manuals for everyone.

California Emissions


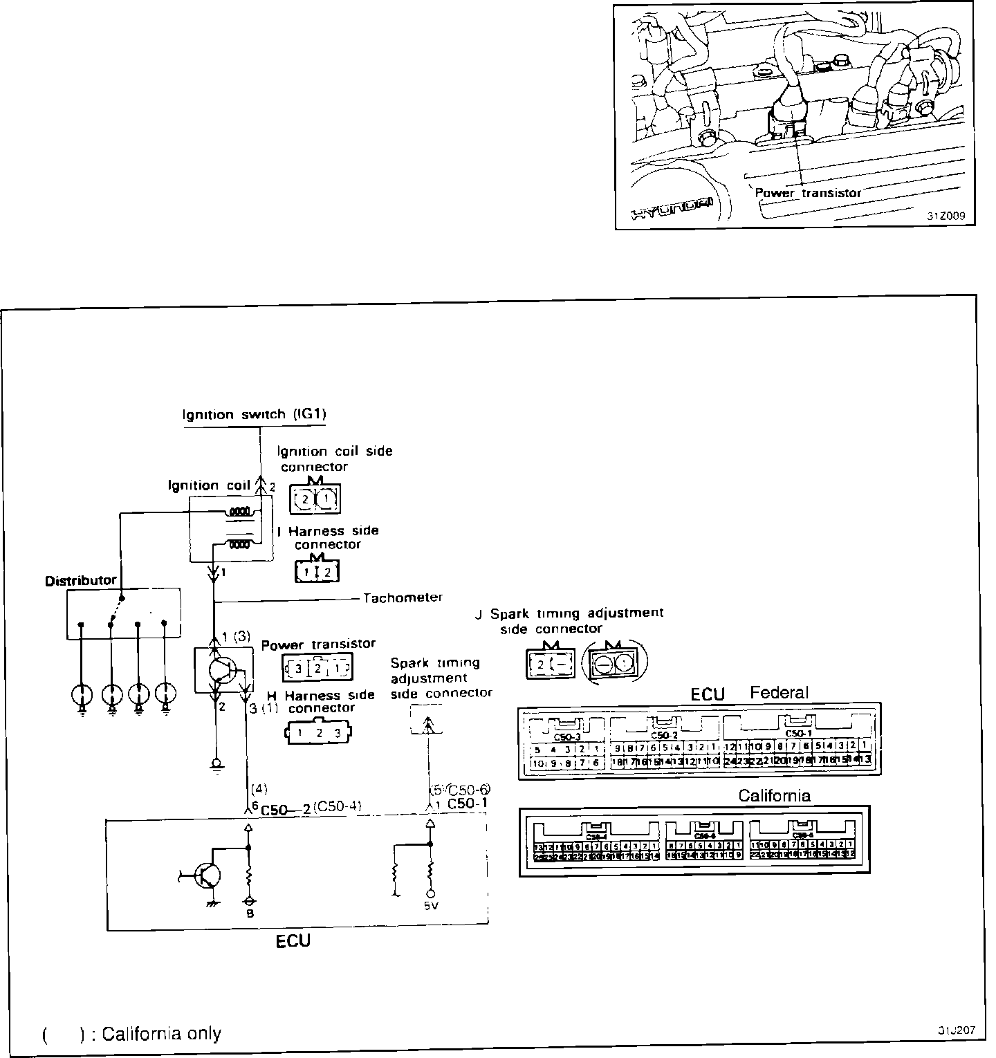
Power Transistor:





PURPOSE
The power transistor controls ignition current by interrupting the ignition coil primary ground causing secondary circuit discharge.

Power Transistor Location:





LOCATION
The power transistor is located on the intake manifold.

Ignition Coil And Power Transistor Circuit:





OPERATION
The ECU controls ignition timing through the power transistor. The power transistor is a type of switch that allows a very low voltage (from the ECU) to control a larger amount of voltage (negative side of coil).