Curiosii for ever!
: Car repair manuals for everyone.
Home
>>
Mini
>>
2009
>>
Cooper S Convertible (R57) L4-1.6L Turbo (N14)
>>
Repair and Diagnosis
>>
Relays and Modules
>>
Relays and Modules - HVAC
>>
Control Module HVAC
>>
Diagrams
>>
Electrical Diagrams
>>
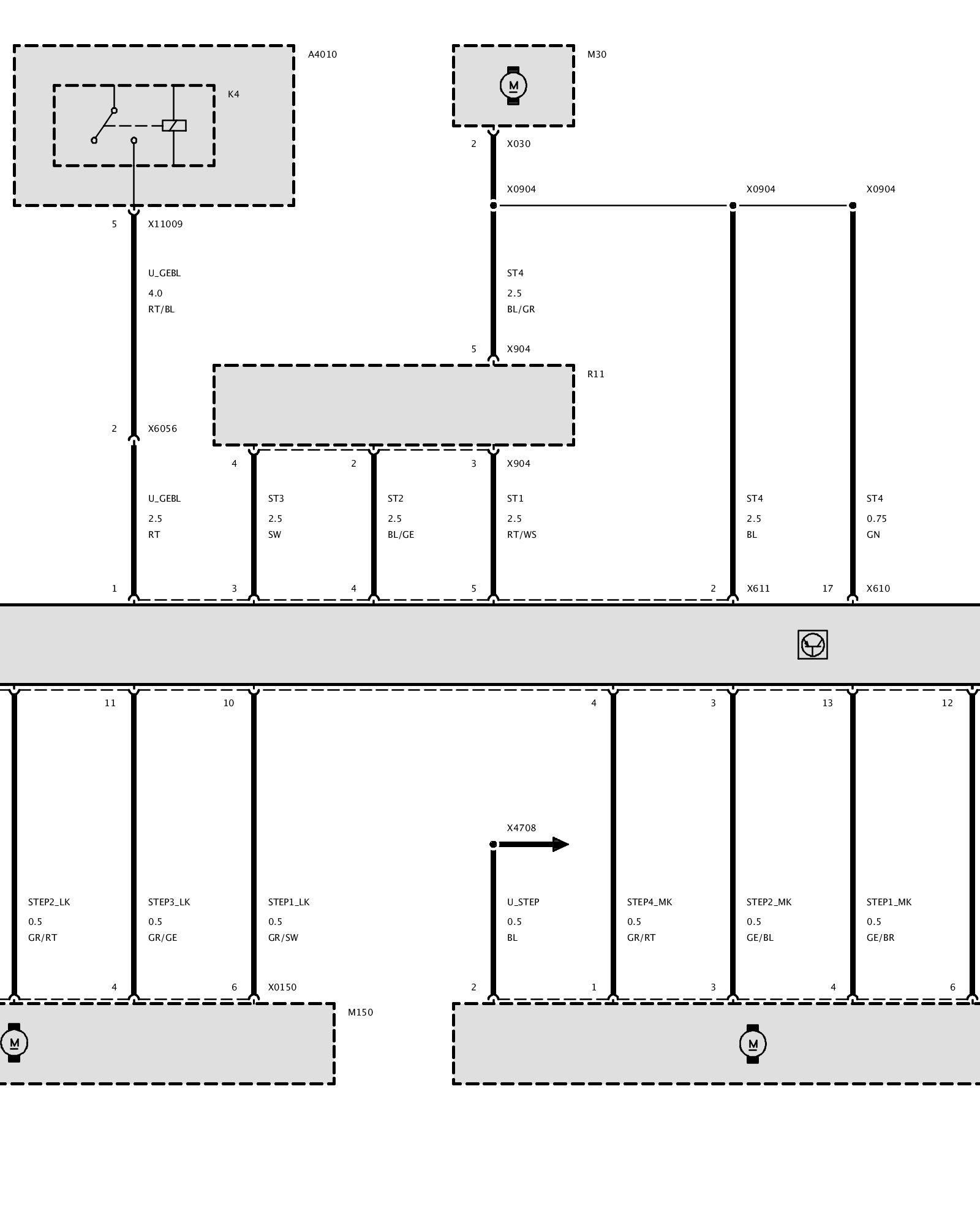
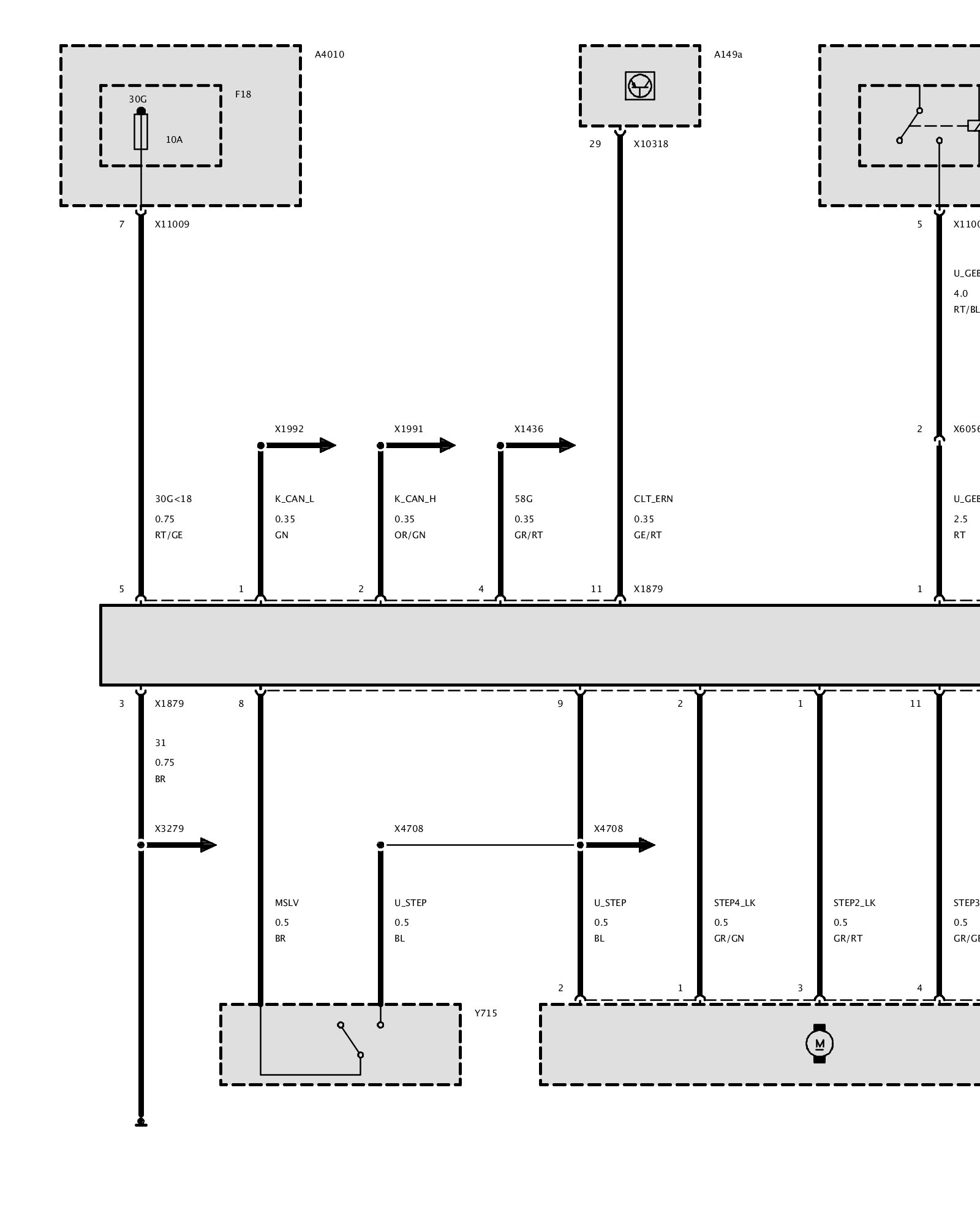
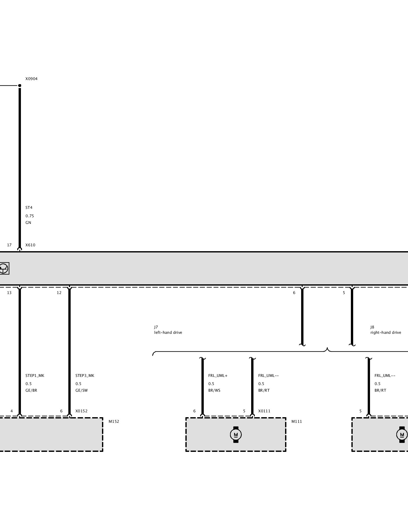
A11a Heating/Air Conditioning System (Without IHKA Integrated Automatic Heating/Air Conditioning)
A11a Heating/Air Conditioning System (Without IHKA Integrated Automatic Heating/Air Conditioning)
A11a Heating/Air Conditioning System (Without IHKA Integrated Automatic Heating/Air Conditioning)
Part 1:
Part 2:
Part 3:
Part 4: