Curiosii for ever!
: Car repair manuals for everyone.
Home
>>
Mercury
>>
2011
>>
Grand Marquis V8-4.6L
>>
Repair and Diagnosis
>>
Starting and Charging
>>
Starting System
>>
Ignition Switch
>>
Testing and Inspection
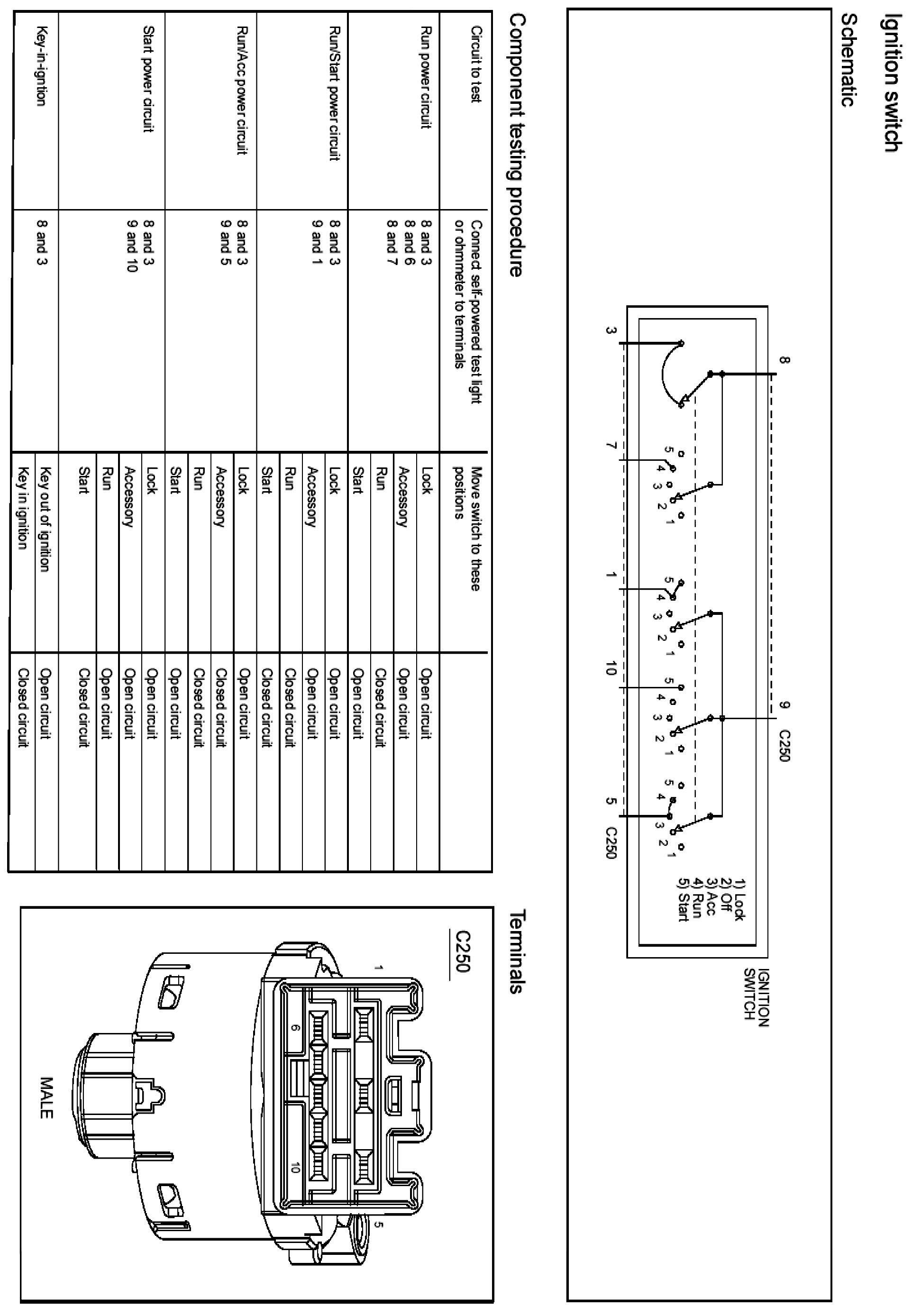
Ignition Switch: Testing and Inspection