Curiosii for ever!
: Car repair manuals for everyone.
Home
>>
Mercury
>>
2002
>>
Sable V6-3.0L VIN 2 Flex Fuel
>>
Repair and Diagnosis
>>
Diagrams
>>
Electrical Diagrams
>>
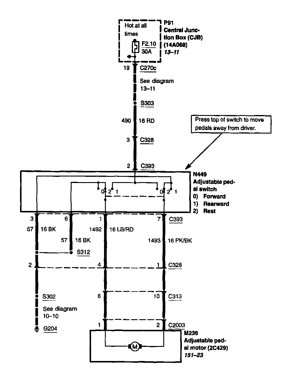
Memory Positioning Systems
Memory Positioning Systems
Diagram 127-1: