Curiosii for ever!
: Car repair manuals for everyone.
Home
>>
Mercury
>>
1991
>>
Sable V6-232 3.8L
>>
Repair and Diagnosis
>>
Diagrams
>>
Electrical Diagrams
>>
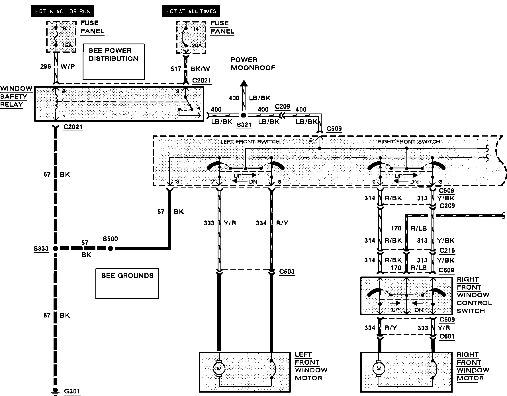
Power Window Switch
Power Window Switch
Power Windows:
Power Windows: