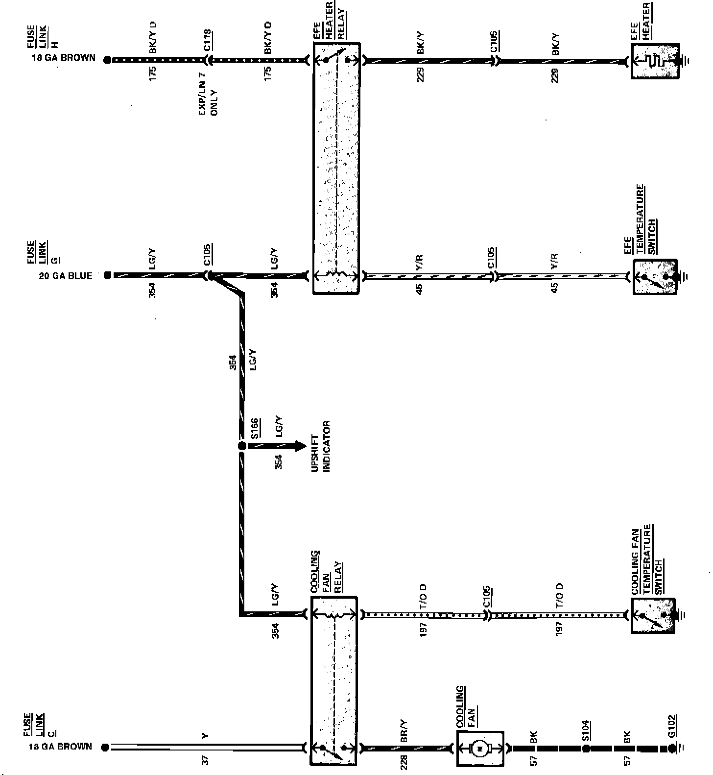
With Manual Transmission/Transaxle
Fig. 25 Cooling fan, early fuel evaporation & fuel shut-off wiring circuit. 1983 Escort, EXP, Lynx & LN7 with manual transaxle less air cond or fuel economy package:
Fig. 26 Cooling fan & early fuel evaporation wiring circuit. 1983 Escort, EXP, Lynx & LN7 with manual transaxle less air cond with fuel economy package: