Curiosii for ever!: Car repair manuals for everyone.

Disassembly and Assembly

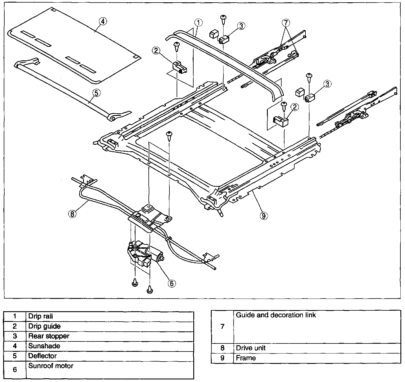
SUNROOF UNIT DISASSEMBLY/ASSEMBLY




1. Disassemble in the order indicated in the table.
2. Assemble in the reverse order of disassembly.

Sunroof Motor Assembly Note

NOTE: If the guide is removed, the sunroof motor initial position setting has to be performed. After installing the sunroof unit, perform the initial position setting using the following procedure.

1. Press the close switch to fully close the glass panel.
2. Release the close switch with the glass panel in the fully closed position, and press the close switch again until the motor performs the position learning operation. The position learning operation can be confirmed by visual check of the glass panel or motor operation sound (clickety-clack).

NOTE:
- The position learning operation is regarded as the operation the motor operates to move the glass panel forward and backward several millimeters then stops.
- The motor may operate after approx. 13 s from where the switch has been pressed and held.
- If the switch is released during the position learning operation, resume from the beginning of Step 2.

3. Press and hold the close switch again within 5 s after the position learning operation was performed.

NOTE: If the switch is not pressed within 5 s after the position learning operation, resume from the beginning of Step 2.

4. The glass panel fully opens and returns; to the fully closed position and stops, then release the close switch.

NOTE: If the switch is released while the glass panel is operating, resume from the beginning of Step 1.

Guide Disassembly Note



1. Insert a hand to the back side of the sunroof frame, raise the decoration link lock and remove it.
2. Slide the guide to the rear of the sunroof frame, and remove the guide and decoration link as a single unit.

Decoration Link Assembly Note







1. Move the pin to the position shown in the figure.
2. Set the guide pin to the decoration link.