Curiosii for ever!: Car repair manuals for everyone.

Tests DM: Manifold Absolute Pressure (MAP) Sensor



PINPOINT TEST DM: MANIFOLD ABSOLUTE PRESSURE (MAP) SENSOR

This pinpoint test is intended to diagnose the following:

^ manifold absolute pressure (MAP) sensor (9F479)
^ harness circuits: MAP SIGRTN VREF
^ powertrain control module ( PCM) (12A650)

Reference:






PCM Connector

Reference:






DM1 - DM3:





DM4 - DM6:





DM7 - DM8:





DM9 - DM10:





DM11 - DM12:





DM13 - DM14:





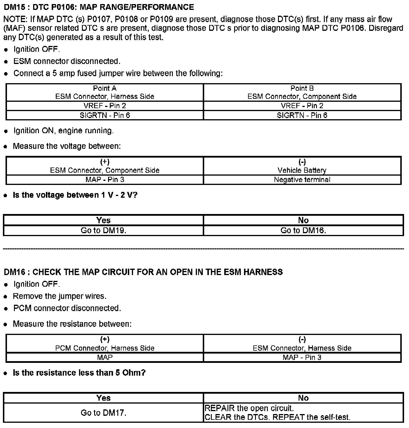
DM15 - DM16:





DM17 - DM18:





DM19 - DM20:





DM21 - DM23:





DM24 - DM25:





DM26 - DM27: