Curiosii for ever!: Car repair manuals for everyone.

Introduction

Note
All wiring connections between components are shown exactly as they exist in the vehicles. It is important to realize, however, that no attempt has been made on the diagrams to represent components and wiring as they physically appear on the vehicle. For example, a 4-foot length of wire is treated no differently in a diagram from one that is only a few inches long. Furthermore, to aid in understanding electrical (electronic) operation, wiring inside complicated components has been simplified.

Complete Circuit Operation
Each circuit is shown completely and independently in one set. Other components that are connected to the circuits may not be shown unless they influence the circuit operation.







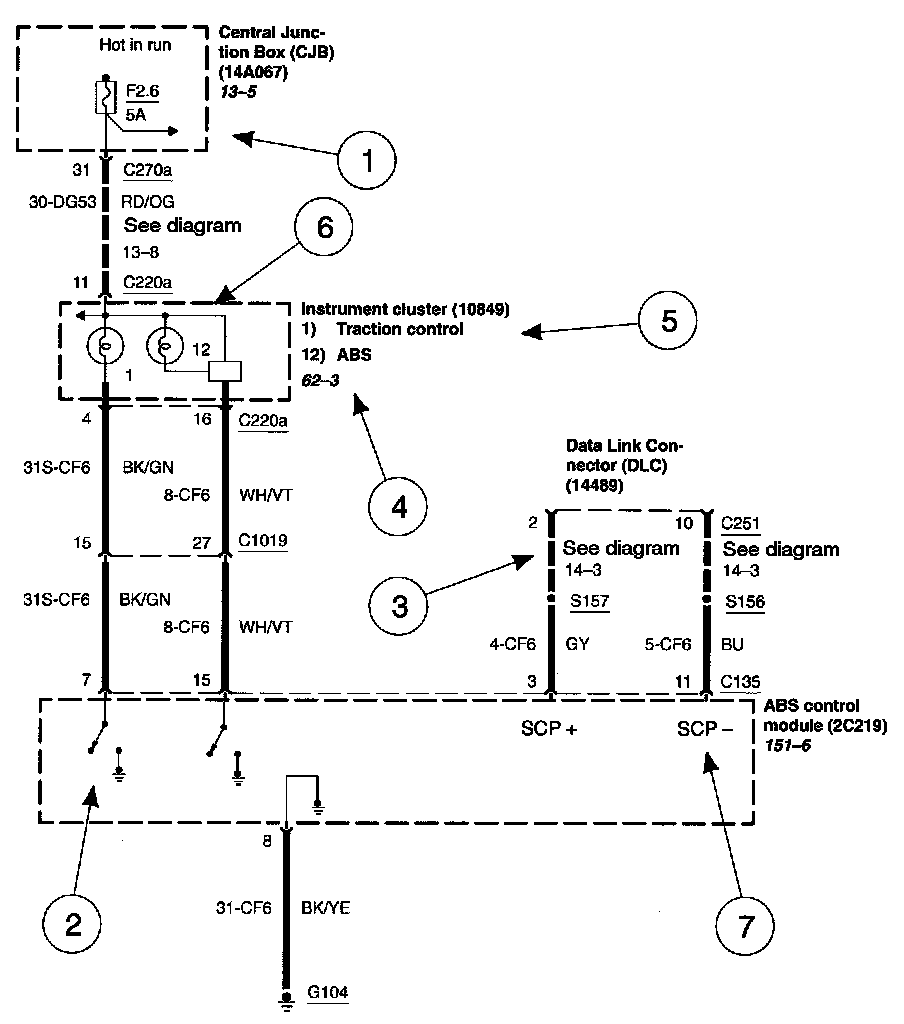
Current Flow (1)
Each set normally starts with the component that powers the circuit, such as a fuse or the ignition switch. Current flow is shown from the power source at the top of the diagram to ground at the bottom of the diagram. A full representation of the power supply of a fuse or the power distribution from a fuse to various components is given in the Power and Ground Distribution Diagrams. Full representation of the ground connections are shown in the Power and Ground Distribution Diagrams.

Switch Positions (2)
Within a diagram, all switches, sensors and relays are shown "at rest" (as if the ignition switch were OFF).

Splices (3)
A dashed line indicates that the splice is not shown completely. A reference is given to the diagram where the splice appears in full. It is also listed in the Index.

Component Referencing (4)
Each component on a diagram has a reference to the component location view or the diagram where it is shown completely. It is located to the right of each component.

Component Names, Notes and Base Part Numbers (5)
Component names are placed on the right hand side of each component. Any notes that describe switch positions or operating conditions follow the name. Descriptions of the internals of the component are also included here. The diagram where the component appears in full is listed in the Index. The base part number for a component is listed in parentheses next to or under a component. These part numbers will appear any place the component name appears in the publication.

Internal Name and Function Identification Numbers (6)
Some components on each diagram have internal symbols with an identification number located to the right. You can identify the internal symbol or function by finding the corresponding number under the component name.

Circuit Function Identifiers (7)
Some components without internal diagrams use symbols or text to describe the function of a circuit in a system.







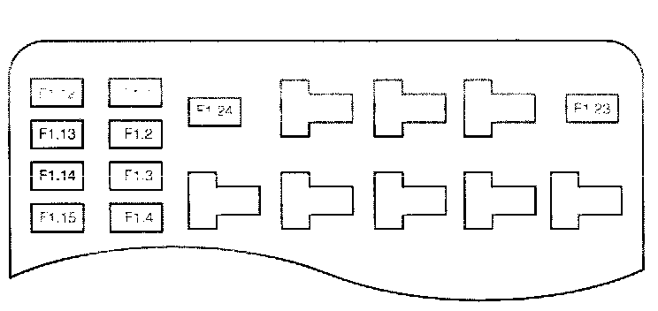
Fuse and Relay Information
Fuse/Locations and Relay/Locations contains a view of the fuse-/relay box in which all fuses and relays are identified.

Fuse and Relay Numbering and Naming
Fuse and relay numbering and naming follow the indication of the fuse panel cover. In addition, a prefix precedes the fuse number to facilitate finding the fuse in the Component Location Charts, e.g. "F1." precedes Battery Junction Box fuses, and "F2." precedes Central Junction Box fuses.







Power Distribution
Power and Ground Distribution diagrams shows the current feed circuit. The current path is shown from the battery to the ignition switch and to all fuses. It also shows the circuits protected by each fuse. The circuit is traced from the fuse to the component. All details (wires, splices, connectors) between the fuse and the first component are shown.







Ground Distribution
Power and Ground Distribution Diagrams contains the diagram that show the complete details for each ground connection or main ground splice. This is useful in diagnosing a problem affecting several components at once (poor ground connection or ground splice). All details (wires, splices, connectors) between the ground point and the components are shown. These ground connection details are shown here in order to keep the individual set diagrams as uncluttered as possible.


C150:






C1033:






Component and Connector Information
Component Location Charts helps the user find where the various items depicted on the diagram can physically be found on the vehicle. A brief written description of the location is given, along with a reference to the component location views.

Component Location Views show the components and their connecting wires as they can be found on the vehicle.

Connector Views show the views of the pins and/or cavities of all connectors. The pin and cavity sides are shown separately as if the connector were disconnected. The color of the connector housing is indicated next to the connector number when available. The harness causal number is located above the component name and below the connector number or above the connector face itself. The Wiring harness designations are listed in Component Location Charts. Circuit function charts are located below each connector.

Circuit Numbering and Wire Identification

Circuit Numbering:







Ford has introduced a world-wide uniform system for circuit numbering and wire identification. The system is called Function, System-Connection, or FSC for short.

FSC was developed mainly to assist in vehicle development and production processes, but is also helpful in troubleshooting electrical circuits.


Function Codes:






Function:
The first two digits identify the function of the wire. In this case, the function code includes the letter "S" to indicate it is an additionally switched function. The function part of the circuit number is the most helpful to the technician in troubleshooting a circuit. A complete list of function codes and their descriptions is shown in the Function Codes Diagram.


System Codes:






System-Connection (including branch):
Systems are related to subsets of the vehicle circuitry. A complete list of the system codes are shown in System Codes Diagram.

Immediately following the system letter code is the connection number specific to that system. A branch identification is used to differentiate wires in one connection with the same function.

Wire Identification (wire colors):
The wire identification consists of a basic color and an identification color, and is determined directly from the wire's circuit number. In the diagrams, the wire colors are indicated next to the wires.

The basic and identification colors are abbreviated using the international norm IEC 757. The abbreviations are listed in Symbols.

Each function code has a specific basic color associated with it, which can also be seen in the chart of function codes on the next diagram. The identification color is a colored stripe used to differentiate several wires with the same function within one component connector.







Using the circuit number and wire identification used in the above example we know the information about the wire.

WARNINGS
- Always wear safety glasses for eye protection.
- Use safety stands whenever a procedure requires being under a vehicle.
- Be sure that the Ignition Switch is always in the OFF position, unless otherwise required by the procedure.
- Set the parking brake when working on any vehicle. An automatic transmission should be in PARK. A manual transmission should be in NEUTRAL.
- Operate the engine only in a well-ventilated area to avoid danger of carbon monoxide.
- Keep away from moving parts, especially the fan and belts, when the engine is running.
- To prevent serious burns, avoid contact with hot metal parts such as the radiator, exhaust manifold, tail pipe, catalytic converter and muffler.
- Do not allow flame or sparks near the battery. Gases are always present in and around the battery cell. An explosion could occur.
- Do not smoke when working on a vehicle.
- To avoid injury, always remove rings, watches, loose hanging jewelry and avoid wearing loose clothing.