Curiosii for ever!: Car repair manuals for everyone.

Battery: Service and Repair: General Procedures

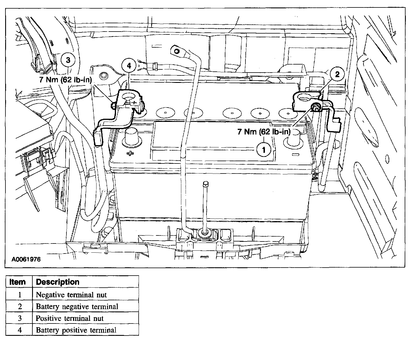
BATTERY DISCONNECT

WARNING:
- Batteries normally produce explosive gases which can cause personal injury. Therefore, do not allow flames, sparks or lighted substances to come near the battery, always shield your face and protect your eyes. Always provide ventilation. Failure to follow these instructions may result in personal injury.
- To avoid accidental deployment and possible injury, the backup power supply must be depleted before repairing or installing any front or side air bag supplemental restraint system (SRS) components and before repairing, installing, adjusting or striking components near the front or side air bag sensors, such as doors, instrument panel, console, door latches, strikers, seats and hood latches. To deplete the backup power supply energy, disconnect the battery ground cable and wait at least one minute. Be sure to disconnect any auxiliary batteries and power supplies (if equipped). failure to follow these instructions may result in personal injury.
- When lifting a battery, excessive pressure on the end walls could cause acid to spew through the vent caps, resulting in personal injury. Lift with a battery carrier or with your hands on opposite corners. Failure to follow these instructions may result in personal injury.
- Keep out of the reach of children. Batteries contain sulfuric acid. Avoid contact with skin, eyes or clothing. Also, shield your eyes when working near the battery to protect against possible splashing of the acid solution. In case of acid contact with the skin or eyes, flush immediately with water for a minimum of 15 minutes and get prompt medical attention. If acid is swallowed, call a physician immediately. failure to follow these instructions may result in personal injury.


NOTE: Because the engine is electronically controlled by the powertrain control module (PCM), some control conditions are maintained by power from the battery. When the battery is disconnected or a new battery is installed, the engine must relearn its idle and fuel trim strategy for optimum driveability and performance. Allow the engine to idle for one minute. The relearning process will automatically complete itself as the vehicle is driven. The vehicle may need to be driven. If the engine is not allowed to relearn its idle trim, the idle quality may be adversely affected until the idle trim is eventually relearned. Additionally, to account for customer driving habits and conditions, the automatic transmission must relearn its adaptive strategy. Optimal shifting will resume within a few hundred kilometers (miles) of operation. The clock and radio presets must be reset once the battery is reconnected. Check the front windows for one-touch up operation and the moonroof (if equipped) for one-touch close operation. If any have lost this functionality, they must be re-initialized. For window motor initialization, refer to Windows and Glass. For roof opening panel motor initialization, refer to Sunroof/Moonroof.







1. Disconnect the components in the order indicated in the illustration and table.
2. To reconnect, reverse the disconnect procedure.