Curiosii for ever!: Car repair manuals for everyone.

Interior Lighting Module: Service and Repair




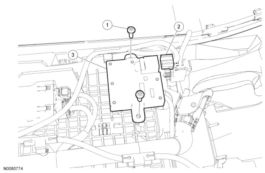
Interior Lighting Control Module (ILCM)









Removal and Installation

1. Remove the floor console. For additional information, refer to Instrument Cluster / Carrier &/or Interior Moulding / Trim.

2. Remove the 2 bolts and the Interior Lighting Control Module (ILCM).

3. Disconnect the electrical connector.

4. To install, reverse the removal procedure.