Curiosii for ever!: Car repair manuals for everyone.

Touch Sensor Circuit








DOOR LOCK: SMART ACCESS SYSTEM WITH PUSH-BUTTON START: Touch Sensor Circuit

Touch Sensor Circuit

DESCRIPTION

The touch sensor are built into the door outside handles of the all doors. This circuit receives a signal indicating whether a touch sensor signal is detected.

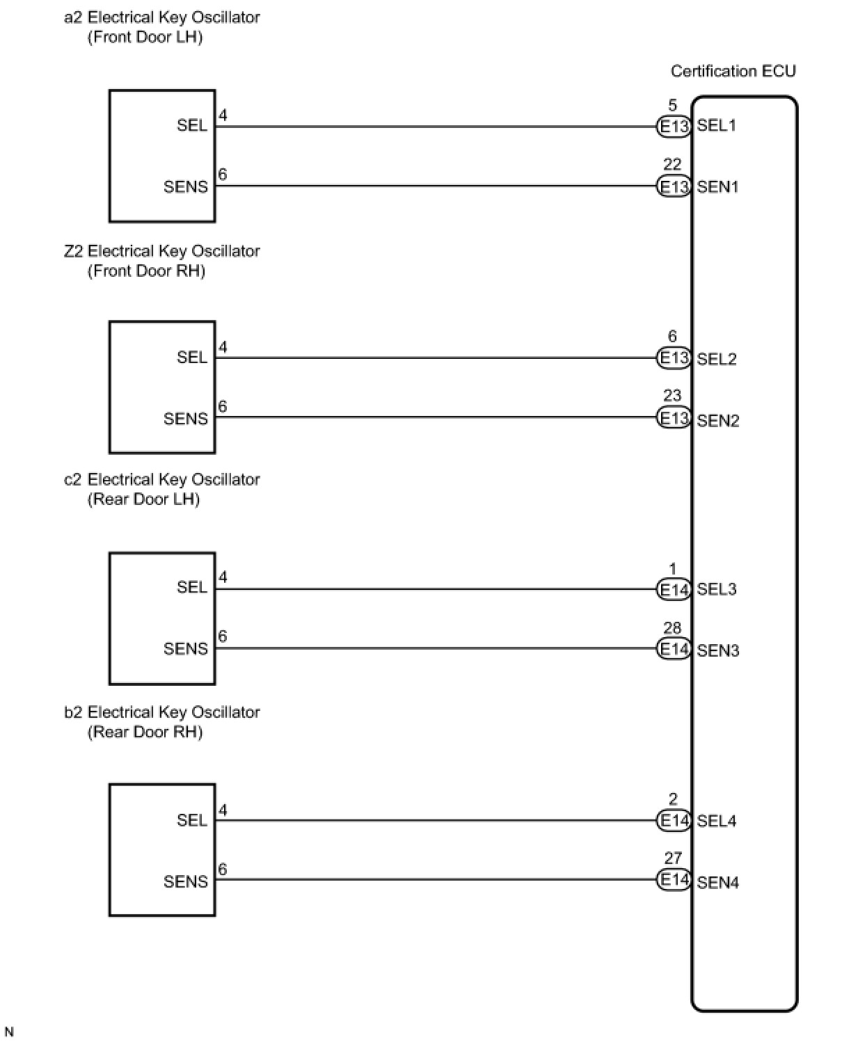
WIRING DIAGRAM





INSPECTION PROCEDURE

PROCEDURE

1. READ VALUE OF TECHSTREAM (TOUCH SENSOR)
(a) Connect Techstream to the DLC3.
(b) Turn the engine switch on (IG).
(c) Turn the tester on.
(d) Enter the following menus: Body Electrical / Smart Access / Data List.
(e) Read the Data List according to the display on the tester.

Smart Access:





OK:
"ON" (screen is touched) or "OFF" (screen is not touched) appears on the tester screen.
OK -- PROCEED TO NEXT CIRCUIT INSPECTION SHOWN IN PROBLEM SYMPTOMS TABLE
NG -- Continue to next step.
2. CHECK HARNESS AND CONNECTOR (CERTIFICATION ECU - ELECTRICAL KEY OSCILLATOR)





(a) Disconnect the E13 and E14 ECU connectors.
(b) Disconnect the oscillator connectors.
(c) Measure the resistance according to the value(s) in the table below.
Standard resistance:
Front LH side





Front RH side





Rear LH side





Rear RH side





NG -- REPAIR OR REPLACE HARNESS OR CONNECTOR
OK -- Continue to next step.
3. CHECK AND REPLACE ELECTRICAL KEY OSCILLATOR (CHECK OPERATION OF OSCILLATOR)
(a) Replace the electrical key oscillator.
(b) Check that the entry UNLOCK function operates normally.
OK:
Entry UNLOCK function operates normally.
OK -- END (ELECTRICAL KEY OSCILLATOR IS DEFECTIVE)
NG -- Continue to next step.
4. INSPECT CERTIFICATION ECU





(a) Reconnect the ECU and the oscillator connectors.
(b) Connect Techstream to the DLC3.
(c) Turn the engine switch on (IG).
(d) Measure the voltage according to the value(s) in the table below.
Standard voltage:
Front LH side





Front RH side





Rear LH side





Rear RH side





NG -- REPLACE CERTIFICATION ECU
OK -- PROCEED TO NEXT CIRCUIT INSPECTION SHOWN IN PROBLEM SYMPTOMS TABLE